NEU GEBAUTE VILLEN IN LA ROMANA
Neubau Villen in La Romana gelegen.
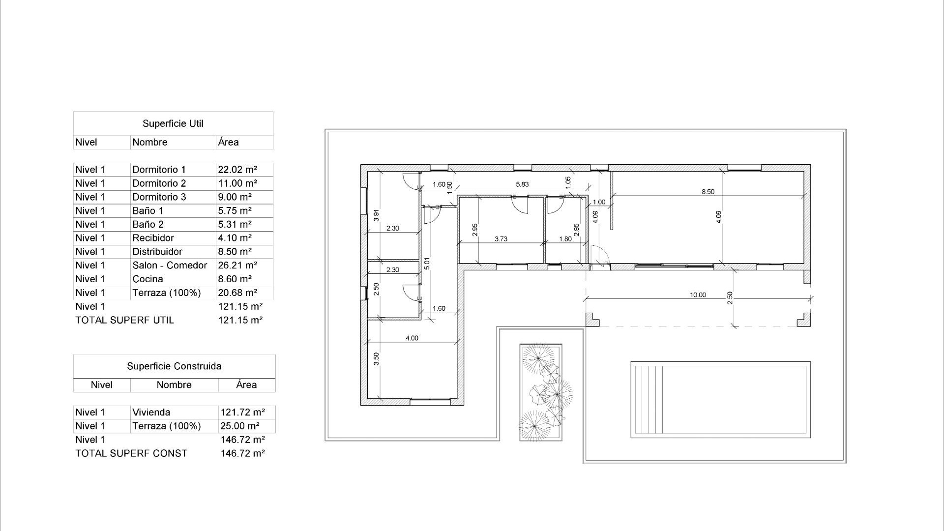
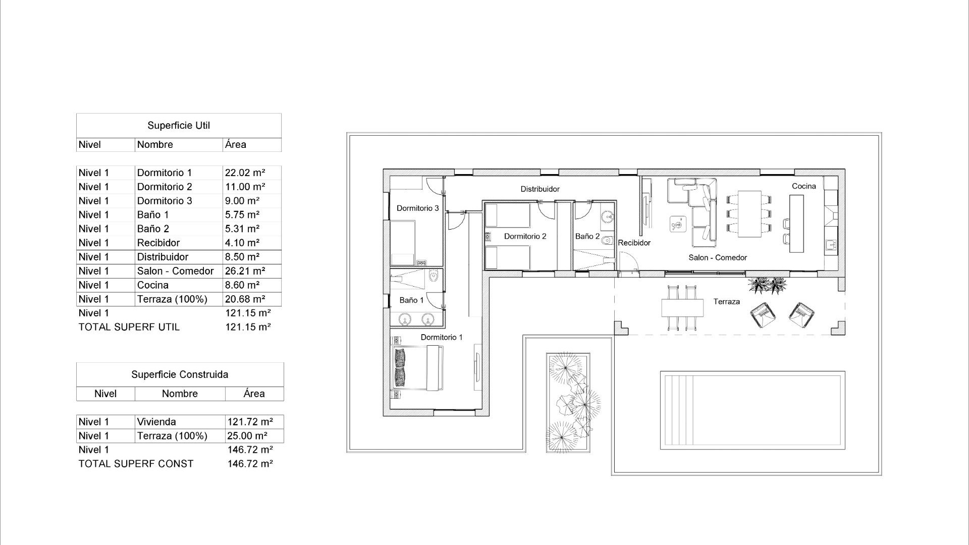
Eine ebenerdige Villa auf dem rustikalen Grundstück von 14 569m2 gebaut, verfügt über 3 Schlafzimmer und 2 Bäder, offene Küche mit dem Wohnbereich, Einbauschränke, privaten Pool und Parkplatz abseits der Straße.
Wenn Sie auf der Suche nach einer ruhigen Umgebung sind, in der Nähe von typischen spanischen Dörfern, umgeben von Bergen und etwa 30 Minuten vom Meer entfernt, ist dies Ihr Zuhause.
La Romana typisch spanisches Dorf, umgeben von Bergen und etwa 30 Minuten vom Meer entfernt.
Villa befindet sich 30 Minuten vom Flughafen Alicante.
