Die Villas Formentera im Vistabella Golf Resort bieten unvergleichlichen Luxus im Herzen der malerischen Orihuela Costa, zwischen San Miguel und Los Montesinos. Diese prächtigen Villen, die mit viel Liebe zum Detail entworfen wurden, bieten eine Oase des Komforts und der Eleganz.
Das Resort selbst verfügt über einen sicheren Eingang und eine beeindruckende Auswahl an Annehmlichkeiten, darunter einen 18-Loch-Golfplatz, Padel-Plätze, Bowling Greens, einen Supermarkt und eine vielfältige Auswahl an Bars und Restaurants. Mit den Plänen für ein neues Clubhaus, eine Champagner-Bar, eine Sushi-Bar, ein Spa-Hotel, einen künstlichen Strand, einen Tennisplatz, einen Fußballplatz, eine Gourmet-Bar und mehr soll sich das Resort in einen erstklassigen 5-Sterne-Luxuskomplex verwandeln.
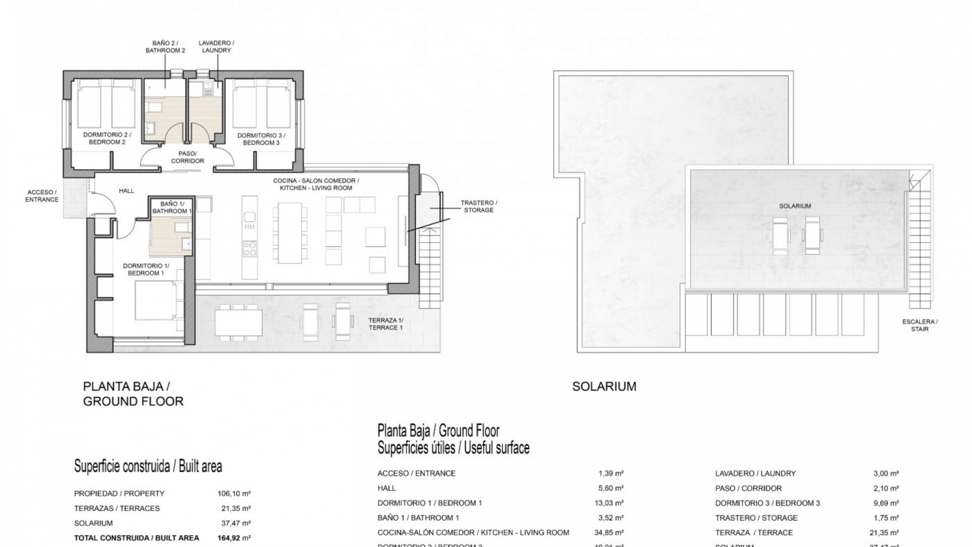
Die atemberaubende Villa auf Formentera ist komplett auf einer Ebene angelegt und bietet nahtlose Zugänglichkeit und Komfort. Der geräumige Wohnbereich öffnet sich zu einem privaten Garten mit luxuriösem Swimmingpool und schafft so einen idyllischen Ort zum Entspannen und für Unterhaltung im Freien.
Im Inneren bieten eine offene Küche und ein Essbereich einen stilvollen und funktionalen Raum für kulinarische Genüsse und geselliges Beisammensein. Eine separate Waschküche sorgt für mehr Funktionalität im Alltag.
Die Villa verfügt über ein Hauptschlafzimmer mit eigenem Bad und Einbauschränken, das einen ruhigen Rückzugsort bietet. Zwei weitere Doppelschlafzimmer mit Einbauschränken bieten reichlich Platz für Gäste oder Familienmitglieder. Ein Gästebadezimmer erhöht den Komfort.
Wer eine atemberaubende Aussicht und einen ruhigen Rückzugsort sucht, kann über eine Treppe hinauf zu einem 38 m² großen, privaten Solarium auf dem Dach gelangen, das einen Panoramablick auf die umliegende Landschaft bietet.
Das Vistabella Golf Resort ist nicht nur ein Wohngebiet, sondern eine lebendige Gemeinde, umgeben von üppigen grünen Hügeln und Bergen. Mit einer Reihe von Bars, Sportaktivitäten und Restaurants hat es sich für viele Bewohner zu einem ganzjährigen Reiseziel entwickelt. Die nahe gelegenen Städte San Miguel und Los Montesinos sind nur eine kurze Autofahrt entfernt und bieten weitere Annehmlichkeiten und kulturelle Erlebnisse. Darüber hinaus sind die unberührten, mit der blauen Flagge ausgezeichneten Strände leicht erreichbar, was diesen Ort perfekt für Entspannung und Erholung macht.
