Ref.: NEWSP-33968

Neubauvillen in der Gemeinde Aspe.

  • Villa · Neubau
    Ref.: NEWSP-33968
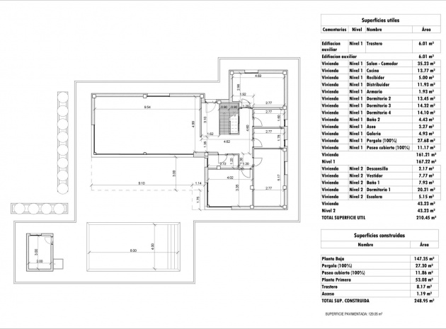
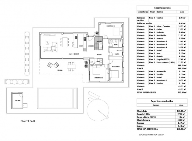
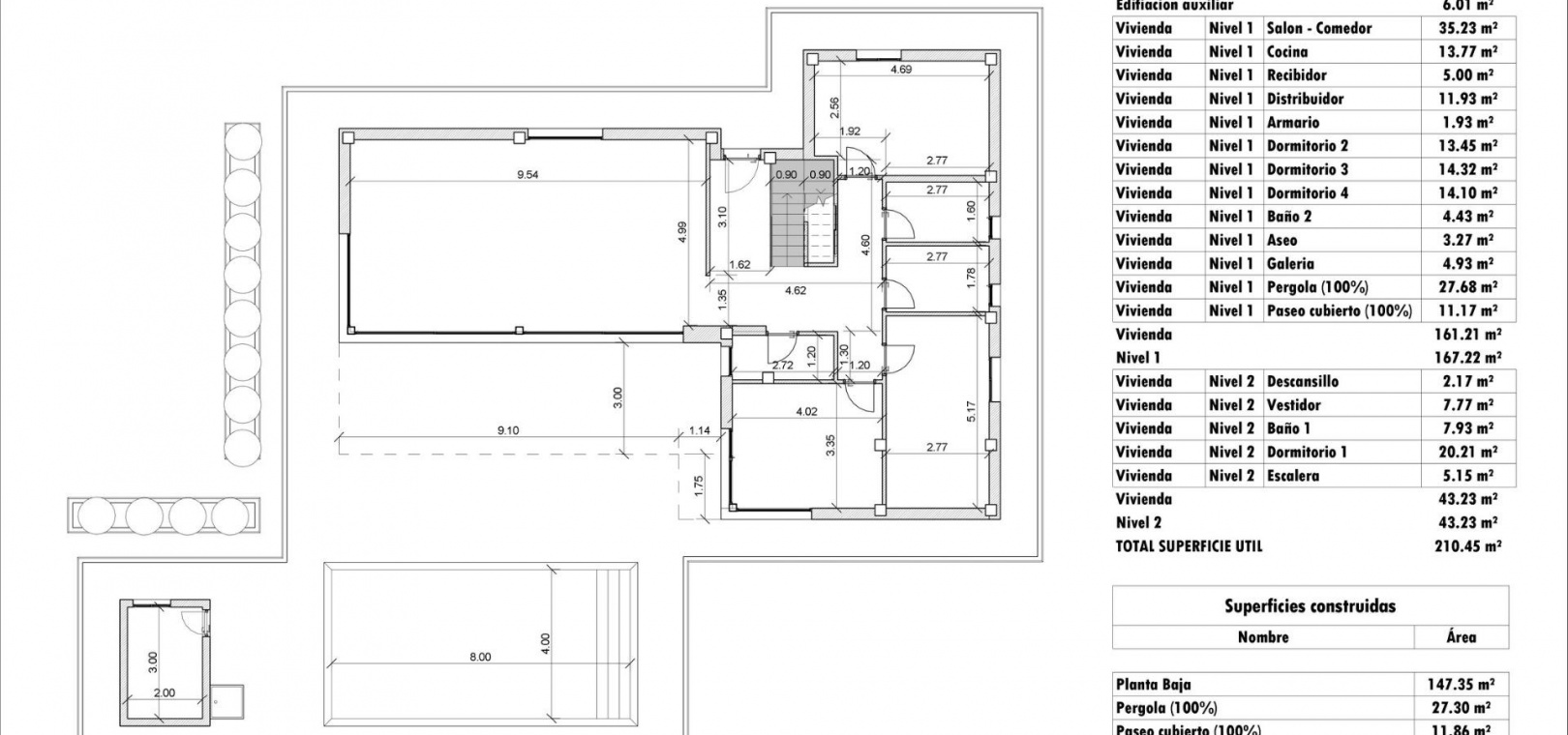
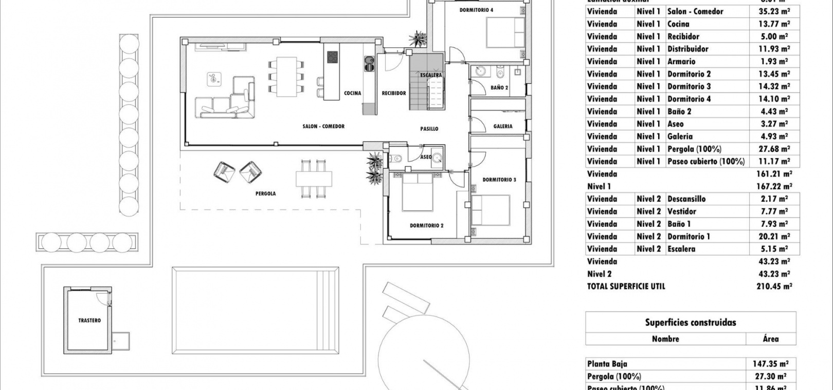
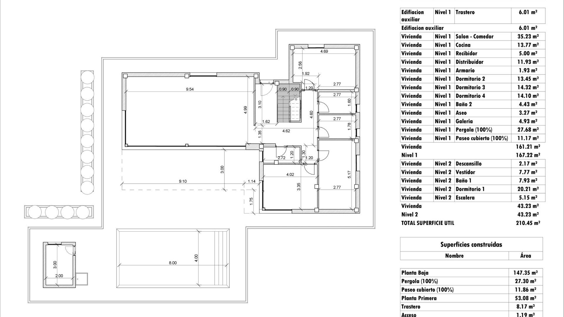
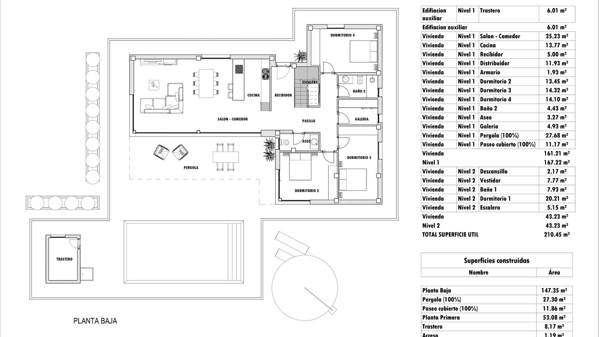
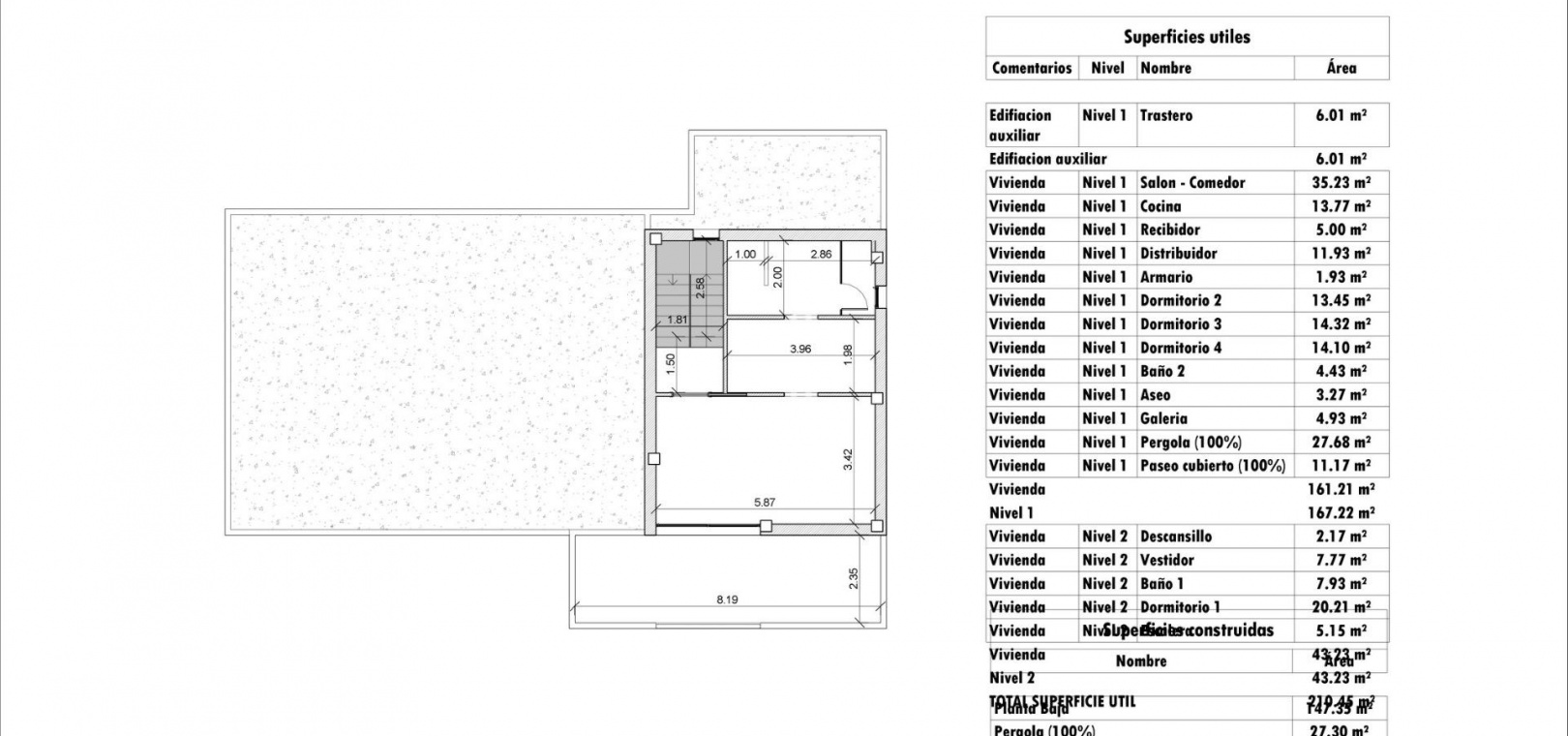
  • 248m2
  • 13.172m2
  • 4
  • 3
  •  

Eigentum Charakteristik

Betten: 4
Das Badezimmer: 3
Gebaut: 248m2
Grundstück: 13.172m2
Schwimmbad: Ja
Entfernung zum Strand: 40000 Mts.
Garden
Private Pool
In der Nähe von Schulen
Mit einem Gatter versehen
Anzahl der Parkplätze: 1
Klimaanlage: Vorinstalliert
Terrasse: 38 m².
Doppelzimmer: 4
Strand: 25000 Meter
Parkplatz
Nutzbare Baufläche: 210 m².
Standort: Berg
Lagerung / Trastero

Objektbeschreibung

Einreichen Buchen Sie eine Anzeige

Ort

Nennleistung
Nennleistung:
B

Jetzt anfragen

Responsable del tratamiento: , Finalidad del tratamiento: Gestión y control de los servicios ofrecidos a través de la página Web de Servicios inmobiliarios, Envío de información a traves de newsletter y otros, Legitimación: Por consentimiento, Destinatarios: No se cederan los datos, salvo para elaborar contabilidad, Derechos de las personas interesadas: Acceder, rectificar y suprimir los datos, solicitar la portabilidad de los mismos, oponerse altratamiento y solicitar la limitación de éste, Procedencia de los datos: El Propio interesado, Información Adicional: Puede consultarse la información adicional y detallada sobre protección de datos Aquí.
Newsletter

Abonniere unseren Newsletter

Erhalten Sie unsere neuesten Immobilienanzeigen

© 2026 ES PROPERTY FOR SALE IN SPAIN - All rights reserved Privatsphäre Bedingungen Cookies Web-Karte

Entwurf: Mediaelx

Alert erstellen Alert erstellen
Kontakt durch WhatsApp