Exklusive Neubauvillen im Santa Rosalia Lake and Life Resort – Luxuriöses Wohnen im Herzen von Murcia
Wo zeitgenössisches Design auf mediterranes Paradies trifft
Entdecken Sie einen neuen Luxusstandard im begehrten Santa Rosalia Lake and Life Resort – einer exklusiven, geschlossenen Wohnanlage in der sonnenverwöhnten Region Murcia. Nur 4 km vom warmen, seichten Wasser des Mar Menor entfernt, befindet sich diese prestigeträchtige Anlage in idealer Lage in der Nähe von Weltklasse-Golfplätzen, der pulsierenden Küstenstadt Los Alcázares und nur eine kurze Autofahrt von der historischen Stadt Cartagena entfernt. Der internationale Flughafen Murcia ist nur 22 km entfernt und garantiert eine mühelose Anreise aus Großbritannien und ganz Europa.
Elegante Villen für modernes mediterranes Leben
Diese atemberaubenden Neubauvillen wurden sorgfältig mit Blick auf Licht, Raum und Funktionalität entworfen. Jedes Haus bietet drei großzügige Schlafzimmer, zwei elegante Badezimmer und ein zusätzliches Gäste-WC. Der offene Wohnbereich verbindet nahtlos die hochwertige Küche, den Essbereich und das Wohnzimmer. Alle öffnen sich zu einem wunderschön angelegten Garten mit eigenem Pool – der perfekte Ort, um die spanische Sonne zu genießen.
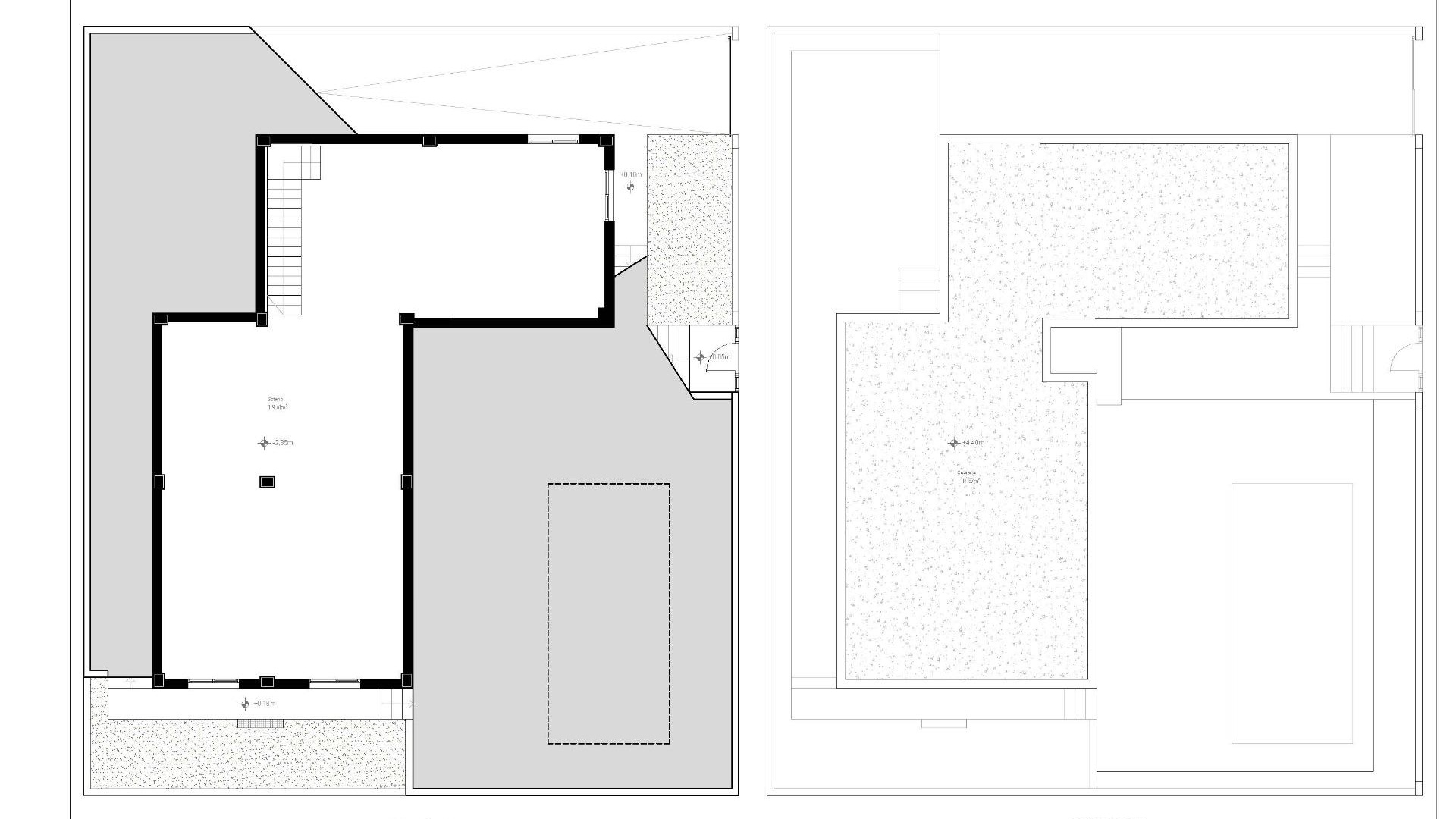
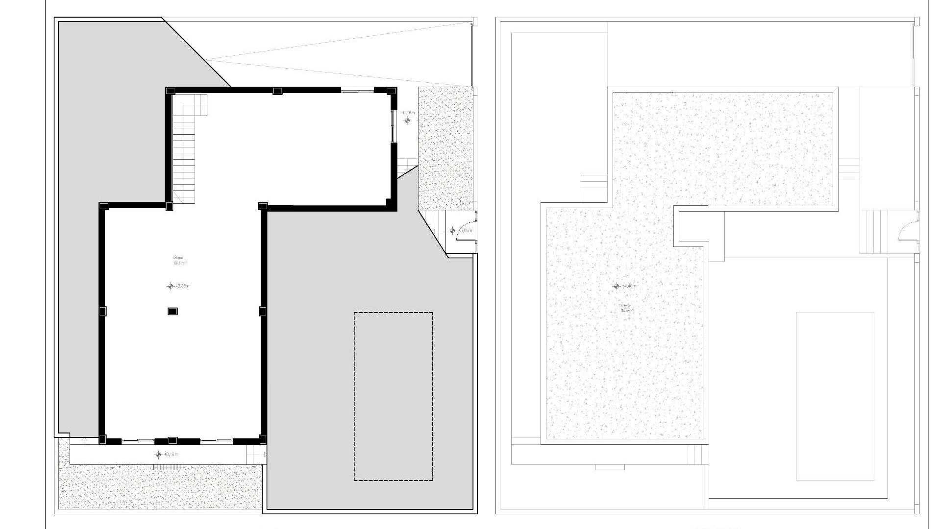
Für zusätzliche Flexibilität bietet ein riesiger, ausgebauter Keller mit 136 m² Fläche endlose Möglichkeiten – denken Sie an zusätzliche Schlafzimmer, ein Fitnessstudio zu Hause, ein privates Kino, ein Büro oder sogar ein stilvolles Spielzimmer für die Kinder.
Luxuriöse Oberflächen und nachhaltige Akzente
Diese nach höchsten Standards erbauten Villen verfügen über motorisierte Rollläden, Einbauschränke, Klimaanlage und eine verstärkte Sicherheitstür. Die voll ausgestattete Küche ist mit hochwertigen Geräten ausgestattet. Kunstrasen, Palmen und ein Bewässerungssystem schaffen im Außenbereich eine einladende Oase. Für ein nachhaltiges Leben ist jede Villa standardmäßig mit sechs Photovoltaikmodulen ausgestattet – eine Kombination aus Luxus und Energieeffizienz.
Santa Rosalia – Ein Resort wie kein anderes
Im Herzen des Resorts liegt eine beeindruckende, 17.000 m² große, kristallklare Lagune mit weißen Sandstränden, wiegenden Palmen und ruhigen Inseln mit Bars und Strandclubs. Den Bewohnern stehen über 126.000 m² angelegte Grünflächen, Sportplätze, Fitnessparcours, Minigolf, Kinderspielplätze und ein lebendiges Clubhaus zur Verfügung – die perfekte Balance aus Freizeit, Wellness und Natur.
Eine erstklassige Gelegenheit – zum Wohnen oder als Investition
Ob Sie Ihr Traumferienhaus, einen ganzjährigen Wohnsitz oder eine attraktive Mietinvestition suchen, Santa Rosalia bietet alles. Die Lage, der Lebensstil und das zukünftige Vermietungspotenzial machen dies zu einer wirklich seltenen Gelegenheit auf dem spanischen Immobilienmarkt.
✨ Erkundigen Sie sich noch heute
Sichern Sie sich Ihr Stück Paradies im Santa Rosalia Lake and Life Resort. Kontaktieren Sie uns jetzt, um eine Besichtigungstour oder eine persönliche Immobilienberatung in Großbritannien mit einem unserer Neubauspezialisten zu vereinbaren.
