Neubauwohnungen in Guardamar del Segura – Modernes Wohnen nur 1,4 km vom Strand entfernt
Entdecken Sie eine neue Wohnanlage in Guardamar del Segura, Alicante, mit nur 19 exklusiven, modernen Wohnungen, die für komfortables, zeitgemäßes Wohnen an der Costa Blanca konzipiert sind. In idealer Lage, nur 1,4 km vom Strand und wenige Gehminuten vom Stadtzentrum entfernt, verbindet diese Wohnanlage Stil, Funktionalität und eine erstklassige Lage an der Küste.
Exklusives Wohnprojekt mit begrenzter Verfügbarkeit
Diese Boutique-Siedlung umfasst 2- und 3-Zimmer-Wohnungen mit einer Reihe von Grundrissen für unterschiedliche Bedürfnisse:
Wohnungen im Erdgeschoss mit großzügigen privaten Terrassen
Wohnungen in mittlerer Höhe mit großzügigen Balkonen oder offenen Terrassen.
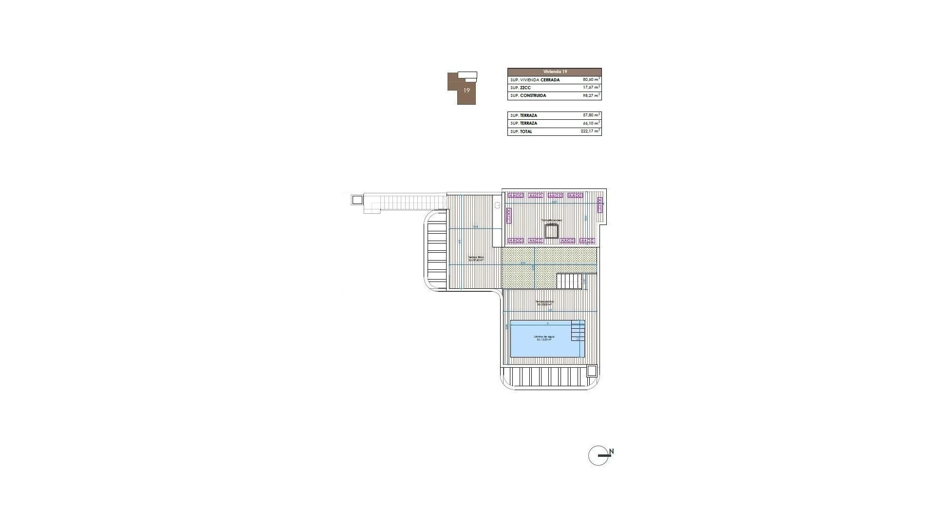
Ein spektakuläres Penthouse mit privatem Solarium und Swimmingpool
Jede Immobilie besticht durch elegante, geschwungene architektonische Linien, Glasgeländer und moderne Oberflächen – ideal sowohl für einen ganzjährigen Wohnsitz als auch für einen luxuriösen Urlaubsort.
Hochwertige Oberflächen und energieeffiziente Ausstattungsmerkmale
Jede Wohnung ist auf Komfort und Nachhaltigkeit ausgelegt und verfügt über:
Verstärkte Eingangstür für zusätzliche Sicherheit
Voll ausgestattete Küche mit Geräten
Energieeffizientes aerothermisches System für Warmwasser
Privater Parkplatz im Preis inbegriffen
Das Gebäude verfügt außerdem über einen Gemeinschaftspool und landschaftlich gestaltete Gartenanlagen, die sich perfekt genießen lassen im sonnigen mediterranen Klima.
Erstklassige Lage in Guardamar del Segura
Diese Wohnanlage liegt in einem gut angebundenen und lebhaften Teil von Guardamar und bietet einfachen Zugang zur Natur, zu Stränden und allen wichtigen Dienstleistungen. Die Bewohner profitieren von der Nähe zu Supermärkten, Restaurants, medizinischen Zentren, Parks und dem berühmten Pinienwald und den Dünen der Stadt.
Wichtige Entfernungen:
Stadtzentrum von Guardamar – 1 km
Nächster Strand – 1,4 km
Yachthafen – 2 km
Reina Sofía Park – 1,5 km
La Marquesa Golf (Ciudad Quesada) – 9 km
Einkaufszentrum Habaneras (Torrevieja) – 13 km
Flughafen Alicante-Elche – 33 km
Die öffentliche Verkehrsanbindung umfasst direkte Buslinien nach Alicante und Torrevieja, sodass Sie auch ohne Auto bequem alles erreichen können.
Sichern Sie sich Ihre Wohnung an der Costa Blanca
Ob Sie einen dauerhaften Wohnsitz, eine Ferienimmobilie oder eine kluge Investition suchen, diese neue Wohnanlage in Guardamar del Segura ist die perfekte Wahl. Kontaktieren Sie uns noch heute, um mehr zu erfahren oder Ihr neues Zuhause am Meer zu reservieren.
