NEU GEBAUTE WOHNANLAGE IN ESTEPONA
Neubau-Wohnanlage in Estepona, in der Sie viel mehr als nur ein Haus finden: Sie werden einen schönen Garten finden, in dem Sie Ihr Haus erweitern können.
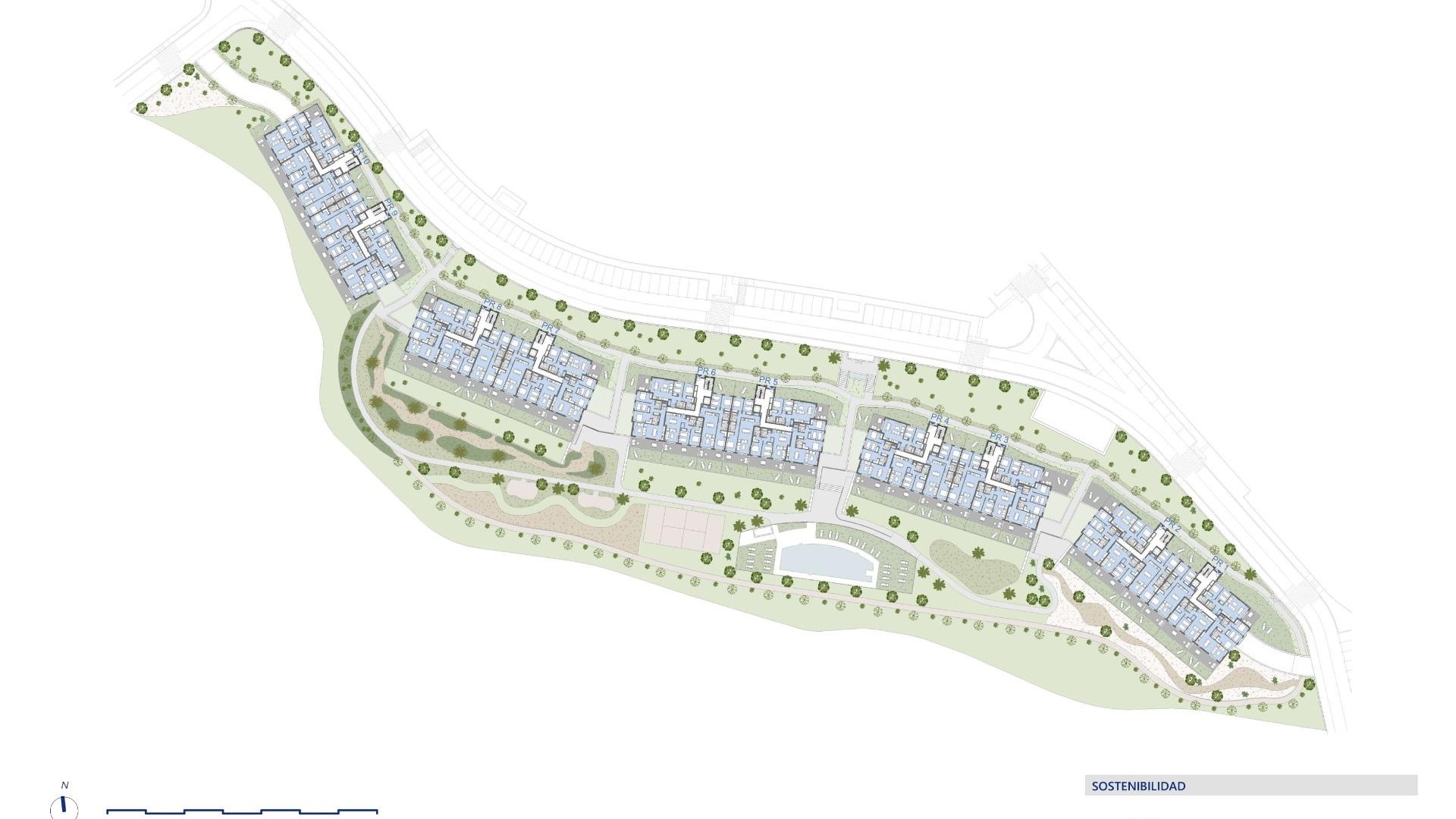
Die Anlage besteht aus 106 Mehrfamilienhäusern mit 2 und 3 Schlafzimmern mit Tiefgaragenstellplatz und Abstellraum.
In den großzügigen Gemeinschaftsbereichen finden wir eine große Anzahl von Pflanzenarten rund um den Swimmingpool sowie eine Sporthalle, einen Meditationsbereich im Freien, ein Spa, einen Gemeinschaftsraum mit Co-Working, ein Beachvolleyballfeld, einen Kinderbereich und ein Putting Green. All diese gemeinschaftlichen Nutzungen und die herausragenden Gärten mit Palmen, Zitrus- und Aromapflanzen sowie die Wege, die durch diese Grünflächen führen, machen diese Anlage zu einem perfekten Ort, um das Klima, die Natur und die Ruhe zu genießen.
Der Komplex ist in zwei Phasen unterteilt:
Phase 1 besteht aus den Blöcken 1 und 2 (44 Wohnungen), Schwimmbad, Putting Green, Spa und Coworking.
Phase 2 umfasst die Blöcke 3, 4 und 5 (62 Wohnungen), Sporthalle, Kinderbereich, Sportplatz und Meditationsbereich.
Das Projekt ist für ganzjähriges Wohnen konzipiert und nach Süden ausgerichtet.
Merkmale:
Parkplatz inbegriffen.
Schwimmbad.
Eingeschlossen.
Gartenbereiche.
Zentralheizung.
Klimatisierung.
In der Nähe von Golfplätzen.
Lagerraum inbegriffen.
Wenige Minuten vom Strand entfernt.
In der Nähe des Krankenhauses.
Blick auf das Meer.
20 Minuten nach Puerto Banús.
Spa, Fitnessraum, Social Club Bereich.
Beach-Volleyball-Platz.
Yoga, Meditationsbereich.
Estepona ist der perfekte Ort, um die Ruhe zu genießen, während Sie dank der Nähe zu den Golfplätzen von Estepona und den spektakulären Stränden eine breite Palette an sportlichen Aktivitäten im Freien ausüben können.
Estepona Golf ist ein 18-Loch-Platz, der zwischen Gibraltar und Puerto Banús liegt, an der neuen goldenen Meile, nur 3 km vom Strand entfernt und mit einem breiten Angebot an Dienstleistungen und Einrichtungen vor Ort.
