Neubauvilla im Las Colinas Golf & Country Club, Orihuela
Exklusive Lage an der Costa Blanca Süd
Diese atemberaubende Neubauvilla befindet sich im Las Colinas Golf & Country Club, einem der renommiertesten Resorts an der Orihuela Costa. Eingebettet in ein üppiges, 330 Hektar großes Tal, umgeben von mediterranem Wald und Grünflächen, bietet die Anlage einen exklusiven Lebensstil mit maximaler Privatsphäre. Das Resort liegt nur 40 km vom Flughafen Alicante und 60 km vom Flughafen Murcia-Corvera entfernt, und die schönen Strände des Mittelmeers sind nur eine kurze Autofahrt entfernt.
Moderne Villa mit großzügigem Grundriss
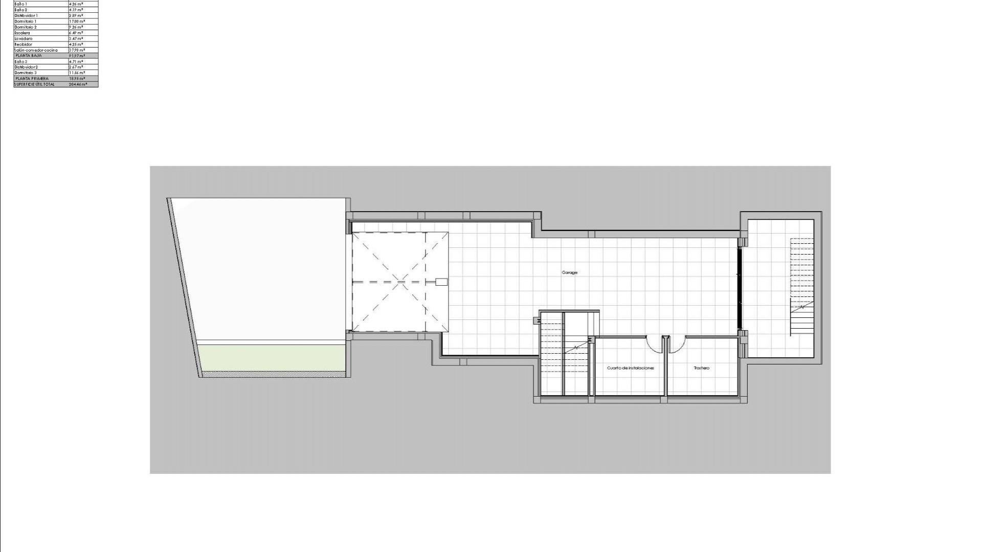
Diese Villa wurde mit Blick auf Eleganz und Komfort entworfen und erstreckt sich über zwei Etagen sowie ein Untergeschoss. Sie verfügt über 3 Schlafzimmer, jedes mit eigenem Bad, und eine Gästetoilette. Das Erdgeschoss umfasst eine offene Küche, die mit dem Wohnzimmer verbunden ist, zwei Schlafzimmer und Zugang zu einer großen Terrasse mit einem privaten 60 m² großen Swimmingpool und einem Landschaftsgarten. Im ersten Stock befindet sich eine private Schlafzimmersuite, während das Untergeschoss eine geräumige Garage für zwei Autos mit Tageslicht und Belüftung über einen englischen Innenhof umfasst.
Hochwertige Ausstattung und Technologie
Diese Villa wurde nach den höchsten Standards gebaut und verfügt über:
Voll installierte Klimaanlage
Heizung und Warmwasser über aerothermisches System
LED-Innenbeleuchtung inklusive
Voll ausgestattete Badezimmer mit Möbeln und Duschwänden
Küche mit hochwertigen Geräten
Hausautomationssystem für maximalen Komfort und Effizienz
Resort-Lifestyle und Dienstleistungen
Der Las Colinas Golf & Country Club ist international bekannt für seinen 18-Loch-Meisterschaftsgolfplatz, der als einer der besten Spaniens gilt. Das Resort bietet seinen Bewohnern eine Vielzahl von Dienstleistungen, darunter Tennis- und Padelplätze, ein modernes Fitnessstudio, Wellness- und Massageeinrichtungen, Gourmetrestaurants und einen Minimarkt mit täglich frisch gebackenem Brot.
Auf über 200.000 m² mediterraner Landschaft können die Bewohner malerische Spaziergänge durch die einheimische Flora sowie durch Orangen- und Zitronenhaine genießen. Die Kombination aus Natur, Exklusivität und erstklassigen Dienstleistungen macht Las Colinas zu einem wirklich einzigartigen Ort zum Leben.
Ihr exklusives Zuhause in Orihuela Costa erwartet Sie
Diese Villa in Las Colinas Golf ist mehr als nur eine Immobilie, sie ist ein Lebensstil, der Luxus, Privatsphäre und Natur vereint. Kontaktieren Sie uns noch heute, um einen Besichtigungstermin zu vereinbaren und sich Ihr neues Zuhause in einem der prestigeträchtigsten Resorts der Costa Blanca Süd zu sichern.
