Luxuriöse neu gebaute Stadthäuser in Río Real, Marbella
Exklusive Gemeinschaft mit erstklassigen Annehmlichkeiten
Eingebettet in das prestigeträchtige Viertel Río Real in Marbella, bietet diese atemberaubende Anlage 27 Stadthäuser und Doppelhaushälften, die eine perfekte Kombination aus Luxus und Komfort bieten. Diese opulenten Häuser verfügen über geräumige Innenräume, private Gärten und private Swimmingpools auf dem Dach mit Sonnenterrasse, die alle durch einen spektakulären Blick auf das Mittelmeer ergänzt werden.
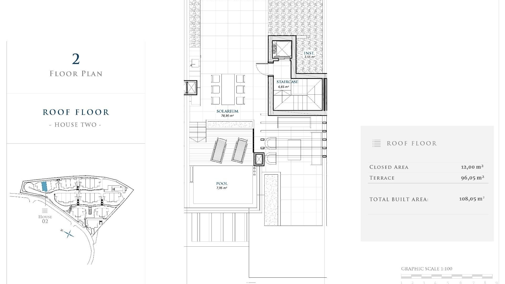
Die Sonnenterrasse im Obergeschoss mit privatem Swimmingpool und Sonnenterrasse ist der perfekte Ort, um sich zu entspannen und die herrliche Sonne Marbellas zu genießen.
Elegantes Design und Layout
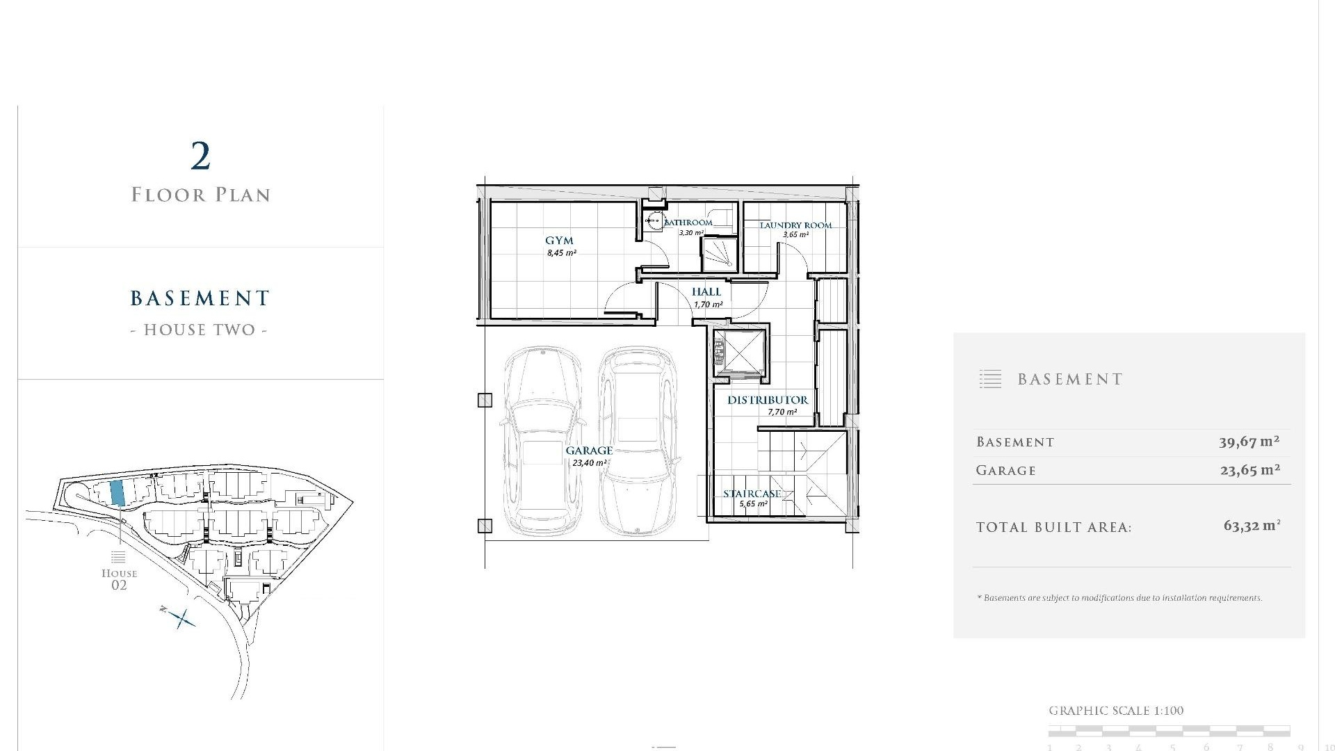
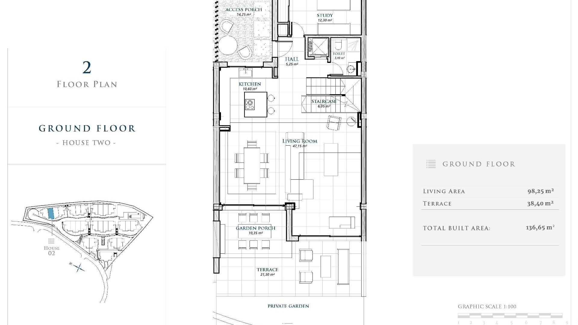
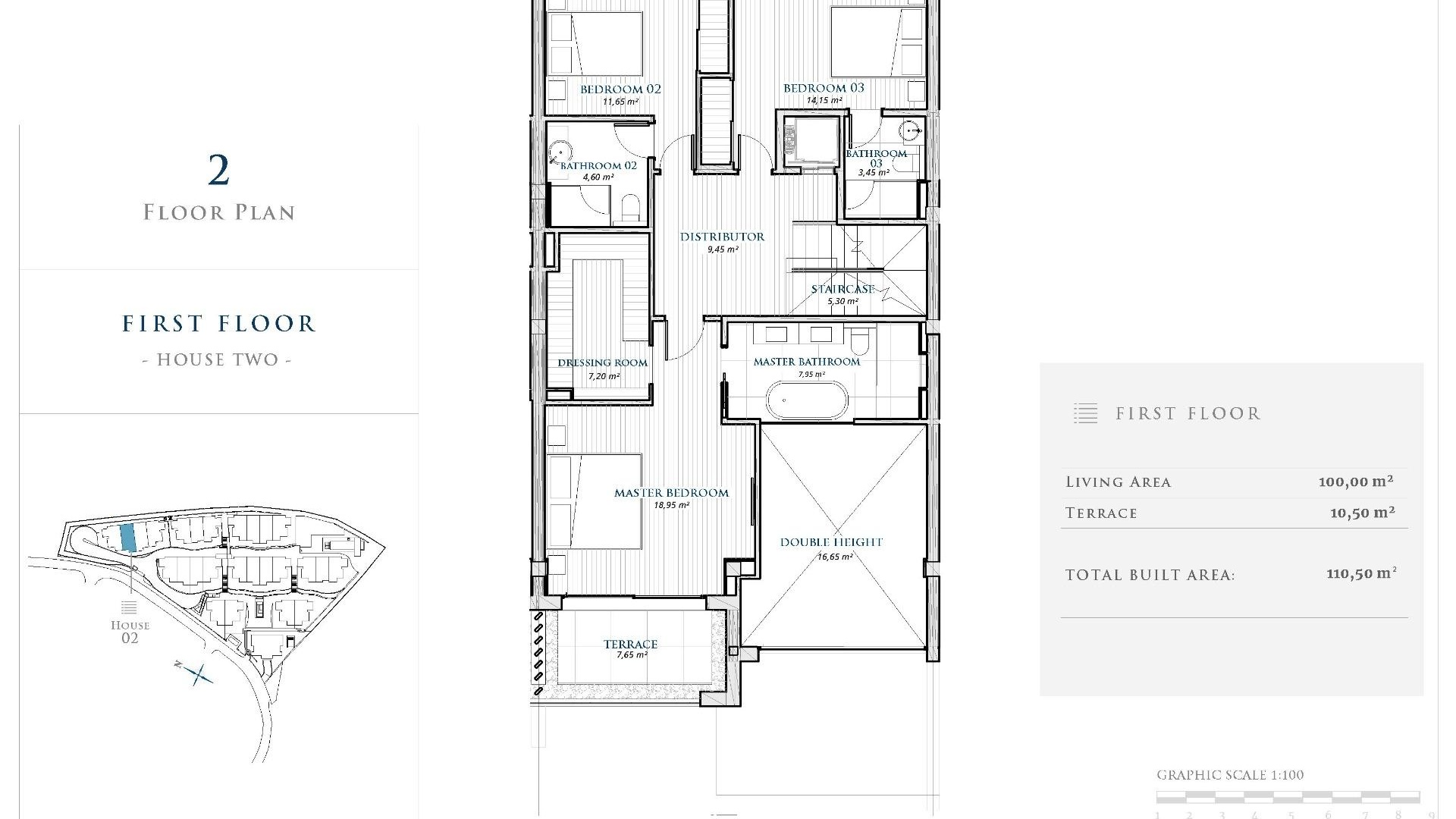
Jedes Stadthaus ist auf mehreren Ebenen angelegt, so dass Sie von verschiedenen Punkten des Hauses aus den Panoramablick auf das Meer genießen können. Sie haben die Wahl zwischen zwei Grundrissen mit 4 oder 5 Schlafzimmern, die sich auf das Untergeschoss, das Erdgeschoss, den ersten Stock und eine Sonnenterrasse verteilen. Die großzügigen Innenräume sind hochwertig ausgestattet, verfügen über große Fenster und sind offen gestaltet, so dass Innen- und Außenbereich nahtlos ineinander übergehen. Zu jeder Wohnung gehört außerdem eine private Tiefgarage für zusätzlichen Komfort.
Weltklasse-Annehmlichkeiten in bester Lage
Der Komplex wurde mit dem Schwerpunkt auf Wellness und Freizeit konzipiert und bietet eine Vielzahl von Gemeinschaftseinrichtungen, darunter:
Ein von üppigen Gärten umgebener Außenpool.
Ein voll ausgestattetes Fitnessstudio, um Ihren aktiven Lebensstil aufrechtzuerhalten.
Eine Sauna und ein türkisches Bad für die ultimative Entspannung.
Ein Massageraum zur Steigerung Ihres Wohlbefindens. Raum für gemeinsame Arbeit.
Spazierwege, die alle Wohnungen leicht erreichen.
Nähe zu den wichtigsten Punkten von Interesse
Nur 5 Minuten vom unberührten Strand von Río Real entfernt, befindet sich diese Wohnanlage in unmittelbarer Nähe zu einigen der beliebtesten Attraktionen und Annehmlichkeiten Marbellas:
Marbella Stadtzentrum: 10 km
Yachthafen Puerto Banús: 16 km
Santa Clara Golf Club: 3 km
La Cañada Einkaufszentrum: 8 km
Flughafen Málaga: 50 km
Diese außergewöhnliche Lage verbindet die Ruhe von Río Real mit dem einfachen Zugang zu Marbellas pulsierendem Lebensstil, der für seine feinen Restaurants, gehobenen Einkaufsmöglichkeiten und erstklassigen Freizeitangebote bekannt ist.
Einzugsfertige Häuser
Diese Stadthäuser sind schlüsselfertig und bieten Ihnen die Möglichkeit, sofort einen unvergleichlichen Lebensstil in einer der prestigeträchtigsten Gegenden von Marbella zu genießen.
Planen Sie Ihre Besichtigung noch heute
Entdecken Sie die perfekte Mischung aus Luxus, Komfort und Bequemlichkeit in Río Real. Kontaktieren Sie uns jetzt, um einen Besichtigungstermin zu vereinbaren und sich Ihr Traumhaus in Marbella zu sichern!
