Luxuriöse Villa im ibizenkischen Stil in La Fustera (Benissa Costa) Nur 1 km vom Strand entfernt
Mediterranes Refugium an der nördlichen Costa Blanca
Diese exklusive Kollektion von vier Einfamilienvillen befindet sich in La Fustera, einer prestigeträchtigen Wohngegend von Benissa an der nördlichen Costa Blanca. Diese Häuser verbinden den Charme der ibizenkischen Architektur mit zeitgenössischer mediterraner Eleganz und bieten Privatsphäre, Meerblick und einen raffinierten Lebensstil in einer der begehrtesten Küstenenklaven der Region.
La Fustera ist bekannt für seine kristallklaren Buchten, seine natürliche Umgebung und seine Wohnatmosphäre mit geringer Bevölkerungsdichte. Die Villen liegen nur 1 km vom Strand von La Fustera entfernt und bieten einfachen Zugang zu einem der schönsten Strände der Gegend mit Strandrestaurants und malerischen Wanderwegen entlang der Küste.
Erstklassige Lage in der Nähe von Calpe und Moraira
Die Wohnanlage genießt eine strategisch günstige Lage, nur 10 Autominuten von Calpe, Moraira und dem Zentrum von Benissa entfernt, und bietet Zugang zu Supermärkten, Yachthäfen, Golfplätzen, internationalen Schulen und medizinischen Dienstleistungen. Die Gegend verbindet Ruhe mit einer hervorragenden Anbindung an die wichtigsten Ziele der Costa Blanca.
Modernes Layout mit Meerblick und Infinity-Pool
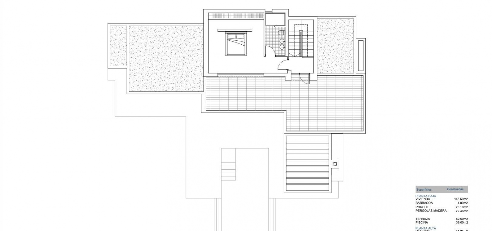
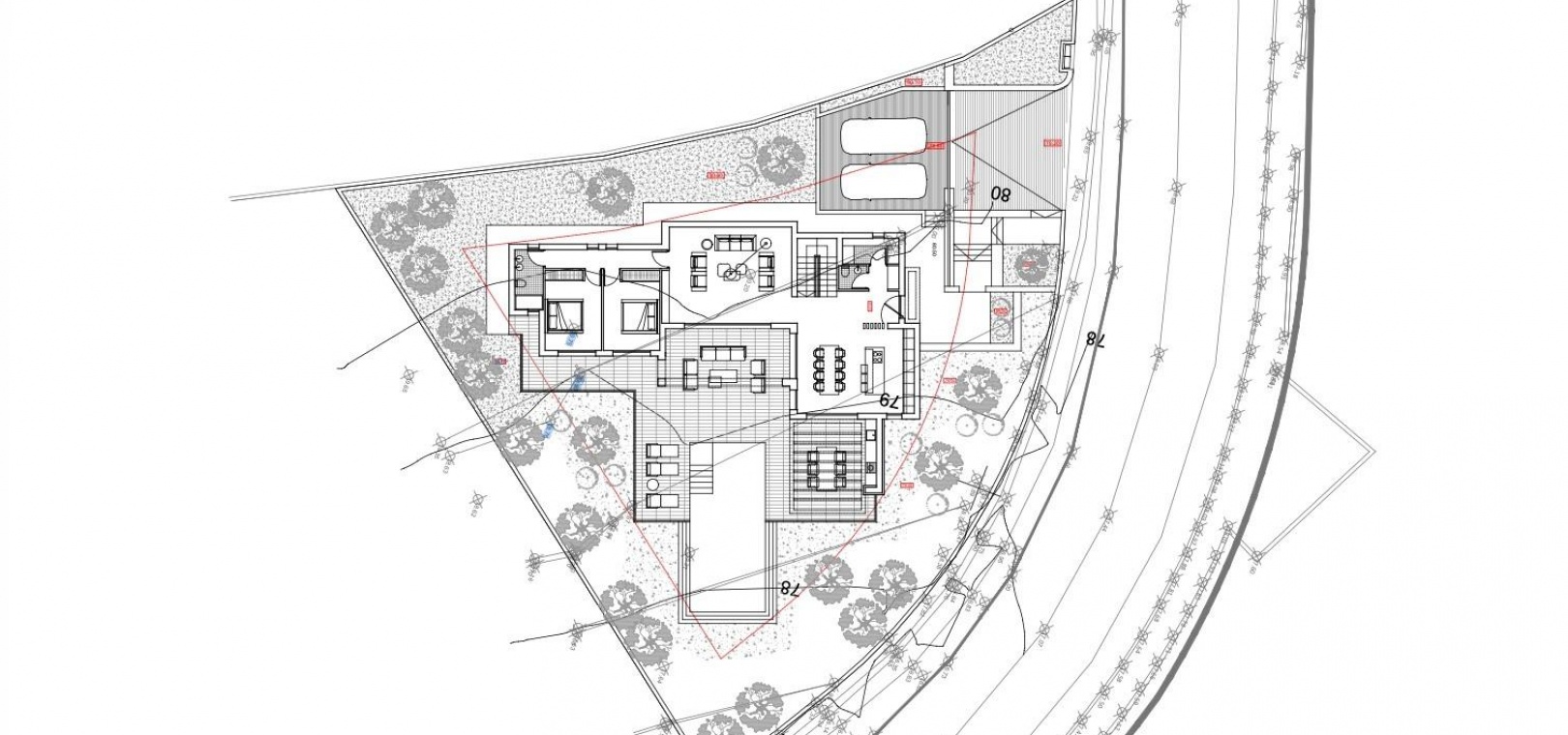
Diese Villa erstreckt sich über zwei Ebenen auf einem großzügigen 876 m² großen Grundstück mit doppeltem Privatparkplatz.
Das Erdgeschoss verfügt über zwei Schlafzimmer, die sich ein Badezimmer teilen, ein Gäste-WC mit Waschküche und ein helles Wohnzimmer mit offener Küche. Große Schiebetüren verbinden den Innenbereich mit einer großzügigen Terrasse und einem privaten Infinity-Pool mit Blick auf das Meer.
Im Obergeschoss verfügt das Hauptschlafzimmer über ein eigenes Badezimmer, ein Ankleidezimmer und Zugang zu einer beeindruckenden 54 m² großen offenen Terrasse mit Panoramablick auf das Meer.
Ibizenkisches Design und hochwertige Ausstattung
Inspiriert von den klaren Linien und natürlichen Materialien Ibizas, kombiniert die Architektur kubische Volumen, Holz und Stein, um warme und zeitlose Räume zu schaffen. Große Fenster maximieren das natürliche Licht und schaffen einen nahtlosen Übergang zwischen Innen- und Außenbereich.
Die Villen werden mit hochwertiger Ausstattung geliefert, darunter:
Voll ausgestattete Küche mit Geräten
Designer-Badezimmer mit Möbeln
Elektrische Jalousien
Video-Gegensprechanlage und Alarmanlage
Aerothermisches System für Warmwasser und Fußbodenheizung
Voll installierte Klimaanlage
Entfernungen zu wichtigen Sehenswürdigkeiten
Strand La Fustera 1 km
Calpe 7 km
Moraira 8 km
Ifach Golf Club 6 km
Flughafen Alicante 80 km
Flughafen Valencia 110 km
Erleben Sie die Essenz des mediterranen Lebens
Wenn Sie auf der Suche nach einer modernen Villa sind, in der Design, Komfort und Natur in perfekter Harmonie miteinander verschmelzen, ist dies Ihre Gelegenheit. Kontaktieren Sie uns noch heute, um weitere Informationen zu erhalten oder eine private Besichtigung dieser exklusiven Villen in La Fustera, Benissa Costa, zu vereinbaren.
574
