VILLAS NEUVES A LA ROMANA
Villas neuves situées à La Romana.
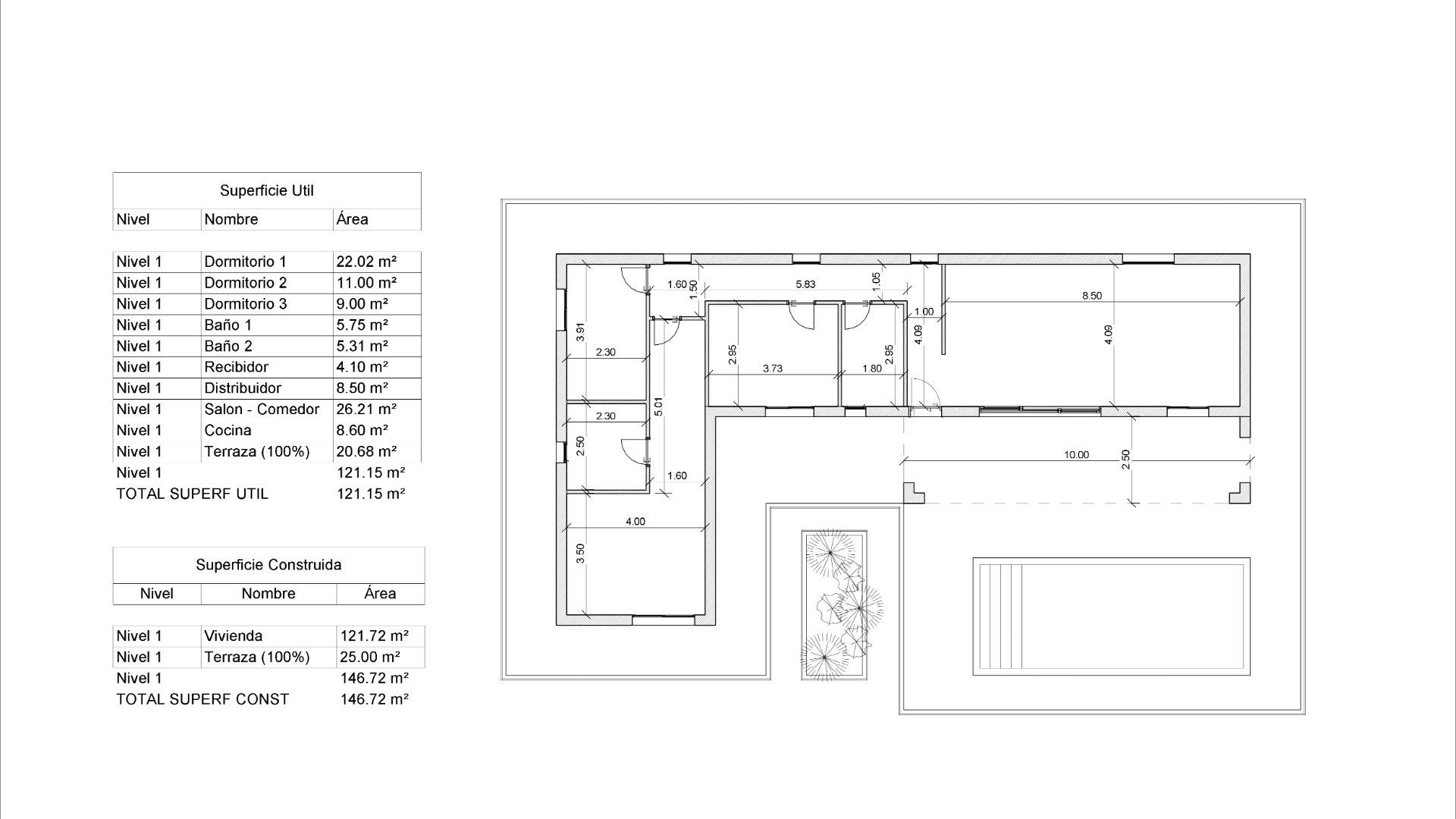
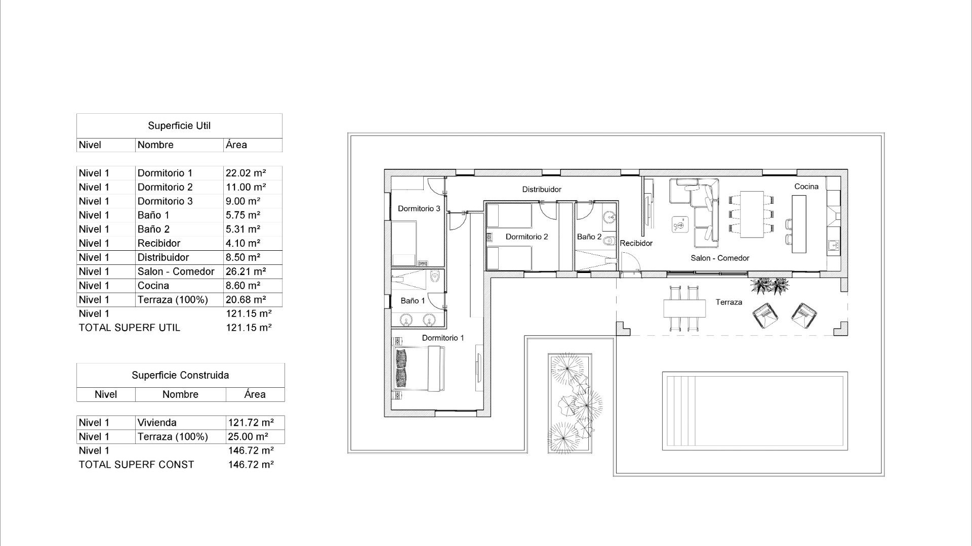
Villa de plain-pied construite sur un terrain rustique de 14 569m2, avec 3 chambres et 2 salles de bains, cuisine ouverte sur le salon, armoires encastrées, piscine privée et place de parking hors route.
Si vous recherchez un environnement calme, proche des villages espagnols typiques, entouré de montagnes et à environ 30 minutes de la mer, c'est votre maison.
La Romana, village espagnol typique, entouré de montagnes et à environ 30 minutes de la mer.
Villa située à 30 minutes de l'aéroport d'Alicante.
