Les villas Formentera du Vistabella Golf Resort offrent une vie de luxe sans précédent au cœur de la pittoresque Orihuela Costa, située entre San Miguel et Los Montesinos. Ces magnifiques villas, conçues avec une attention exquise aux détails, offrent un havre de confort et de sophistication.
Le complexe lui-même dispose d'une entrée sécurisée et d'une gamme impressionnante d'équipements, notamment un parcours de golf de 18 trous, des courts de padel, des terrains de boules, un supermarché et une sélection variée de bars et de restaurants. Avec des projets en cours pour un nouveau club-house, un bar à champagne, un bar à sushis, un hôtel spa, une plage artificielle, un court de tennis, un terrain de football, un bar gastronomique et bien plus encore, le complexe est sur le point de se transformer en un complexe de luxe 5 étoiles de premier ordre.
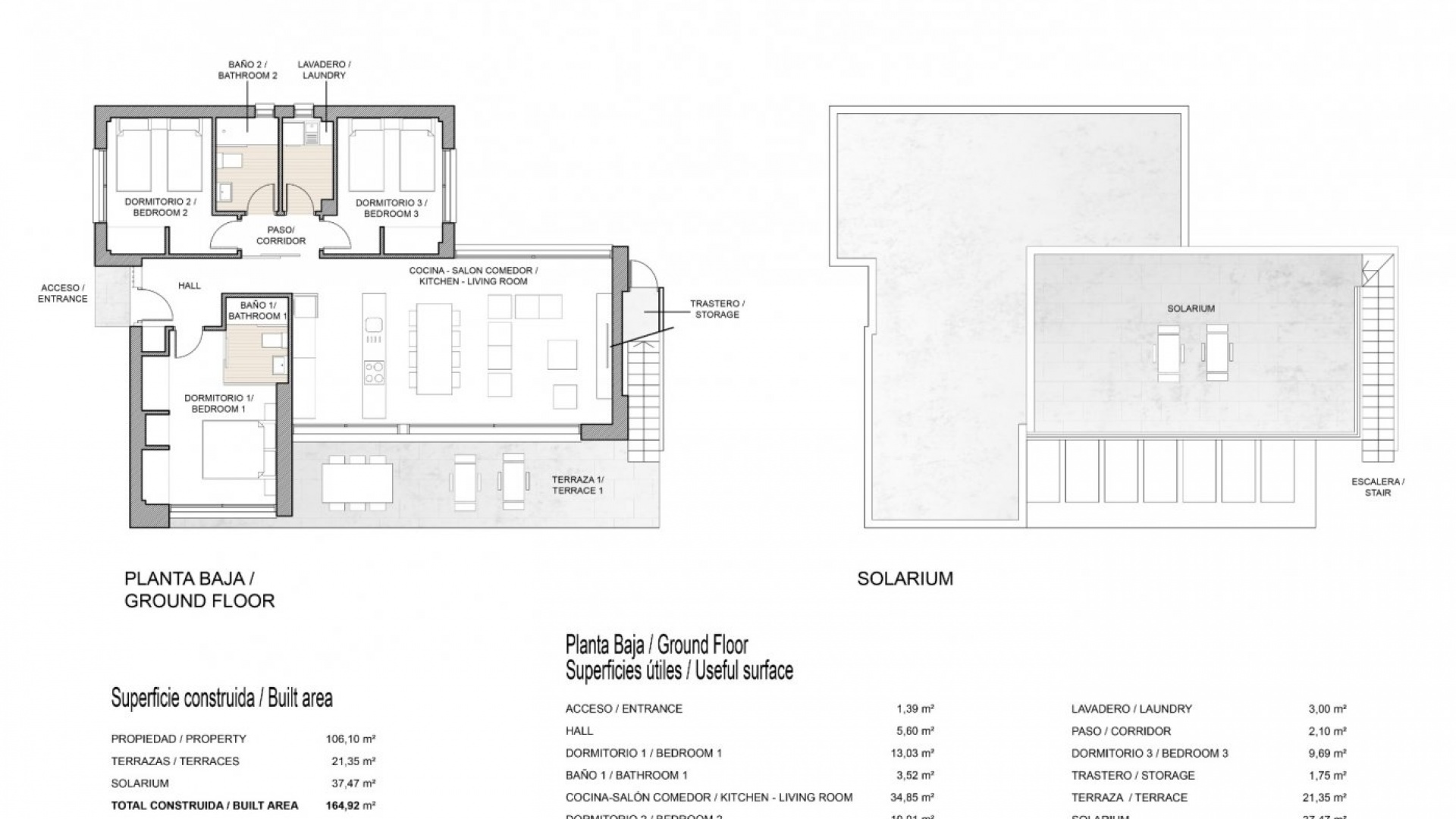
La superbe villa de Formentera est conçue sur un seul niveau, offrant une accessibilité et une commodité transparentes. Le salon spacieux s'ouvre sur un jardin privé, doté d'une piscine luxueuse, créant un espace idyllique pour la détente et le divertissement en plein air.
À l'intérieur, une cuisine ouverte et un coin repas offrent un espace élégant et fonctionnel pour les activités culinaires et les réunions sociales. Une buanderie séparée ajoute de la praticité à la vie quotidienne.
La villa dispose d'une chambre principale avec une salle de bains privative et des armoires encastrées, offrant une retraite sereine. Deux chambres doubles supplémentaires avec placards offrent un hébergement suffisant pour les invités ou les membres de la famille. Une salle de bains pour invités améliore la commodité.
Pour ceux qui recherchent des vues à couper le souffle et une évasion paisible, un escalier mène à un vaste solarium privé sur le toit de 38 m², offrant une vue panoramique sur la campagne environnante.
Vistabella Golf Resort n'est pas seulement un quartier résidentiel, mais aussi une communauté dynamique entourée de collines et de montagnes verdoyantes. Avec une gamme de bars, d'activités sportives et de restaurants, elle est devenue une destination toute l'année pour de nombreux résidents. Les villes voisines de San Miguel et Los Montesinos se trouvent à quelques minutes en voiture, offrant d'autres commodités et expériences culturelles. De plus, les plages immaculées Pavillon bleu sont facilement accessibles, ce qui rend cet endroit parfait à la fois pour la détente et les loisirs.
