Réf.: NEWSP-33968

Villas neuves situées dans la commune d'Aspe.

  • Villa · Nouvelle construction
    Réf.: NEWSP-33968
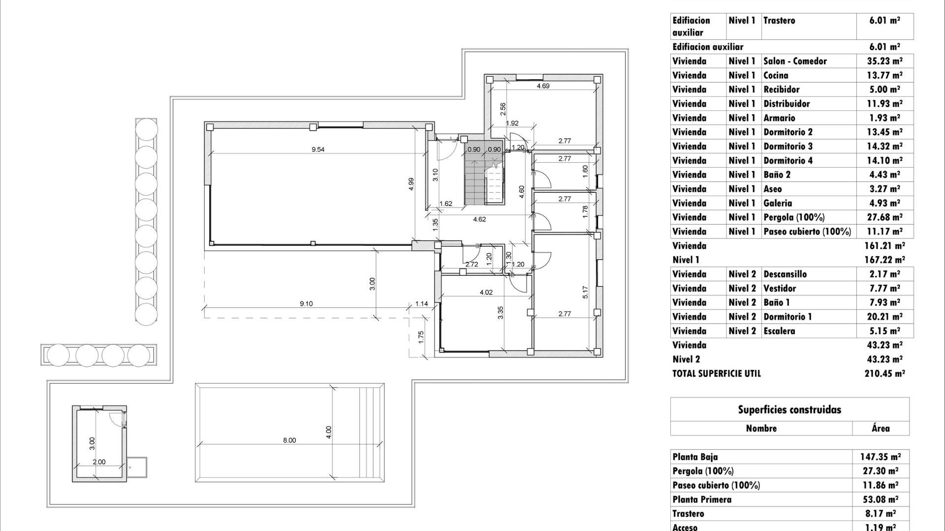
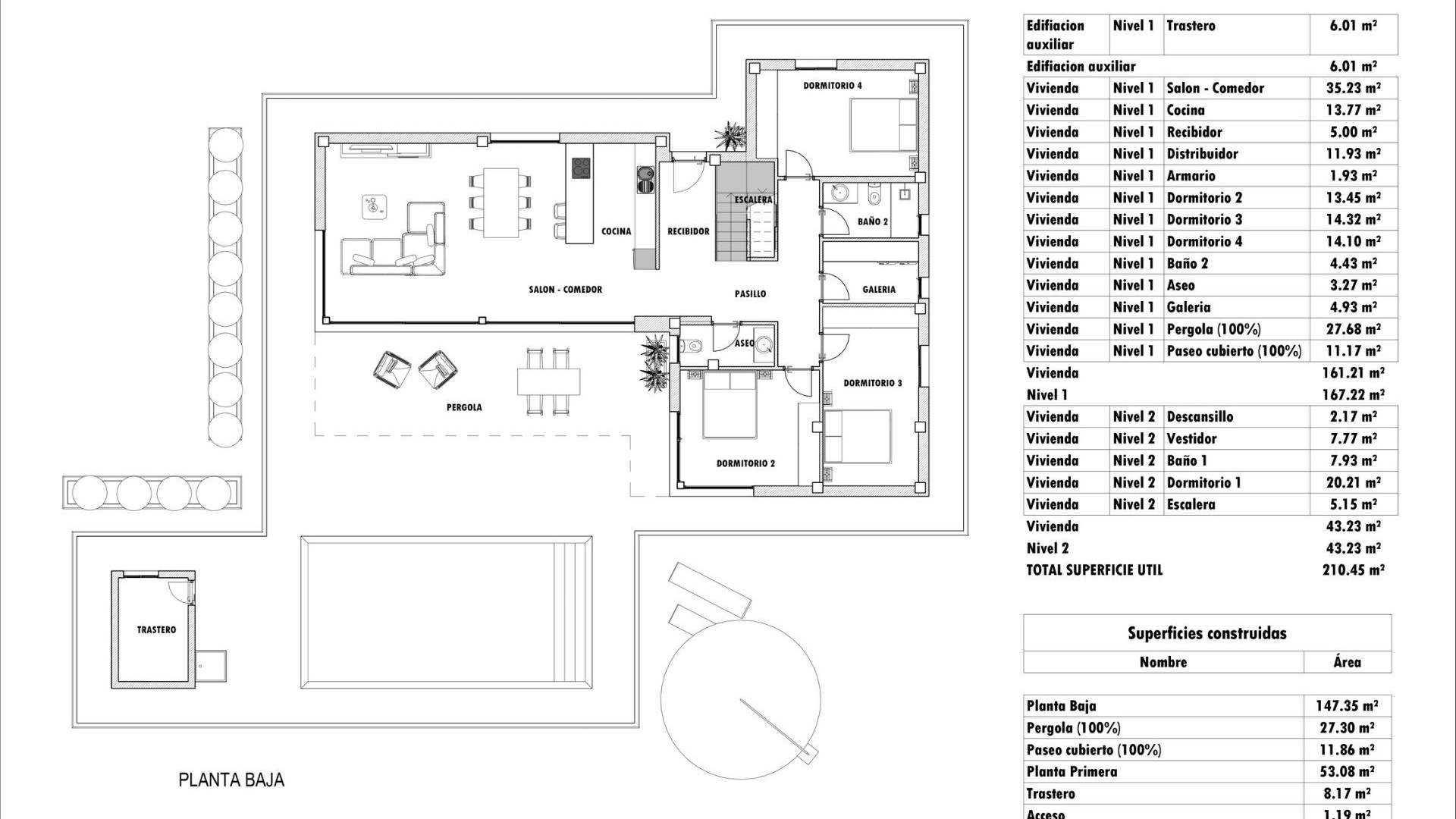
  • 248m2
  • 13.172m2
  • 4
  • 3
  •  

Propriété Les caractéristiques

Chambres: 4
Salles de bain: 3
Construit: 248m2
Intrigue: 13.172m2
Piscine: Oui
Distance à la plage: 40000 Mts.
Garden
Private Pool
Près des écoles
Fermé
Nombre de places de stationnement : 1
Climatisation : Pré-installée
Terrasse : 38 m².
Chambres doubles : 4
Plage : 25 000 mètres
Place de parking
Espace de construction utilisable : 210 m².
Localisation : Montagne
Stockage / Trastero

Description de la propriété

Soumettre Réservez une visualisation

Emplacement

Énergie
Énergie:
B

Se renseigner

Responsable del tratamiento: , Finalidad del tratamiento: Gestión y control de los servicios ofrecidos a través de la página Web de Servicios inmobiliarios, Envío de información a traves de newsletter y otros, Legitimación: Por consentimiento, Destinatarios: No se cederan los datos, salvo para elaborar contabilidad, Derechos de las personas interesadas: Acceder, rectificar y suprimir los datos, solicitar la portabilidad de los mismos, oponerse altratamiento y solicitar la limitación de éste, Procedencia de los datos: El Propio interesado, Información Adicional: Puede consultarse la información adicional y detallada sobre protección de datos Aquí.
Newsletter

Abonnez-vous à notre newsletter

Receive our latest property listings & special offers straight to your inbox

© 2026 ES PROPERTY FOR SALE IN SPAIN - All rights reserved Intimité Termes et conditions Cookies Plan du site

Conception: Mediaelx

Créer une alerte Créer une alerte
Contact par Whatsapp