Villas neuves exclusives à Santa Rosalia Lake and Life Resort – Une vie de luxe au cœur de Murcie
Là où le design contemporain rencontre le paradis méditerranéen
Découvrez un nouveau standard de luxe au très prisé Santa Rosalia Lake and Life Resort, une résidence exclusive et sécurisée nichée dans la région ensoleillée de Murcie. À seulement 4 km des eaux chaudes et peu profondes de la Mar Menor, ce prestigieux complexe est idéalement situé à proximité de parcours de golf de renommée mondiale, de la ville côtière animée de Los Alcázares et à quelques minutes en voiture de la ville historique de Carthagène. Avec l'aéroport international de Murcie à seulement 22 km, vous pourrez voyager facilement depuis le Royaume-Uni et toute l'Europe.
Villas élégantes conçues pour une vie méditerranéenne moderne
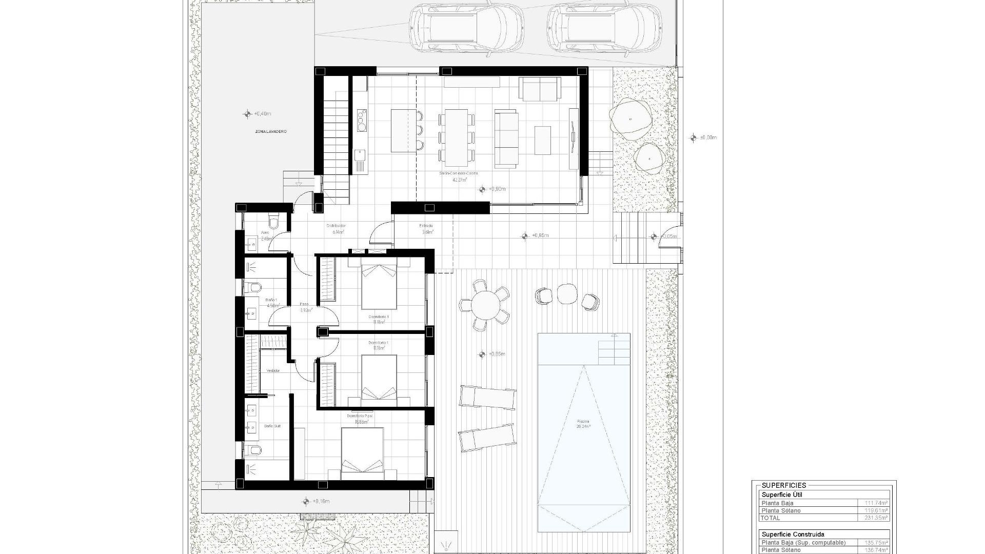
Ces superbes villas neuves ont été soigneusement conçues pour allier lumière, espace et fonctionnalité. Chaque maison offre trois chambres spacieuses, deux salles de bains élégantes et des toilettes invités. L'espace de vie ouvert relie harmonieusement la cuisine haut de gamme, la salle à manger et le salon, le tout ouvrant sur un magnifique jardin paysager avec piscine privée : l'endroit idéal pour profiter du soleil espagnol.
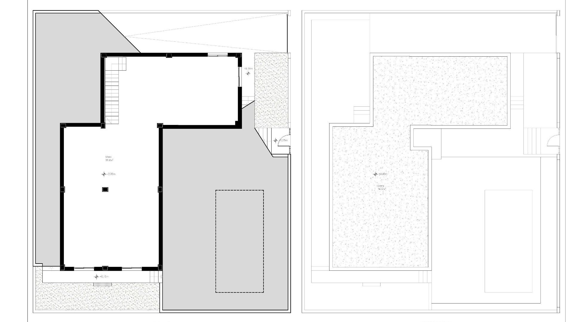
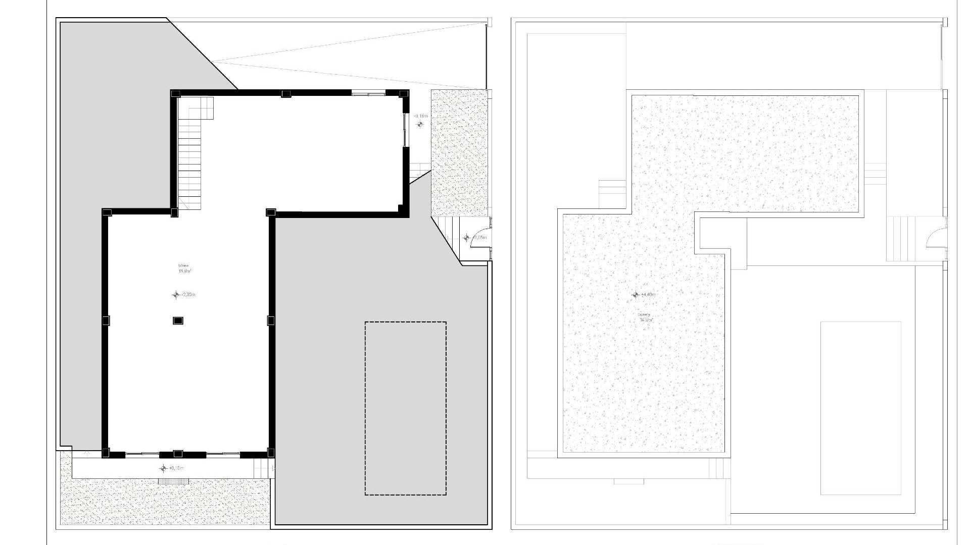
Pour plus de flexibilité, un vaste sous-sol aménagé de 136 m² offre des possibilités infinies : pensez à des chambres supplémentaires, une salle de sport à domicile, un cinéma privé, un bureau ou même une salle de jeux élégante pour les enfants.
Finitions de luxe et touches durables
Construites selon les normes les plus strictes, ces villas disposent de volets motorisés, de placards intégrés, de la climatisation gainable et d'une porte blindée. La cuisine entièrement équipée est dotée d'appareils électroménagers haut de gamme, tandis qu'à l'extérieur, gazon artificiel, palmiers et système d'irrigation créent une oasis de verdure accueillante. Pour favoriser un mode de vie durable, chaque villa est équipée de six panneaux solaires photovoltaïques, alliant luxe et efficacité énergétique.
Santa Rosalia – Un complexe hôtelier pas comme les autres
Au cœur du complexe se trouve un impressionnant lagon cristallin de 17 000 m², bordé de plages de sable blanc, de palmiers ondulants et d'îlots paisibles abritant bars et clubs de plage. Les résidents peuvent profiter de plus de 126 000 m² d'espaces verts paysagers, de terrains de sport, de parcours de santé, d'un mini-golf, d'aires de jeux pour enfants et d'un club-house animé, offrant ainsi un équilibre parfait entre loisirs, bien-être et nature.
Une opportunité de choix – pour vivre ou investir
Que vous recherchiez la maison de vacances de vos rêves, une résidence principale ou un investissement locatif rentable, Santa Rosalia vous offre tout ce dont vous avez besoin. Son emplacement, son style de vie et son potentiel locatif futur en font une opportunité rare sur le marché immobilier espagnol.
✨ Renseignez-vous aujourd'hui
Réservez votre petit coin de paradis au Santa Rosalia Lake and Life Resort. Contactez-nous dès maintenant pour organiser une visite ou une consultation immobilière individuelle au Royaume-Uni avec l'un de nos spécialistes en construction neuve.
