Résidence exclusive de construction neuve à Marbella
Nouvelles maisons à Marbella ! Élégance, détente et déconnexion dans un environnement privilégié.
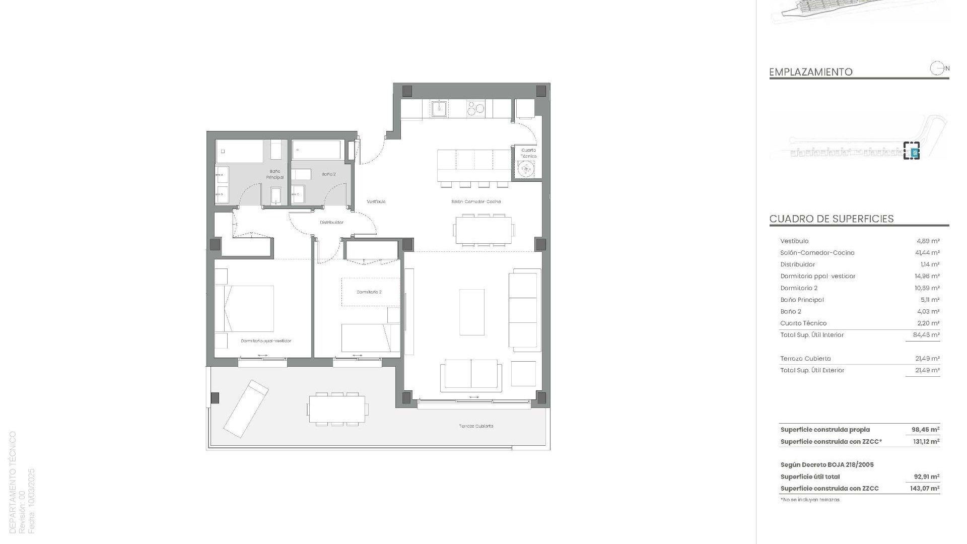
Maisons exclusives de construction neuve à Marbella, de 2 et 3 chambres, avec d'incroyables terrasses donnant sur la mer Méditerranée.
Résidence moderne et exclusive de 80 logements, conçue pour offrir un équilibre parfait entre intimité, confort et tranquillité pour toute la famille.
Elle dispose de logements avec de grandes terrasses. De plus, la promotion comprend des rez-de-jardin avec jardin et des penthouses avec terrasse et solarium privé. Les intérieurs de tous les logements se caractérisent par leur luminosité et leurs excellentes finitions.
Les parties communes sont conçues pour améliorer la qualité de vie et comprennent une piscine extérieure et une piscine intérieure chauffée, un hammam et un spa, une salle de sport, un espace de coworking et un club social. Vous pourrez également profiter d'une grande terrasse pour profiter de l'air frais et d'une vue imprenable sur la mer Méditerranée.
Il est situé dans un cadre naturel privilégié au sein d'Altos de los Monteros, une petite oasis en pleine nature, où vous pourrez vous déconnecter et vous détendre tout en profitant d'une vue imprenable sur la mer. À seulement 5 minutes du centre de Marbella et de son centre historique, de la plage de Los Monteros, du golf Río Real et du centre commercial La Cañada.
Qualités maximales, notamment :
MENUISERIE EXTÉRIEURE En PVC ou en aluminium laqué haute performance avec rupture de pont thermique et double vitrage.
Volets en aluminium avec isolation thermique dans les chambres et les salons. Motorisés dans les chambres et préinstallés dans le salon.
Installation d'eau chaude sanitaire par aérothermie.
Installation de climatisation par pompe à chaleur à conduits.
Plancher chauffant dans toute la maison, alimenté par l'unité centrale d'aérothermie.
Domotisation de la maison contrôlable via smartphone.
Électroménager inclus.
Porte d'entrée blindée
Excellentes communications avec l'autoroute et les aéroports de Malaga et Gibraltar. Entouré des meilleurs terrains de golf, ports de plaisance, plages et d'une offre gastronomique variée, allant des typiques « chiringuitos » de plage et bars à tapas aux restaurants les plus luxueux étoilés au guide Michelin. Sur tout le littoral méditerranéen, les plages, les villes et les terrains de golf de la Costa del Sol sont les seuls à bénéficier de plus de 320 jours de soleil par an et d'une température moyenne annuelle de 20 °C.
Un paradis au bord de la mer qui offre bien plus que du soleil et de la plage, et où vous pourrez profiter du véritable style de vie méditerranéen.
