Réf.: NEWSP-45457

Appartements modernes neufs au cœur de Torrevieja

  • Appartement · Nouvelle construction
    Réf.: NEWSP-45457
  • 91m2
  • 2
  • 2
  •  

Propriété Les caractéristiques

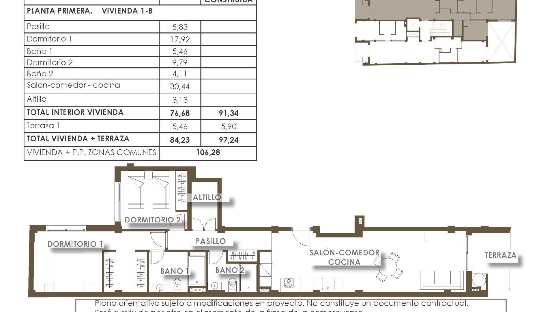
Chambres: 2
Salles de bain: 2
Construit: 91m2
Piscine: Oui
Distance à la plage: 150 Mts.
Près des parcs pour enfants
Espace
Communal Pool
Près des écoles
Fermé
Près du centre commercial
Près de la ligne de bus
Climatisation : Pré-installée
Ascenseur/Ascenseur
Localisation : côtière
Chambres doubles : 2
Plage : 150 mètres
Terrasse : 5 m².
Espace de construction utilisable : 76 M².

Description de la propriété

Soumettre Réservez une visualisation

Emplacement

Énergie
Énergie:
B

Se renseigner

Responsable del tratamiento: , Finalidad del tratamiento: Gestión y control de los servicios ofrecidos a través de la página Web de Servicios inmobiliarios, Envío de información a traves de newsletter y otros, Legitimación: Por consentimiento, Destinatarios: No se cederan los datos, salvo para elaborar contabilidad, Derechos de las personas interesadas: Acceder, rectificar y suprimir los datos, solicitar la portabilidad de los mismos, oponerse altratamiento y solicitar la limitación de éste, Procedencia de los datos: El Propio interesado, Información Adicional: Puede consultarse la información adicional y detallada sobre protección de datos Aquí.
Newsletter

Abonnez-vous à notre newsletter

Receive our latest property listings & special offers straight to your inbox

© 2026 ES PROPERTY FOR SALE IN SPAIN - All rights reserved Intimité Termes et conditions Cookies Plan du site

Conception: Mediaelx

Créer une alerte Créer une alerte
Contact par Whatsapp