Appartements modernes d'une chambre à Mijas Costa – Confort, style et excellent rapport qualité-prix
Une vie contemporaine à Las Lagunas, Mijas Costa
Découvrez un nouveau programme immobilier passionnant de 116 appartements élégants d'une chambre situés à Las Lagunas, Mijas Costa, l'un des quartiers les plus dynamiques et les plus prometteurs de la Costa del Sol. Cet emplacement offre un équilibre parfait entre la tranquillité résidentielle et la commodité urbaine, avec tous les services essentiels à quelques minutes. Les résidents bénéficient de la proximité des centres commerciaux, des écoles, des cliniques, des installations sportives et d'un large choix de restaurants.
Conception intelligente et espaces fonctionnels
Conçus pour la vie contemporaine, ces appartements offrent des agencements ouverts qui maximisent à la fois l'espace et le confort. Les intérieurs lumineux sont caractérisés par des matériaux naturels et des tons chauds, créant une atmosphère chaleureuse et accueillante. Le salon, la cuisine et la chambre à coucher s'intègrent harmonieusement dans un design fluide, la terrasse servant de prolongement naturel de l'espace intérieur, idéal pour profiter de la lumière méditerranéenne et de la vie en plein air tout au long de l'année.
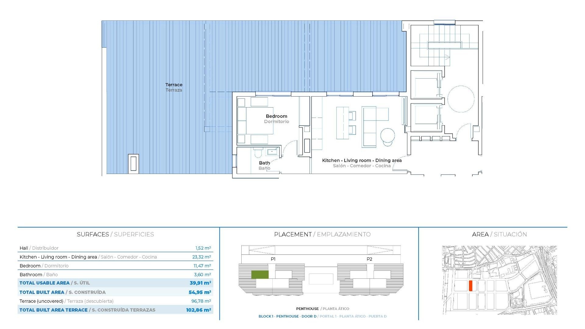
Vous avez le choix entre des appartements en rez-de-jardin ou en étage intermédiaire avec terrasse, ou des penthouses avec de vastes terrasses privées, parfaites pour prendre le soleil ou recevoir des invités.
Chaque appartement comprend :
Cuisine entièrement équipée avec appareils électroménagers
Système de climatisation par conduits
Une place de parking privée incluse
Des équipements haut de gamme pour un mode de vie équilibré
Le complexe est construit autour d'une piscine communautaire centrale avec un bar tropical, offrant un cadre idéal pour se détendre et se retrouver. Il y a également un espace barbecue dédié pour les réunions en famille ou entre amis. Les résidents bénéficieront également d'un accès à une salle de sport entièrement équipée, leur permettant de mener une vie saine et active sans quitter leur domicile.
Pour les professionnels ou les étudiants, un espace de coworking offre un environnement moderne et pratique pour le télétravail ou les études, renforçant ainsi l'engagement en faveur d'un mode de vie où confort, loisirs et productivité coexistent.
Distances principales :
Plages de Mijas Costa : 2 km
Centre commercial Miramar : 1 km
Centre-ville de Fuengirola : 4 km
Club de golf Chaparral : 5 km
Aéroport de Málaga-Costa del Sol : 25 km
Marbella : 25 km
Investissez au cœur de la Costa del Sol
Ce projet résidentiel représente une opportunité unique pour les primo-accédants, les investisseurs ou les retraités à la recherche d'une communauté dynamique et bien desservie, offrant d'excellentes commodités et un excellent rapport qualité-prix. Que ce soit pour y vivre ou pour investir dans la location, ces appartements modernes à Mijas Costa sont conçus pour s'adapter au mode de vie actuel.
Contactez-nous dès aujourd'hui et réservez votre place dans l'une des zones les plus prometteuses de la Costa del Sol.
