Réf.: NEWSP-16171

Appartements neufs à Los Balcones, Torrevieja

  • Appartement · Nouvelle construction
    Réf.: NEWSP-16171
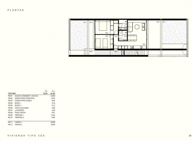
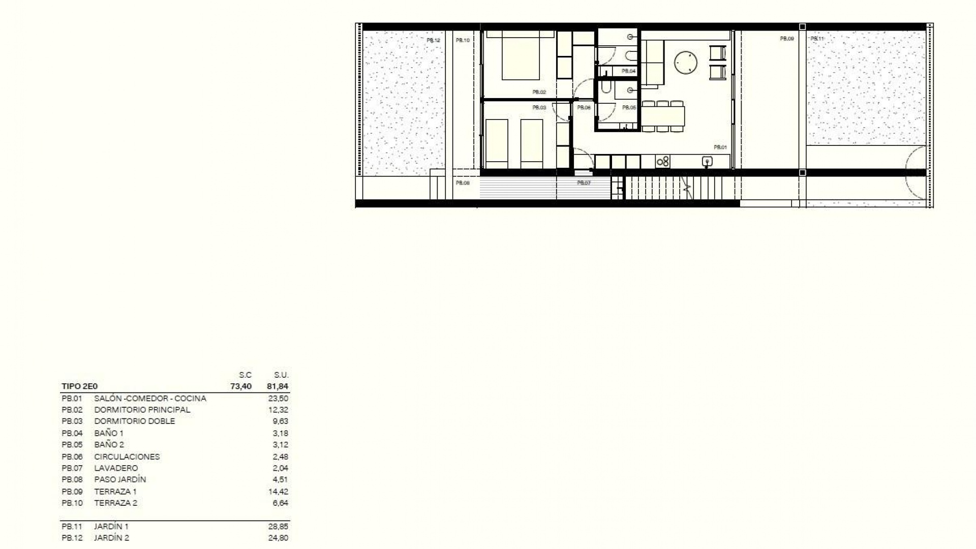
  • 81m2
  • 53m2
  • 2
  • 2
  •  

Propriété Les caractéristiques

Chambres: 2
Salles de bain: 2
Construit: 81m2
Intrigue: 53m2
Piscine: Oui
Distance à la plage: 3500 Mts.
Chambres doubles : 2
Plage : 3500 mètres
Espace de construction utilisable : 73 m².
Terrasse : 20 m².
Place de parking
Stockage / Trastero
Communal Pool
Garden
Près des écoles
Fermé
Nombre de places de stationnement : 1
Près du centre commercial
Emplacement : Côtier, Urbanisation
Climatisation : Pré-installée

Description de la propriété

Soumettre Réservez une visualisation

Emplacement

Énergie
Énergie:
B

Se renseigner

Responsable del tratamiento: , Finalidad del tratamiento: Gestión y control de los servicios ofrecidos a través de la página Web de Servicios inmobiliarios, Envío de información a traves de newsletter y otros, Legitimación: Por consentimiento, Destinatarios: No se cederan los datos, salvo para elaborar contabilidad, Derechos de las personas interesadas: Acceder, rectificar y suprimir los datos, solicitar la portabilidad de los mismos, oponerse altratamiento y solicitar la limitación de éste, Procedencia de los datos: El Propio interesado, Información Adicional: Puede consultarse la información adicional y detallada sobre protección de datos Aquí.
Newsletter

Abonnez-vous à notre newsletter

Receive our latest property listings & special offers straight to your inbox

© 2026 ES PROPERTY FOR SALE IN SPAIN - All rights reserved Intimité Termes et conditions Cookies Plan du site

Conception: Mediaelx

Créer une alerte Créer une alerte
Contact par Whatsapp