Appartements de luxe à Estepona avec vue imprenable sur la mer
Découvrez un développement exclusif de 72 appartements de luxe situés dans le quartier recherché de La Resina, à Estepona. Ce complexe prestigieux offre des finitions haut de gamme, des équipements de classe mondiale et des vues sur la mer à couper le souffle, conçues pour répondre aux exigences des acheteurs les plus exigeants.
Emplacement de choix à La Resina, Estepona
Située dans le quartier en plein développement de La Resina, cette urbanisation n'est qu'à 10 minutes en voiture du centre-ville animé d'Estepona, connu pour sa charmante vieille ville, ses plages et son port de plaisance. Les hauts lieux cosmopolites de Marbella et de Puerto Banús, célèbres pour leur atmosphère internationale animée, ne sont qu'à une courte distance. Les amateurs de golf seront ravis de trouver plusieurs terrains de golf renommés à seulement 5 minutes de la résidence, tandis que des restaurants de haut niveau, des clubs de plage et des centres commerciaux sont également à portée de main.
Une vie de villégiature avec des équipements exceptionnels
Ce projet est niché au sommet d'une colline et bénéficie d'une orientation sud et sud-ouest, ce qui permet aux résidents de profiter d'une vue imprenable sur la mer et les montagnes environnantes. S'étendant sur 100 hectares de paysages paisibles et verdoyants, la communauté offre un environnement serein, à mi-chemin entre la campagne et la montagne.
Le complexe est conçu pour améliorer votre mode de vie grâce à un éventail impressionnant d'équipements, dont deux piscines extérieures, une salle de sport ultramoderne, un spa de luxe et des jardins magnifiquement aménagés. Pour les amateurs de golf, un putting green est disponible, offrant des vues panoramiques spectaculaires.
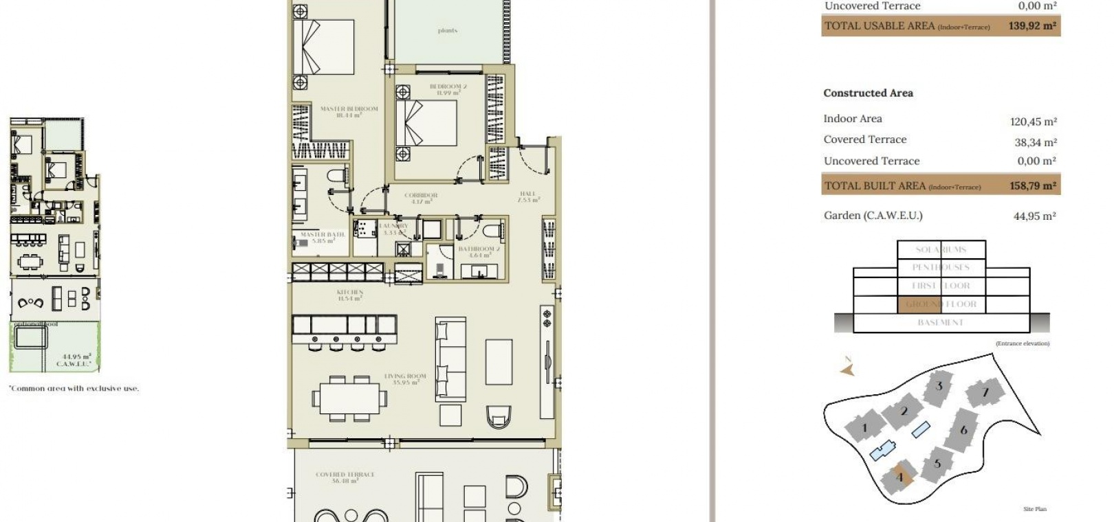
Conception exquise et qualité supérieure
Le projet se compose de sept bâtiments élégants, de trois étages chacun, soigneusement positionnés pour maximiser les vues sur la mer et la lumière naturelle. Les appartements sont disponibles en configurations de 2, 3 et 4 chambres, avec des intérieurs magnifiquement conçus et des finitions de haute qualité. Les unités du rez-de-chaussée disposent de vastes jardins privés, tandis que les penthouses sont dotés de solariums et de piscines privés. Tous les appartements sont équipés de cuisines modernes Modulnova, alliant style et fonctionnalité.
Sécurité et confort de vie
Les résidents auront l'esprit tranquille grâce à la sécurité assurée 24 heures sur 24 à l'entrée principale, ainsi qu'aux quatre points d'accès pour véhicules stratégiquement placés, menant au parking souterrain, où chaque appartement dispose d'une place de stationnement désignée.
Distances principales des points d'intérêt
Estepona : 10 km
Marbella : 20 km
Puerto Banús : 15 km
Club de golf La Resina : 2 km
Aéroport de Malaga : 75 km
Aéroport de Gibraltar : 55 km
Port d'Estepona : 10 km
Centres commerciaux : 7 km
Ce projet est une opportunité unique de vivre le meilleur de la Costa del Sol, avec chaque détail conçu pour offrir un style de vie luxueux et décontracté dans l'un des quartiers les plus prisés d'Estepona.
