NIEUWBOUW VILLA'S IN LA ROMANA
Nieuwbouw villa gelegen in La Romana.
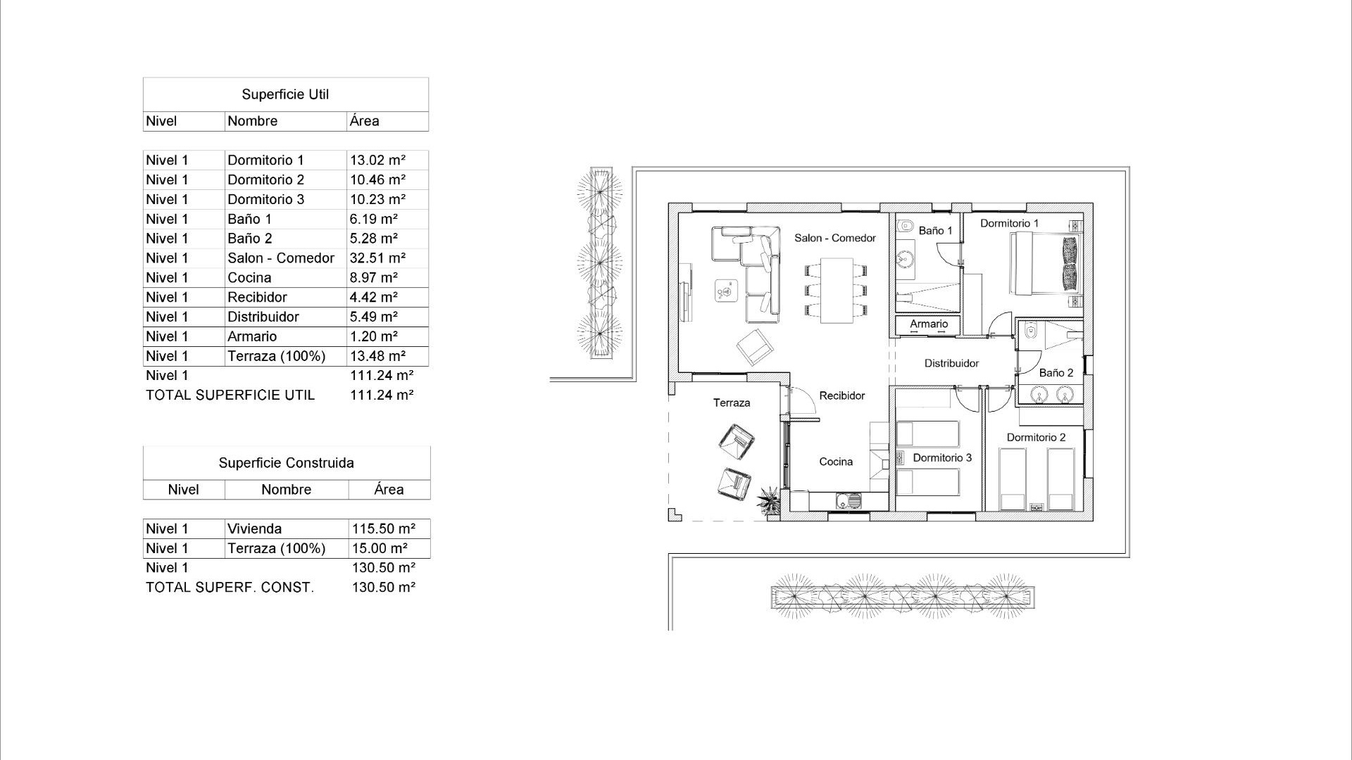
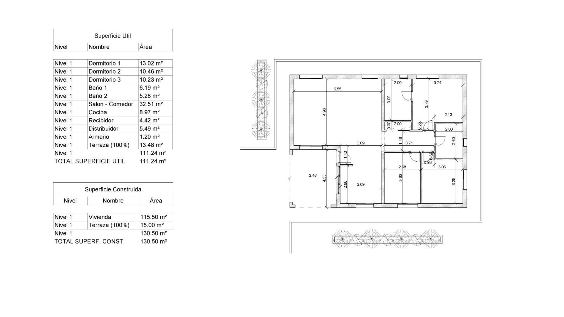
Gelijkvloerse villa gebouwd op het rustieke perceel van 14 569m2, heeft 3 slaapkamers en 2 badkamers, open keuken met zithoek, inbouwkasten, privézwembad en parkeerplaats.
Als je op zoek bent naar een rustige omgeving, dicht bij typisch Spaanse dorpjes, omringd door bergen en op ongeveer 30 minuten van de zee, dan is dit je thuis.
La Romana typisch Spaans dorp, omringd door bergen en op ongeveer 30 minuten van de zee.
Villa gelegen op 30 minuten van de luchthaven van Alicante.
