Villa's Formentera op Vistabella Golf Resort bieden ongeëvenaard luxe leven in het hart van de pittoreske Orihuela Costa, gelegen tussen San Miguel en Los Montesinos. Deze prachtige villa's, ontworpen met voortreffelijke aandacht voor detail, bieden een oase van comfort en verfijning.
Het resort zelf beschikt over een beveiligde ingang en een indrukwekkend scala aan voorzieningen, waaronder een 18-holes golfbaan, padelbanen, bowlingbanen, een supermarkt en een gevarieerde selectie aan bars en restaurants. Nu er plannen zijn voor een nieuw clubhuis, een champagnebar, een sushibar, een spahotel, een kunstmatig strand, een tennisbaan, een voetbalveld, een gastronomische bar en meer, staat het resort op het punt om te transformeren in een vooraanstaand luxe 5-sterrencomplex.
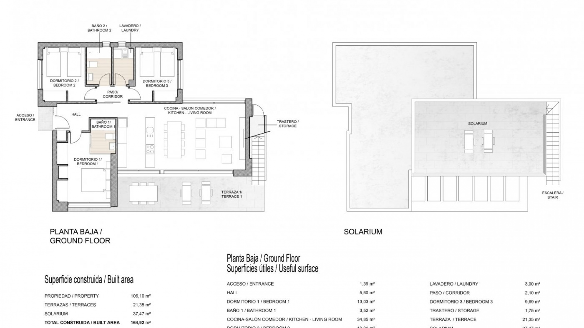
De prachtige villa in Formentera is geheel op één niveau ontworpen en biedt naadloze toegankelijkheid en gemak. De ruime lounge komt uit op een privétuin, compleet met een luxueus zwembad, waardoor een idyllische ruimte ontstaat voor ontspanning en amusement buiten.
Binnen bieden een open keuken en eetkamer een stijlvolle en functionele ruimte voor culinaire activiteiten en sociale bijeenkomsten. Een aparte wasruimte voegt functionaliteit toe aan het dagelijks leven.
De villa beschikt over een hoofdslaapkamer met een en-suite badkamer en inbouwkasten, wat een rustig toevluchtsoord biedt. Twee extra tweepersoonsslaapkamers met inbouwkasten bieden voldoende accommodatie voor gasten of familieleden. Een gastenbadkamer vergroot het gemak.
Voor degenen die op zoek zijn naar adembenemende uitzichten en een rustige ontsnapping, leidt een trap naar een uitgestrekt privésolarium op het dak van 38 m², met een panoramisch uitzicht op het omliggende platteland.
Vistabella Golf Resort is niet alleen een woonwijk, maar een levendige gemeenschap omringd door weelderige groene heuvels en bergen. Met een scala aan bars, sportactiviteiten en restaurants is het voor veel inwoners uitgegroeid tot een bestemming het hele jaar door. De nabijgelegen steden San Miguel en Los Montesinos liggen op slechts een klein eindje rijden en bieden verdere voorzieningen en culturele ervaringen. Bovendien zijn de ongerepte stranden met blauwe vlag gemakkelijk bereikbaar, waardoor deze locatie perfect is voor zowel ontspanning als recreatie.
