NIEUWBOUW VILLA IN LOS ALCAZARES
Nieuwbouw villa in Los Alcazares .
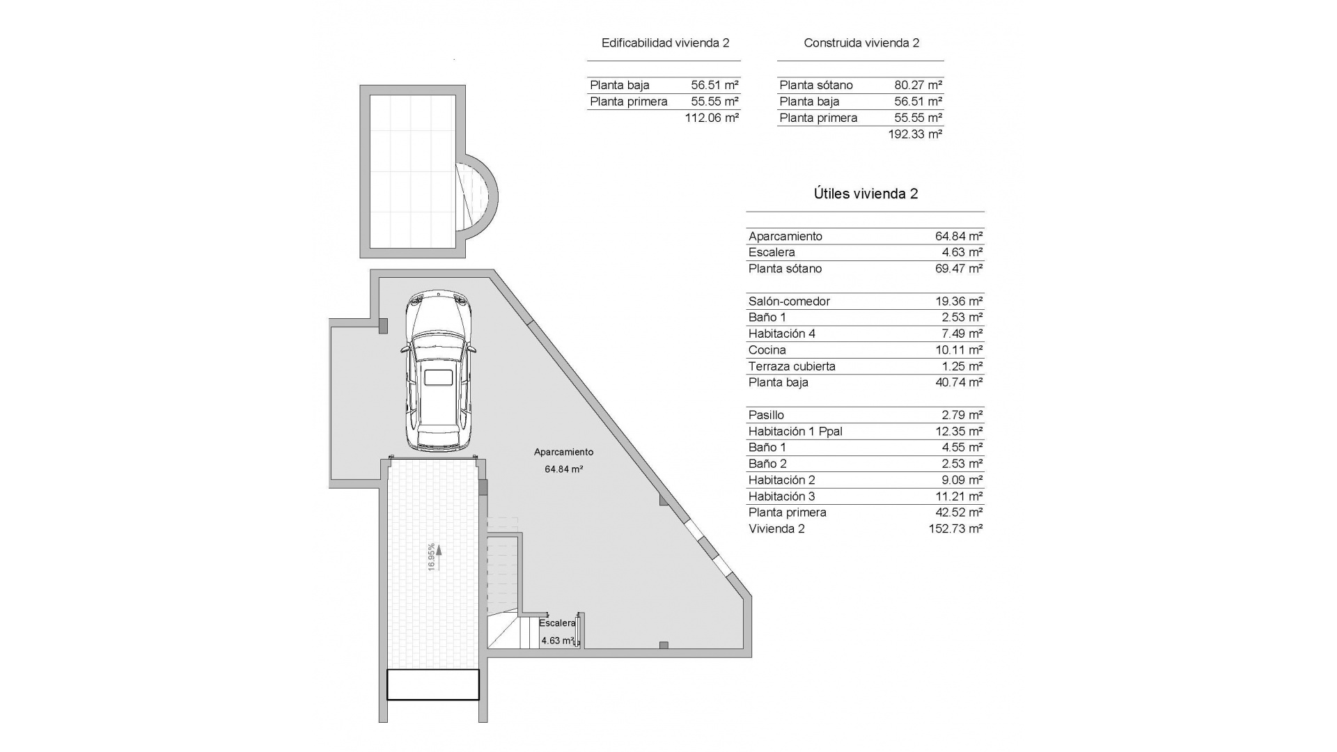
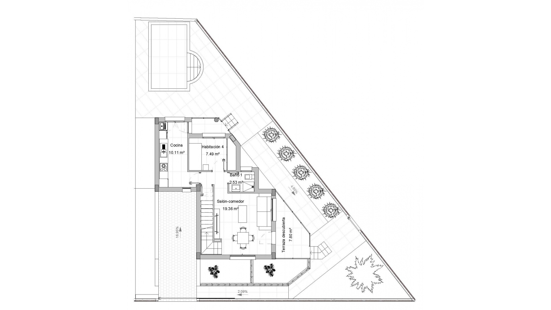
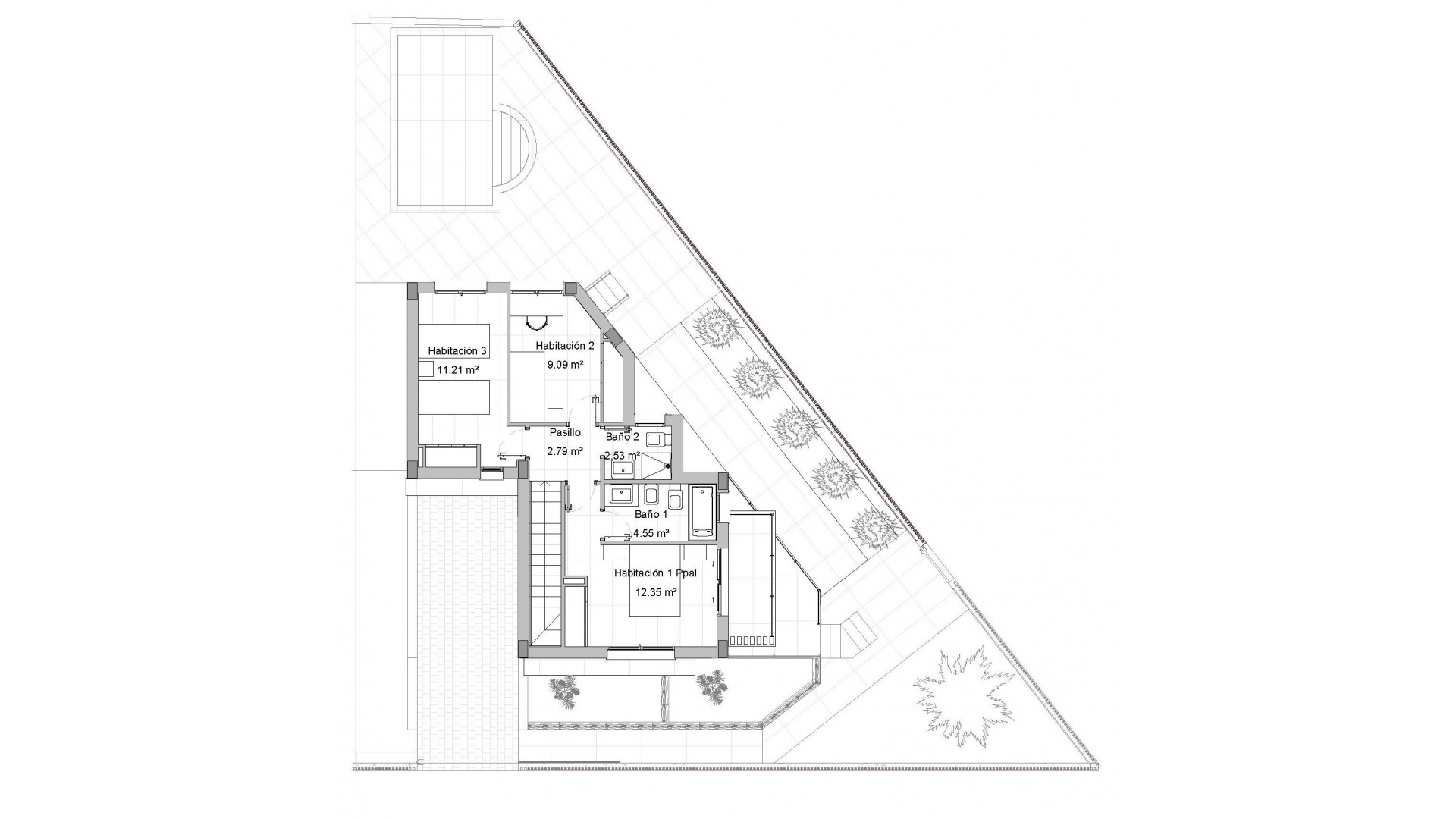
Prachtige villa met 4 slaapkamers en 3 badkamers, open keuken met zithoek, inbouwkasten, privétuin met zwembad, kelder met garage.
Uitgeruste keuken met roestvrij stalen gootsteen, koelkast, vaatwasser kookplaat, oven en afzuigkap.
Residentieel van villa's gelegen op 1,5 km van het strand en de stad Los Alcázares, waar u verschillende watersporten kunt beoefenen, omringd door verschillende golfbanen.
Het gebied is via de snelweg verbonden met de steden Cartagena, Murcia en Alicante en de rest van de stranden van de Costa Cálida en de Costa Blanca.
Het vliegveld Murcia Corvera ligt op 20 minuten rijden met de auto.
