Stap in de wereld van hedendaagse elegantie met Villa Gante , een luxe nieuwbouwvilla in het prestigieuze La Finca Golf Resort. Dit prachtige pand is ontworpen om de perfecte balans te bieden tussen moderne verfijning en een sereen mediterraan leven. Omringd door adembenemende uitzichten op de bergen, een Villa Gante is een 18-holes kampioenschapsgolfbaan op korte loopafstand van levendige bars, winkels en restaurants. Hier ervaart u een levensstijl vol ongeëvenaarde rust en gemak.
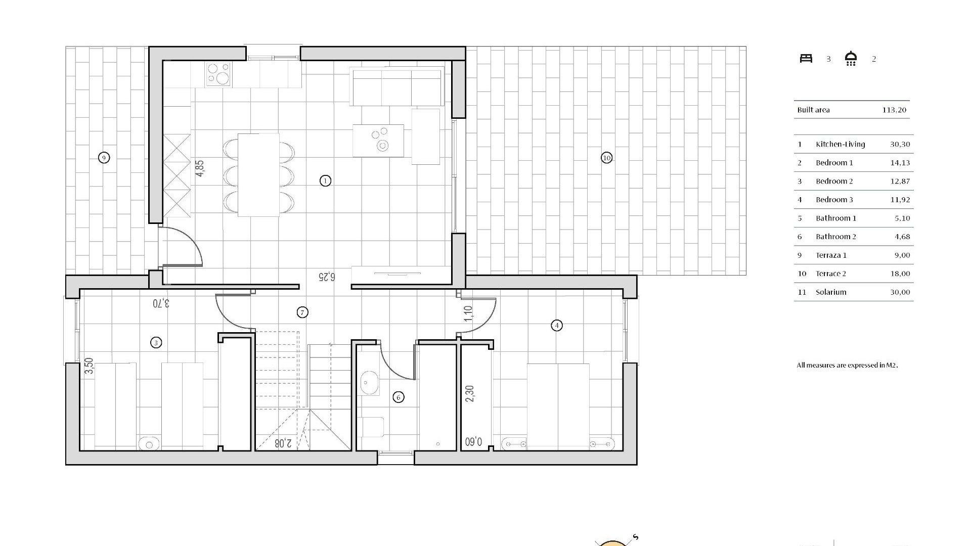
Deze villa is gebouwd volgens de hoogste normen en heeft een naadloos open ontwerp. De ruime lounge, badend in natuurlijk licht via de patiodeuren van vloer tot plafond, opent direct naar een privétuin en terras met een zwembad, ideaal voor entertainment in de buitenlucht en ontspanning. De moderne keuken is volledig uitgerust met premium apparatuur, waaronder een oven, kookplaat, afzuigkap, vaatwasser, koel-/vriescombinatie en magnetron, waardoor een ruimte ontstaat die stijl en functionaliteit combineert.
Op de begane grond beschikt de villa over twee prachtig ontworpen tweepersoonsslaapkamers met inbouwkasten en een strakke, volledig ingerichte badkamer. Elke kamer weerspiegelt aandacht voor detail en combineert elegantie en comfort.
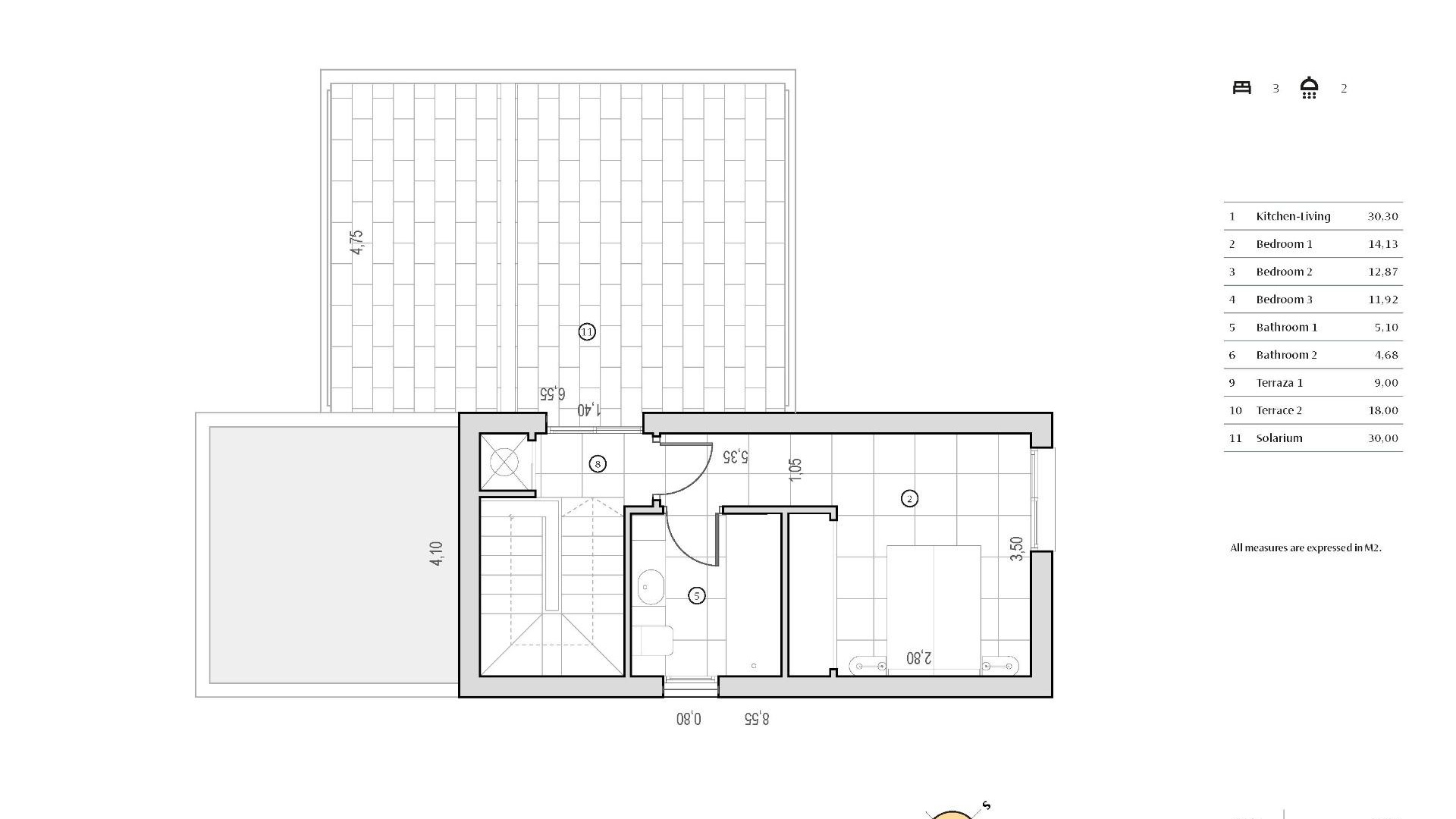
De eerste verdieping van Villa Gante is gewijd aan de luxe master suite, compleet met inbouwkasten, een en-suite badkamer en een privé zonneterras met een prachtig uitzicht op het omliggende landschap. Een aparte wasruimte en berging zorgen voor gemak en zorgen ervoor dat elke De villa is tot in detail ontworpen voor praktisch wonen.
Gelegen in La Finca Golf Resort, profiteert dit pand van een toplocatie dicht bij het traditionele Spaanse dorp Algorfa. Op slechts 15 minuten rijden vindt u de ongerepte blauwe vlag stranden van Guardamar, waar gouden zand en de Middellandse Zee op u wachten. De Ook de bruisende steden Los Montesinos en San Miguel de Salinas liggen vlakbij en bieden een scala aan voorzieningen, waaronder bars, winkels en restaurants.
La Finca Golf Resort is meer dan alleen een bestemming, het is een levensstijl. Bekend om zijn pittoreske omgeving, uitzonderlijke golfbaan en luxe spahotel, is het de ideale retraite voor degenen die op zoek zijn naar een harmonieuze mix van ontspanning en luxe. Villa Gante is niet alleen een thuis, maar ook een kans om het beste van het leven aan de Costa Blanca te ervaren.
Geniet van de elegantie van Villa Gante en ervaar het toppunt van moderne mediterrane luxe. Neem vandaag nog contact met ons op om een privébezichtiging te regelen en de eerste stap te zetten naar het bezitten van dit buitengewone pand.
