Ref.: NEWSP-33968

Nieuwbouwwoningen gelegen in de gemeente Aspe.

  • Villa · Nieuw gebouw
    Ref.: NEWSP-33968
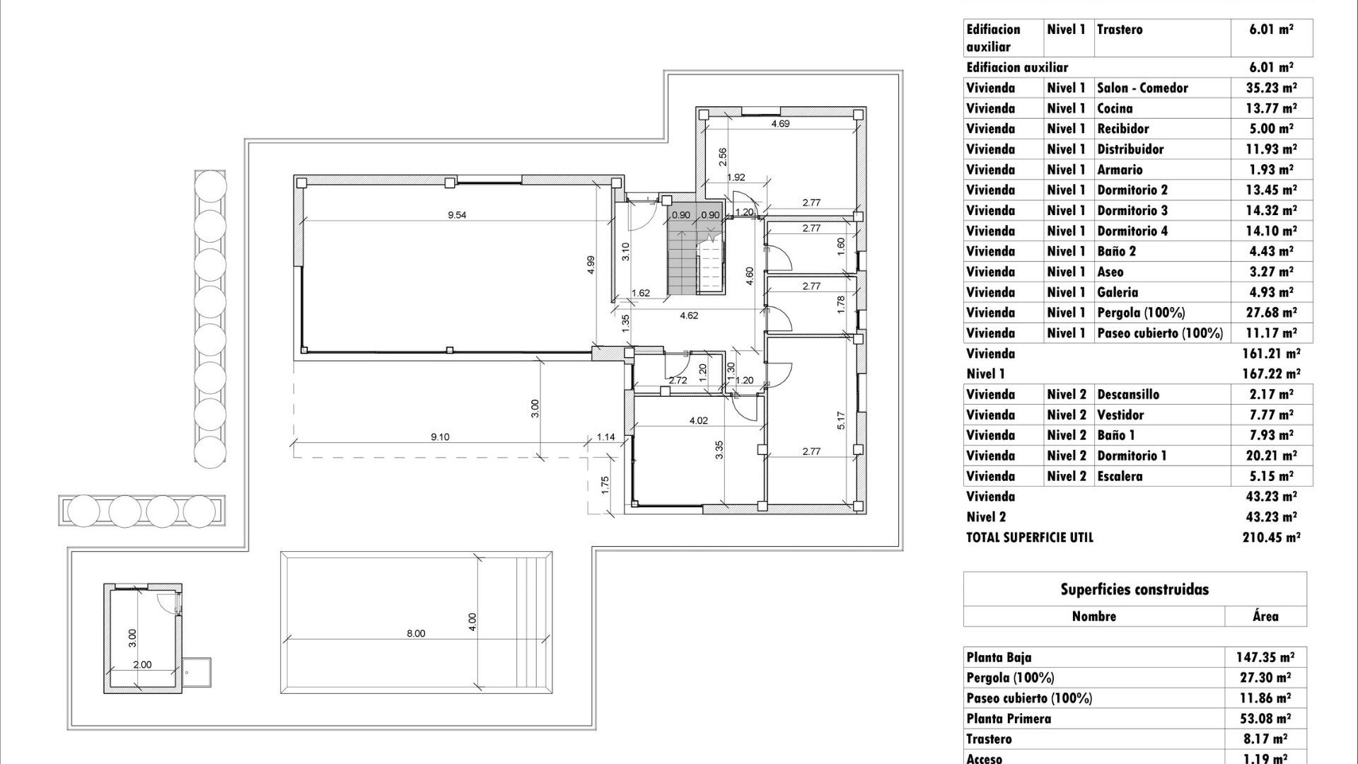
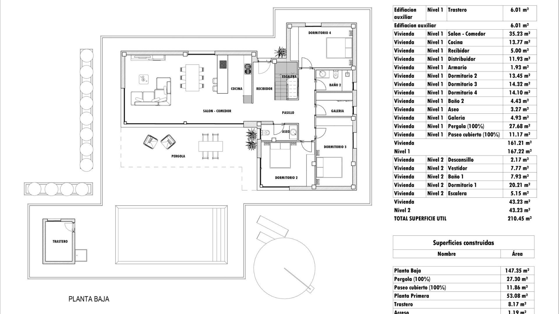
  • 248m2
  • 13.172m2
  • 4
  • 3
  •  

Eigendom Kenmerken

Bedden: 4
Badkamers: 3
Gebouwd: 248m2
Plot: 13.172m2
Zwembad: Ja
Afstand naar het strand: 40000 Mts.
Garden
Private Pool
In de buurt van scholen
Omheind
Aantal parkeerplaatsen: 1
Airconditioning: vooraf geïnstalleerd
Terras: 38 m².
Dubbele slaapkamers: 4
Strand: 25.000 meter
Parkeerplaats
Bruikbare bouwruimte: 210 Msq.
Locatie: Berg
Opslag / Trastero

Beschrijving eigendom

Voorleggen Boek een kijkje

Plaats

Energy Rating
Energy Rating:
B

Informeer nu

Responsable del tratamiento: , Finalidad del tratamiento: Gestión y control de los servicios ofrecidos a través de la página Web de Servicios inmobiliarios, Envío de información a traves de newsletter y otros, Legitimación: Por consentimiento, Destinatarios: No se cederan los datos, salvo para elaborar contabilidad, Derechos de las personas interesadas: Acceder, rectificar y suprimir los datos, solicitar la portabilidad de los mismos, oponerse altratamiento y solicitar la limitación de éste, Procedencia de los datos: El Propio interesado, Información Adicional: Puede consultarse la información adicional y detallada sobre protección de datos Aquí.
Newsletter

Abonneer je op onze nieuwsbrief

Receive our latest property listings & special offers straight to your inbox

© 2026 ES PROPERTY FOR SALE IN SPAIN - All rights reserved Privacy Voorwaarden Cookies Web plan

Ontwerp: Mediaelx

Maak alert Maak alert
Contact door Whatsapp