Villa met zeezicht en Ibiza-charme in La Fustera, Benissa
Deze prachtige nieuwbouwwoning combineert de elegantie van hedendaagse architectuur met de warmte en het karakter van Ibiza-design. Gelegen in de gewilde wijk La Fustera (Benissa Costa), geniet deze woning van een panoramisch uitzicht op zee en ligt op slechts enkele minuten van het strand, supermarkten, restaurants en andere essentiële voorzieningen.
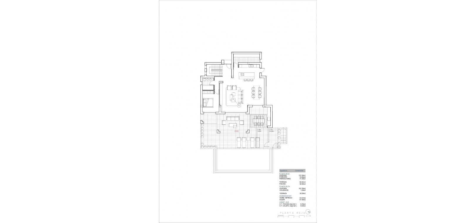
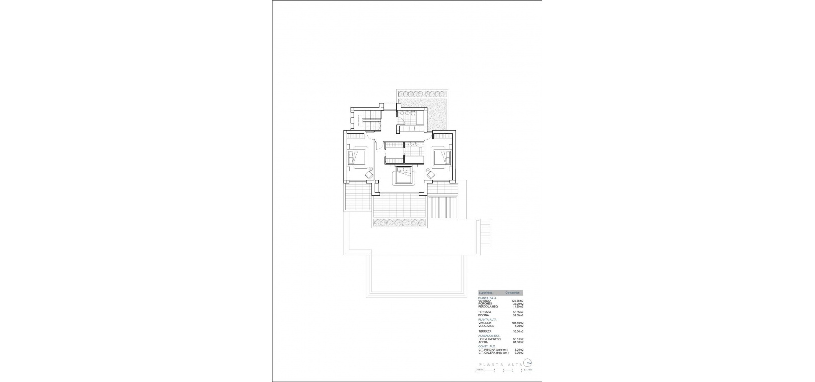
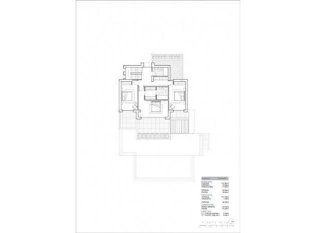
De woning is gelegen op een perceel van meer dan 1.000 m² en is verdeeld over twee verdiepingen en biedt in totaal 4 ruime slaapkamers en 3 badkamers. De begane grond heeft een open indeling met een grote woonkamer, eethoek en volledig uitgeruste keuken met kookeiland en ontbijtbar. Kamerhoge schuifdeuren verbinden het interieur met een royaal terras op het zuiden, waardoor een perfecte overgang tussen binnen en buiten ontstaat. Op deze verdieping bevinden zich ook een slaapkamer en een badkamer.
Buiten beschikt de villa over verschillende ontspannings- en eetruimtes, een overdekte barbecueplaats en een uitnodigend zwembad omgeven door weelderige beplanting en ligstoelen. Op de bovenverdieping zijn er drie extra slaapkamers (waaronder de master suite met en-suite badkamer en privéterras), evenals een tweede terras met prachtig uitzicht.
De woning is volledig uitgerust voor comfort het hele jaar door en is voorzien van vloerverwarming, airconditioning en hoogwaardige afwerkingen. Extra voorzieningen zijn onder meer een technische ruimte voor het verwarmingssysteem en een aparte ruimte voor het zwembadmateriaal, beide ondergronds gelegen om de ruimte en functionaliteit te maximaliseren.
Verzeker uzelf van uw droomvilla in La Fustera, Benissa Costa, en omarm de ultieme mediterrane levensstijl met adembenemend uitzicht op zee en ongeëvenaard comfort.
