Nieuwbouwappartementen in Los Pacos, Fuengirola – Resort-achtig wonen aan de Costa del Sol
Exclusieve woonwijk op een toplocatie
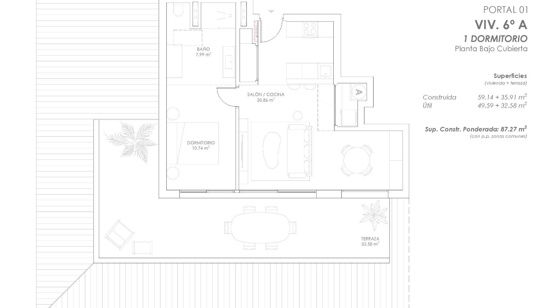
Ontdek een nieuwe levensstijl in het hart van Los Pacos, Fuengirola, met dit exclusieve project van 218 moderne appartementen met 1, 2 en 3 slaapkamers. Deze woningen zijn ontworpen volgens het concept van ‘resort-stijl wonen’ en combineren comfort, functionaliteit en een ontspannen sfeer, op slechts 1,5 km van het strand en slechts 5 minuten met de auto.
Los Pacos is een van de meest kosmopolitische en gewilde wijken van Fuengirola. Het biedt uitstekende wegverbindingen naar het stadscentrum, de stad Málaga, de internationale luchthaven van Málaga en de rest van de Costa del Sol. In de buurt vindt u de zandstranden van Carvajal en Los Boliches, evenals alle dagelijkse voorzieningen, waaronder scholen, sportcentra, supermarkten, restaurants, groene zones en openbaar vervoer.
Lichte en functionele woningen
Elk appartement is ontworpen om maximaal gebruik te maken van natuurlijk licht, met ruime interieurs, open indelingen en grote terrassen. Kies uit verschillende indelingen die aan uw behoeften voldoen, of u nu op zoek bent naar een hoofdverblijf, een vakantiehuis of een investeringsmogelijkheid. Voor een extra vleugje luxe bieden sommige terrassen de mogelijkheid om een privéjacuzzi toe te voegen.
Moderne voorzieningen en energie-efficiëntie
Deze woningen zijn gebouwd met hoogwaardige afwerkingen en duurzame systemen:
Aerothermisch warm water en klimaatbeheersing
Volledig ingerichte keukens met apparatuur
Badkamers met meubilair, spiegel, verlichting en doucheschermen
Versterkte veiligheidsdeur
Parkeerplaats en berging inbegrepen
Uitzonderlijke gemeenschappelijke ruimtes
Het project is ontworpen om comfort en ontspanning te bieden voor het hele gezin, met:
Zwembad voor volwassenen en kinderen
Aangelegde tuinen met planten die weinig water nodig hebben
Volledig uitgeruste fitnessruimte
Sauna en wellnessruimte
Coworkingruimte, ideaal voor werken op afstand
Gemeenschappelijke wasruimte
Afstanden tot belangrijke bezienswaardigheden:
Strand: 1,5 km
Centrum van Fuengirola: 3 km
Internationale luchthaven van Málaga: 20 km
Marbella: 25 km
Golfbanen: 5-10 km
Puerto Deportivo de Fuengirola: 4 km
Uw ideale woning aan de Costa del Sol
Met meer dan 320 dagen zon per jaar is Fuengirola een van de beste plekken om te genieten van de mediterrane levensstijl. Van zandstranden en golfbanen tot een bruisend cultureel leven en uitstekende restaurants, alles is binnen handbereik.
