Nieuwbouwwoningen aan de frontlinie van La Serena Golf in Los Alcázares
Toplocatie aan de golfbaan en de zee
Ontdek een exclusief woonproject met 31 nieuwbouwwoningen aan de frontlinie van La Serena Golf in Los Alcázares, op slechts 600 m van de Mar Menor. Gelegen in het hart van de Costa Cálida, combineert deze bevoorrechte omgeving golf, strand en mediterrane levensstijl. Met alle voorzieningen in de buurt en uitstekende wegverbindingen is dit de ideale locatie voor zowel vakanties als om het hele jaar door te wonen.
Moderne woningen met privézwembad en dakterras
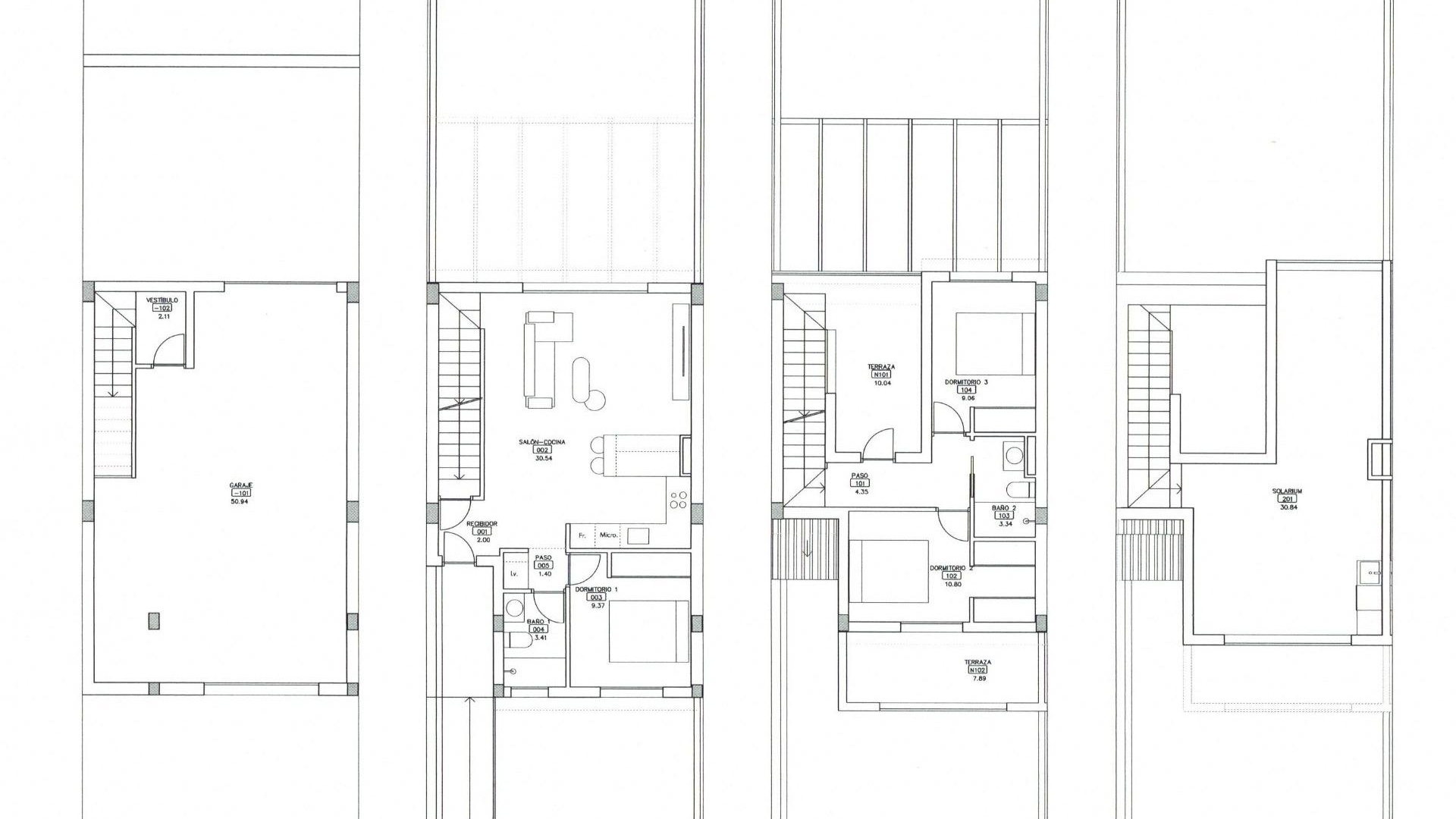
Elke woning heeft een stijlvol, eigentijds ontwerp en lichte binnenruimtes. De woningen zijn verdeeld over drie verdiepingen plus een dakterras en bieden maximaal comfort en privacy:
Kelder met privégarage voor 2 auto's en toegang tot een patio
Begane grond met open woonkamer en keuken die uitkomt op een tuin en privézwembad, 1 slaapkamer en 1 badkamer
Eerste verdieping met 2 slaapkamers, 1 badkamer en 2 terrassen
Dakterras met zomerkeuken, ideaal om te ontspannen en te genieten van het panoramische uitzicht
De oost- en westoriëntatie zorgt voor uitstekend natuurlijk licht en buitenleven gedurende de hele dag.
Hoogwaardige afwerking en comfort
Deze huizen zijn gebouwd volgens de hoogste normen en bieden premium voorzieningen, waaronder:
Privézwembad
Keldergarage voor 2 auto's met automatische deur
Aerothermisch warmwatersysteem
Volledig geïnstalleerde airconditioning
Ingerichte en uitgeruste keuken
Volledig uitgeruste badkamers met meubilair, spiegels en doucheschermen
Beveiligde toegangsdeur
Wonen tussen de zee en de fairway
Deze exclusieve gemeenschap, gelegen te midden van weelderige mediterrane landschappen, biedt een rustig leven naast de Serena Golfbaan, een gerenommeerde 18-holes golfbaan omgeven door natuur en rustige meren. Het warme, ondiepe water van de Mar Menor is perfect om te zwemmen en het hele jaar door te genieten van watersporten zoals zeilen, paddle-surfen en kajakken.
Belangrijkste afstanden:
Strand (Mar Menor): 600 m
La Serena Golf: naast het complex
Centrum van Los Alcázares: 2 km
Cartagena: 22 km
Murcia: 40 km
Luchthaven Murcia: 30 km
Luchthaven Alicante: 90 km
Verzeker uzelf van een mediterrane levensstijl
Of u nu op zoek bent naar een permanente woning, een vakantiehuis of een rendabele investering, deze huizen bieden luxe, gemak en een superieure levensstijl aan de kust.
Neem vandaag nog contact met ons op om een bezichtiging te plannen en uw nieuwe huis in Los Alcázares te verzekeren.
