Moderne appartementen met één slaapkamer in Mijas Costa – Comfort, stijl en uitstekende prijs-kwaliteitverhouding
Eigentijds wonen in Las Lagunas, Mijas Costa
Ontdek een spannend nieuw project met 116 stijlvolle appartementen met één slaapkamer in Las Lagunas, Mijas Costa, een van de meest dynamische en opkomende gebieden aan de Costa del Sol. Deze locatie biedt de perfecte balans tussen residentiële rust en stedelijk gemak, met alle essentiële voorzieningen op slechts enkele minuten afstand. Bewoners profiteren van de nabijheid van winkelcentra, scholen, gezondheidscentra, sportfaciliteiten en een breed scala aan restaurants.
Slim ontwerp en functionele ruimtes
Deze appartementen zijn ontworpen met het oog op modern wonen en bieden een open indeling die zowel ruimte als comfort maximaliseert. Het lichte interieur is uitgevoerd in natuurlijke materialen en warme tinten, waardoor een gezellige en uitnodigende sfeer ontstaat. De woonkamer, keuken en slaapkamer vloeien naadloos in elkaar over in een harmonieus ontwerp, waarbij het terras als een natuurlijke verlenging van de binnenruimte fungeert – ideaal om het hele jaar door te genieten van het mediterrane licht en het buitenleven.
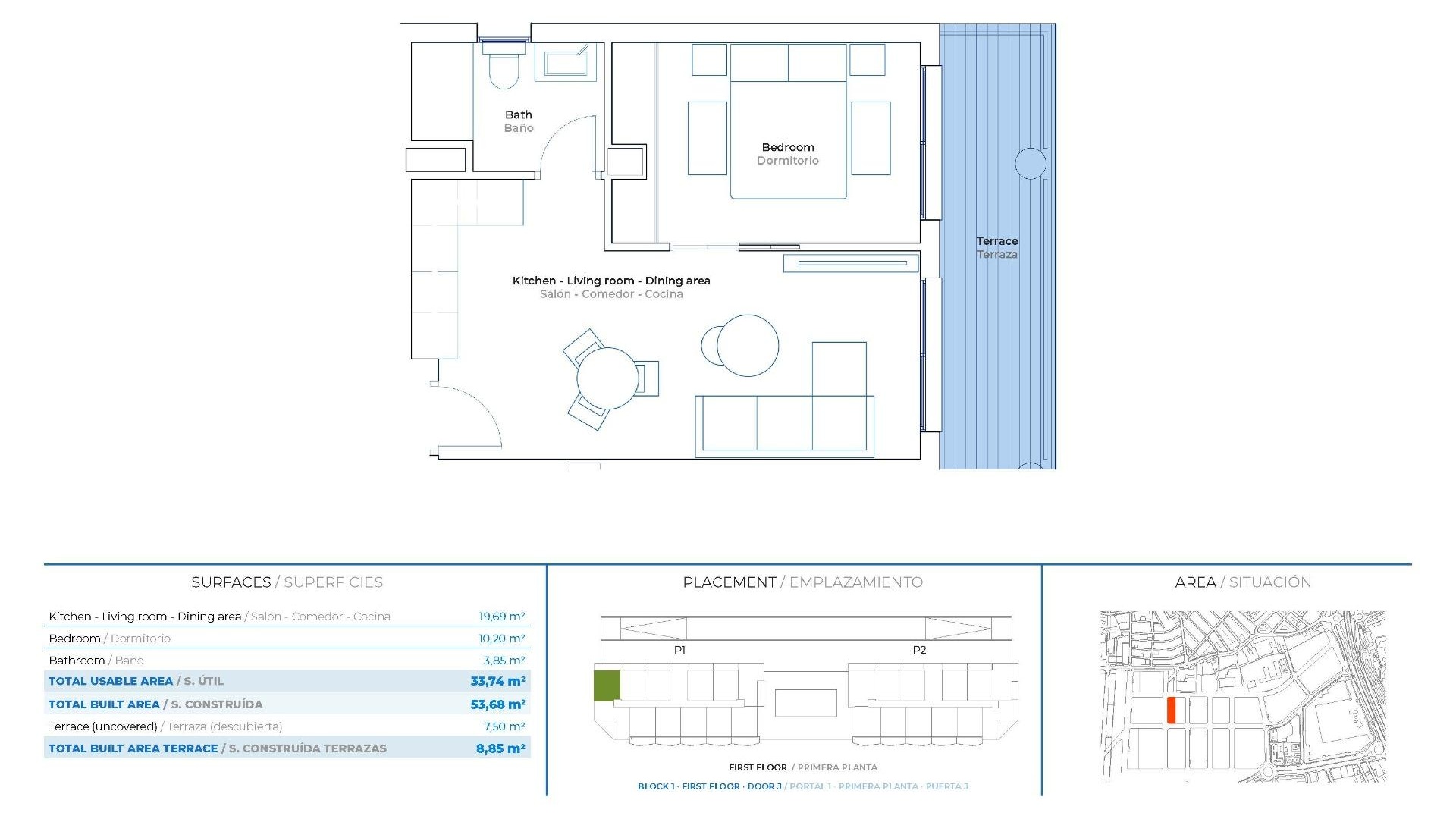
Kies uit appartementen op de begane grond of tussenverdiepingen met terrassen, of penthouses met grote privéterrassen die perfect zijn om te zonnebaden of gasten te ontvangen.
Elk appartement is voorzien van:
Volledig ingerichte keuken met apparatuur
Airconditioning via luchtkanalen
Eén eigen parkeerplaats inbegrepen
Premium voorzieningen voor een evenwichtige levensstijl
Het project is gebouwd rond een centraal gemeenschappelijk zwembad met een chill-outbar in tropische stijl, de perfecte plek om te ontspannen en te socializen. Er is ook een speciale barbecueplaats voor bijeenkomsten met familie en vrienden. Bewoners hebben ook toegang tot een volledig uitgeruste fitnessruimte, zodat ze een gezonde en actieve levensstijl kunnen nastreven zonder hun huis te verlaten.
Voor professionals of studenten biedt een co-workingruimte een moderne en praktische omgeving voor werken of studeren op afstand, wat het streven naar een levensstijl waarin comfort, vrije tijd en productiviteit samengaan, nog eens extra benadrukt.
Belangrijkste afstanden:
Stranden van Mijas Costa: 2 km
Winkelcentrum Miramar: 1 km
Centrum van Fuengirola: 4 km
Chaparral Golf Club: 5 km
Luchthaven Málaga-Costa del Sol: 25 km
Marbella: 25 km
Investeer in het hart van de Costa del Sol
Dit woonproject is een unieke kans voor starters, investeerders of gepensioneerden die op zoek zijn naar een goed verbonden, levendige gemeenschap met uitstekende voorzieningen en een goede prijs-kwaliteitverhouding. Of het nu gaat om een woning of een investering in verhuur, deze moderne appartementen in Mijas Costa zijn ontworpen om zich aan te passen aan de levensstijl van vandaag.
Neem vandaag nog contact met ons op en verzeker u van een plek in een van de meest veelbelovende gebieden van de Costa del Sol.
