Prachtig appartement met 2 slaapkamers op de begane grond en een grote privétuin in San Miguel de Salinas.
Dit prachtig gepresenteerde appartement met twee slaapkamers bevindt zich op de begane grond en beschikt over een zeer ruime privétuin. Het is perfect gelegen in het gewilde stadje San Miguel de Salinas , op loopafstand van bars, restaurants, supermarkten en andere voorzieningen . Deze woning combineert comfort, stijl en een uitstekende buitenruimte en is ideaal als vakantiehuis, permanente woning of investering.
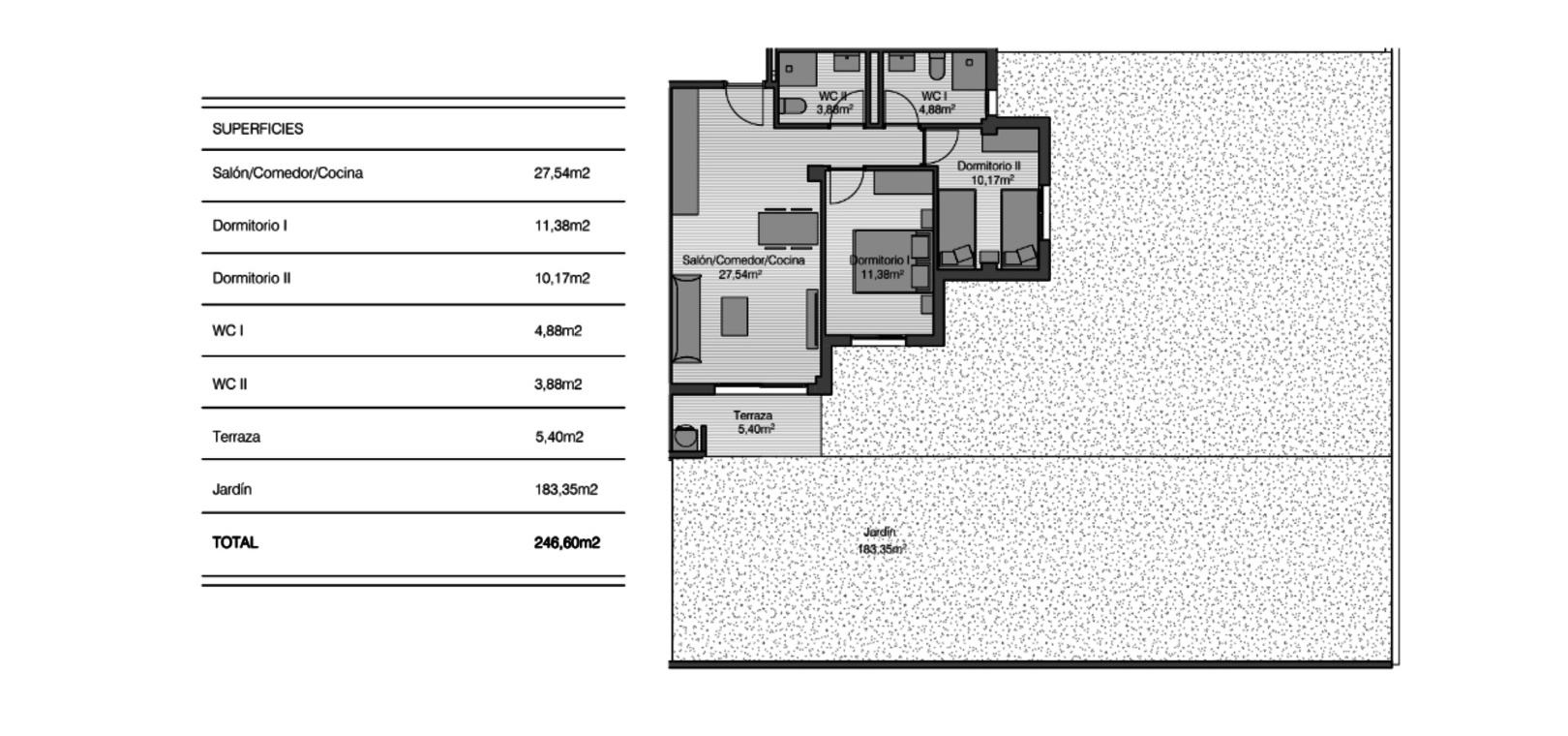
Het appartement wordt volledig gemeubileerd verkocht en beschikt over een lichte, open woon- en eetkamer die overgaat in een volledig uitgeruste, moderne keuken . Beide slaapkamers zijn ruime tweepersoonskamers met inbouwkasten , aangevuld met twee moderne badkamers met vloerverwarming voor comfort het hele jaar door.
Stap vanuit de woonkamer naar buiten op een zonnig terras en een uitzonderlijk grote privétuin , perfect om buiten te dineren, te entertainen of te genieten van het mediterrane klimaat . Een berging en een eigen parkeerplaats in de ondergrondse garage zijn inbegrepen, wat extra gemak en veiligheid biedt.
Bewoners kunnen ook genieten van de gemeenschappelijke tuin en het zwembad , de perfecte plek om te ontspannen en het hele jaar door optimaal te genieten van de Spaanse zon.
De woning is ideaal gelegen nabij recreatiemogelijkheden , waaronder gerenommeerde golfbanen en winkelcentra, en ligt op slechts 10 minuten rijden van de ongerepte stranden van Orihuela Costa en Torrevieja , evenals het populaire winkelcentrum La Zenia Boulevard .
Dit appartement op de begane grond met een royale privétuin biedt een zeldzame kans om een stijlvolle, direct bewoonbare woning te bezitten in een bloeiende wijk aan de Costa Blanca.
Waarom kiezen voor Solmar Estates?
Wij zijn trotse leden van de API – Agente de la Propiedad Inmobiliaria – een vereniging die al vele jaren actief is in de Spaanse vastgoedsector. Lidmaatschap van de API is een optie voor makelaars en brengt verplichtingen met zich mee op het gebied van opleiding, ervaring en een uitgebreide ethische code. Het API-lidmaatschap biedt onze kopers en verkopers maximale garanties met betrekking tot onze werkwijze en kwalificaties. API-registratienummer 00280.
Klik op de onderstaande link voor meer informatie.
https://tinyurl.com/4hnan8af
