Nieuwbouwwoningen met privézwembad in La Finca Golf Resort, Algorfa
Exclusief mediterraan wonen in La Finca Golf
Ontdek dit uitzonderlijke nieuwe woonproject in het prestigieuze La Finca Golf Resort in Algorfa, aan de zuidkust van de Costa Blanca. U kunt kiezen tussen appartementen met 2/3 slaapkamers en gemeenschappelijk zwembad of halfvrijstaande of vrijstaande villa's met privézwembad. Omgeven door weelderige fairways en natuurlijke landschappen biedt deze gemeenschap een idyllische levensstijl in een rustige en veilige omgeving.
Het charmante stadje Algorfa staat bekend om zijn traditionele Spaanse karakter, uitstekende gastronomie en ontspannen sfeer, waardoor het een ideale bestemming is voor zowel vakantiehuizen als permanente woningen.
Moderne halfvrijstaande villa's met privézwembad
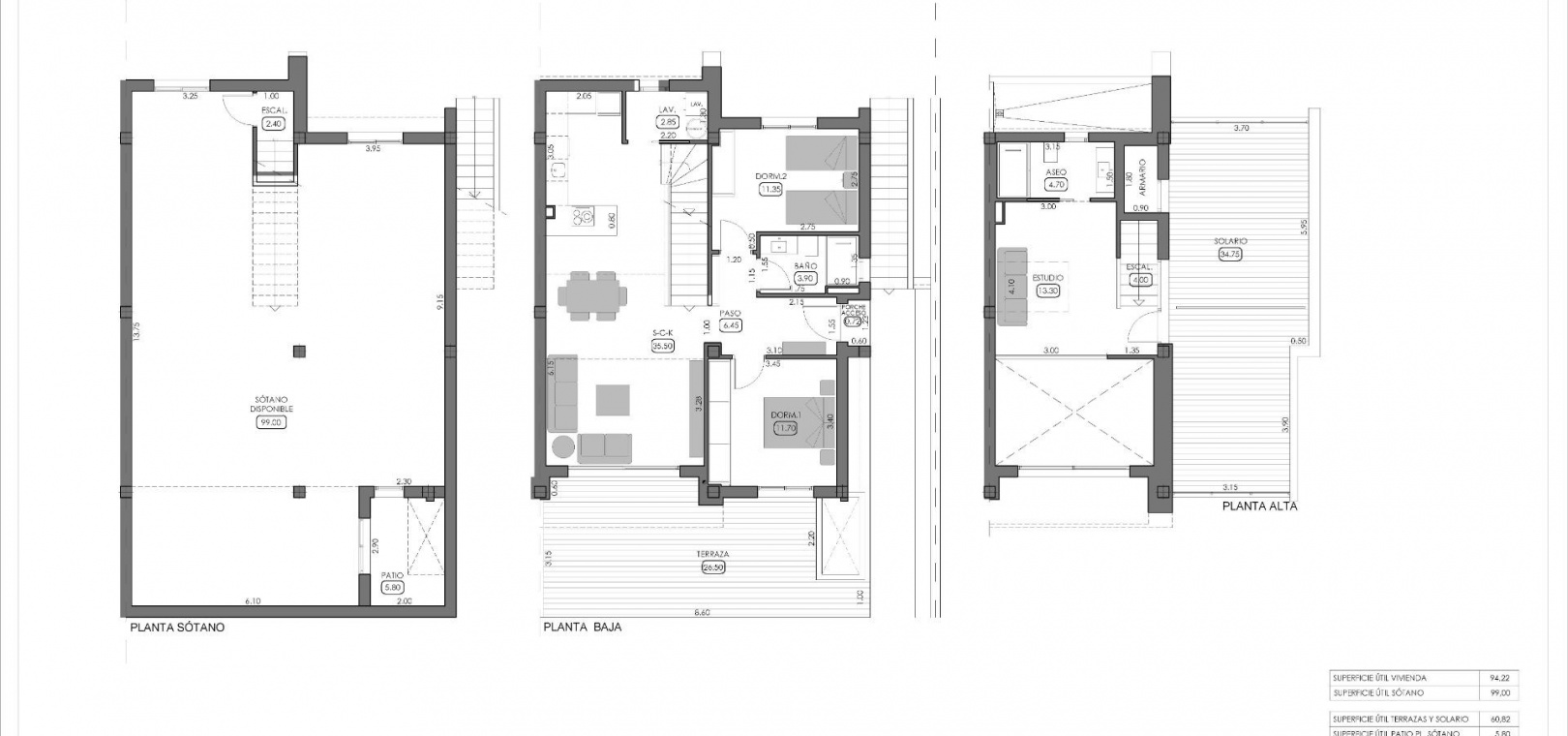
Deze prachtig ontworpen halfvrijstaande villa's hebben 3 slaapkamers en 2 badkamers en combineren functionaliteit, comfort en moderne stijl.
Indeling
Begane grond
Lichte open woon- en eetkamer verbonden met een ingerichte keuken
Grote schuifdeuren die directe toegang bieden tot de tuin en het privézwembad
Twee ruime slaapkamers met inbouwkasten
Een complete badkamer
Privé parkeerplaats op het perceel
Bovenverdieping
Studioruimte met badkamer, ideaal als kantoor, lounge of gastenverblijf
Toegang tot een privé terras van 30 m2, perfect om te zonnebaden en te ontspannen
Hoogwaardige voorzieningen en afwerking
Deze villa's zijn gebouwd volgens de hoogste normen en bieden modern comfort om het hele jaar door te wonen, waaronder
Inbouwkasten in alle slaapkamers
Elektrische rolluiken in de woonkamer en slaapkamers
Volledig uitgeruste badkamers met spiegels en doucheschermen
Volledig geïnstalleerde airconditioning
Privé-tuin en zwembad
Toplocatie dicht bij stranden, golfbanen en voorzieningen
La Finca Golf Resort is een van de meest gerenommeerde golfbestemmingen aan de Costa Blanca en biedt een breed scala aan diensten, zoals een luxe hotel, restaurants, een spa en sportfaciliteiten. Het complex ligt op korte afstand van nabijgelegen steden, stranden en luchthavens, wat zorgt voor gemak en goede verbindingen.
Afstanden tot belangrijke punten
La Finca Golf Club: op loopafstand
Stranden van Guardamar del Segura: 15 km
Torrevieja en Orihuela Costa: 15 km
Almoradí, Benijófar en Ciudad Quesada: korte rit
Luchthaven Alicante: 35 km
Geniet van het beste van het leven aan de Costa Blanca
Met hun moderne ontwerp, privé buitenruimtes en bevoorrechte ligging zijn deze villa's een uitstekende keuze voor gezinnen, investeerders en golfliefhebbers die op zoek zijn naar een hoogwaardige levensstijl in het zuiden van Spanje. Neem vandaag nog contact met ons op om een bezichtiging te regelen of meer informatie te ontvangen over dit exclusieve nieuwbouwproject in La Finca Golf Resort, Algorfa.
