Te koop: Appartement op de begane grond in PAU 26, Orihuela Costa, gelegen in een rustige en goed bereikbare woonwijk.
De woning profiteert van zowel een noordelijke als een zuidelijke oriëntatie, wat zorgt voor goede natuurlijke lichtinval en ventilatie gedurende de hele dag.
Aan de voorzijde bevindt zich een privétuin met directe toegang tot de woning, ideaal voor buitengebruik. Aan de achterzijde biedt een groot terras op het zuiden extra buitenruimte met directe toegang tot het gemeenschappelijke zwembad in een fraai aangelegd wooncomplex.
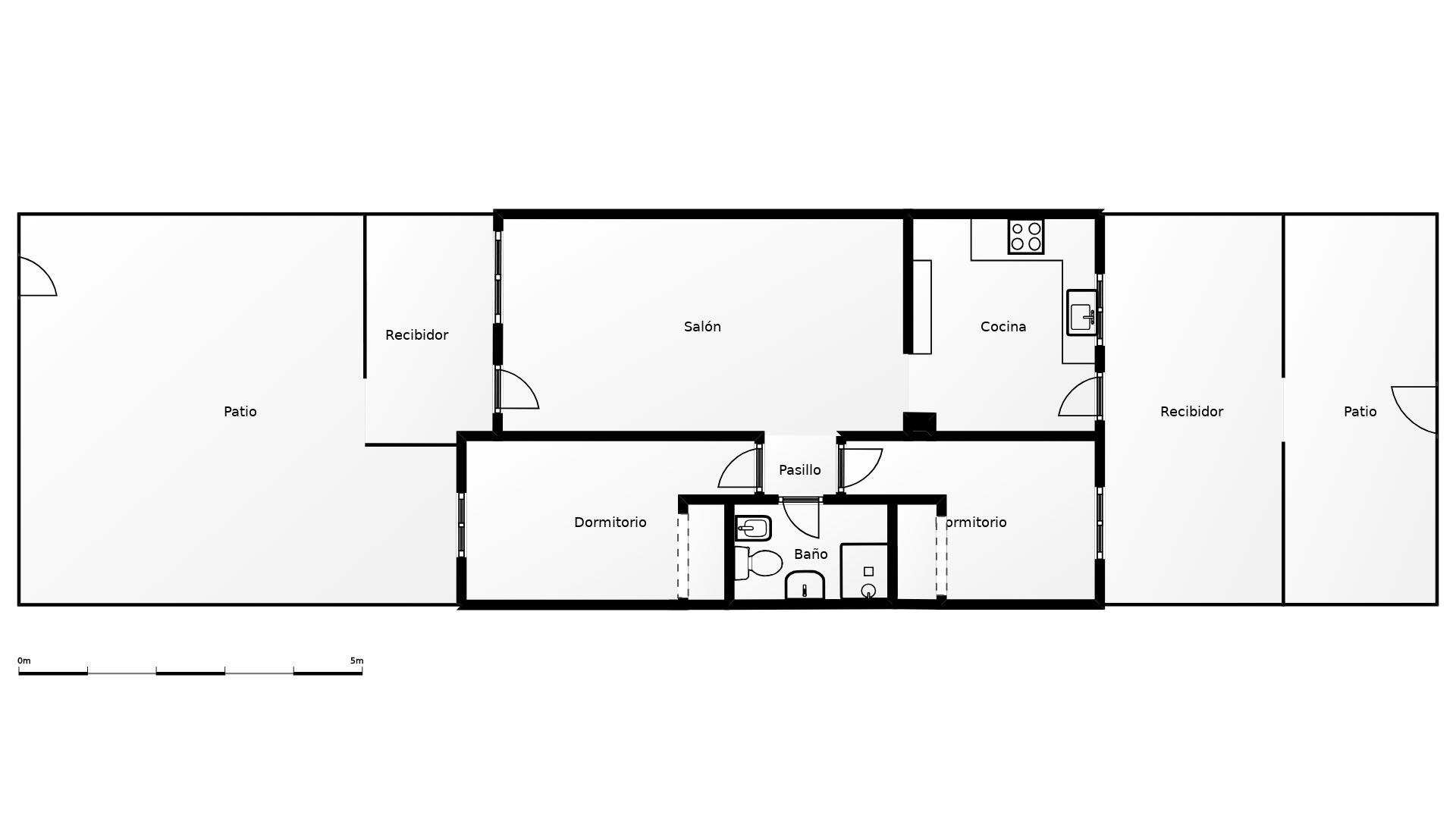
Binnen bestaat de indeling uit een ruime woonkamer met open keuken, twee slaapkamers en een volledig uitgeruste badkamer. De woning is in goede staat en direct te betrekken.
Gelegen vlakbij de golfbaan Villamartín, winkelcentrum Zenia Boulevard, supermarkten en een breed scala aan voorzieningen, wat het hele jaar door comfort biedt.
Het pand kent een consistente geschiedenis van langdurige bezetting, wat de geschiktheid ervan als investeringsobject onderstreept.
Waarom kiezen voor Solmar Estates?
Wij zijn trotse leden van de API – Agente de la Propiedad Inmobiliaria – een vereniging die al vele jaren actief is in de Spaanse vastgoedsector. Lidmaatschap van de API is een optie voor makelaars en brengt verplichtingen met zich mee op het gebied van opleiding, ervaring en een uitgebreide ethische code. Het API-lidmaatschap biedt onze kopers en verkopers maximale garanties met betrekking tot onze werkwijze en kwalificaties. API-registratienummer 00280.
Klik op de onderstaande link voor meer informatie.
https://tinyurl.com/4hnan8af
