Villas Formentera på Vistabella Golf Resort erbjuder ett oöverträffat lyxigt boende i hjärtat av pittoreska Orihuela Costa, beläget mellan San Miguel och Los Montesinos. Dessa magnifika villor, designade med utsökt uppmärksamhet på detaljer, ger en oas av komfort och sofistikering.
Anläggningen i sig har en säker ingång och ett imponerande utbud av bekvämligheter, inklusive en 18-håls golfbana, padelbanor, bowlingbanor, en stormarknad och ett varierat utbud av barer och restauranger. Med planer på gång för ett nytt klubbhus, champagnebar, sushibar, spahotell, konstgjord strand, tennisbana, fotbollsplan, gourmetbar och mer, kommer resorten att förvandlas till ett förstklassigt 5-stjärnigt lyxkomplex.
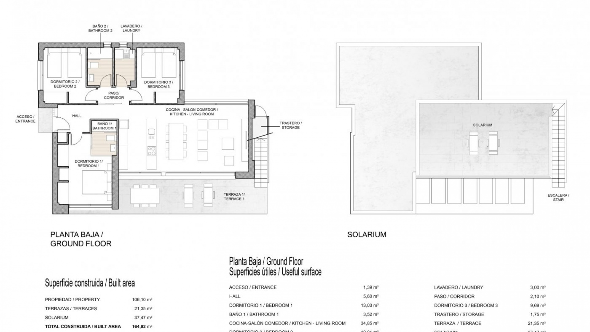
Den fantastiska Formentera-villan är designad på en nivå och erbjuder sömlös tillgänglighet och bekvämlighet. Den rymliga loungen vetter mot en privat trädgård, komplett med en lyxig pool, vilket skapar en idyllisk plats för avkoppling och underhållning utomhus.
Inuti ger ett kök och matplats i öppen planlösning ett elegant och funktionellt utrymme för kulinariska sysselsättningar och sociala sammankomster. En separat tvättstuga gör det praktiska i vardagen.
Villan har ett master bedroom med eget badrum och inbyggda garderober, vilket ger en fridfull oas. Ytterligare två dubbelrum med inbyggda garderober erbjuder gott om boende för gäster eller familjemedlemmar. Ett gästtoalett förhöjer bekvämligheten.
För de som söker hisnande vyer och en fridfull flykt leder en trappa upp till ett vidsträckt 38 m² privat taksolarium, som erbjuder panoramautsikt över den omgivande landsbygden.
Vistabella Golf Resort är inte bara ett bostadsområde utan ett pulserande samhälle omgivet av grönskande kullar och berg. Med en mängd barer, sportaktiviteter och restauranger har det utvecklats till en året runt-destination för många invånare. De närliggande städerna San Miguel och Los Montesinos ligger bara en kort bilresa bort, och erbjuder ytterligare bekvämligheter och kulturella upplevelser. Dessutom är de orörda stränderna med blå flagg lättillgängliga, vilket gör denna plats perfekt för både avkoppling och rekreation.
