Nybyggda villor belägna i Aspe.
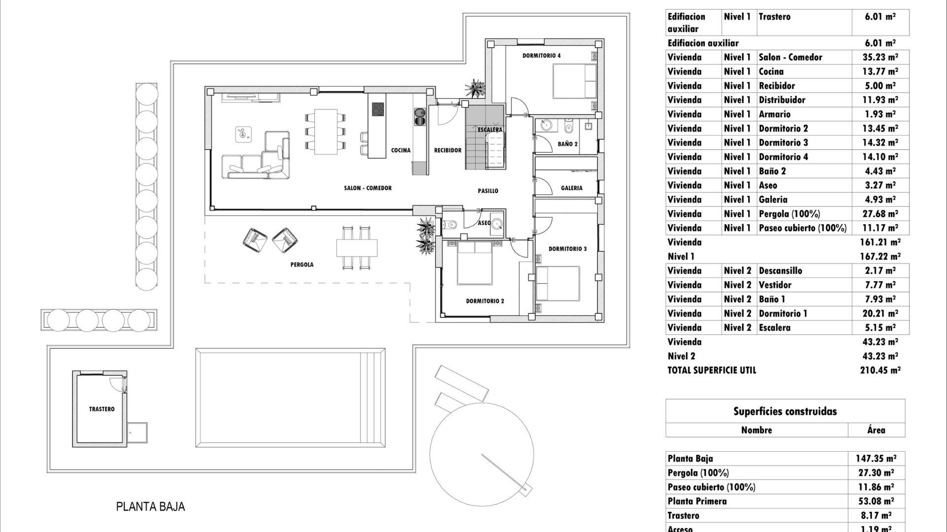
Nybyggda villor med flera modeller att välja mellan med 2, 3 eller 4 sovrum, med en eller två våningar och byggda med platta eller struktur: beroende på modell och tomtval beräknas det exakta priset.
Alla villor byggs på rustika tomter på över 10 000 m2, varav cirka 2 500 m2 kommer att stängslas in.
Villorna har ett öppet kök med vardagsrum, inbyggda garderober, privat pool, veranda, förråd och utomhusparkeringsplats.
Det finns flera tomter att välja mellan. För prisberäkningen har en tomt med ett pris på 77 500 euro använts (om en annan tomt väljs betalas eller krediteras skillnaden enligt tomtens pris).
Byggs på egen bekostnad, leverans inom cirka 12 månader från beviljandet av bygglov.
Om du letar efter en lugn miljö, nära typiska spanska byar långt från turistmassorna, omgiven av berg, med en mycket stor tomt och cirka 30 minuter från havet, är detta ditt hem.
Aspe är en typisk spansk by med alla tjänster för det dagliga livet, omgiven av berg och med flera naturområden i närheten där du kan vandra eller cykla mountainbike.
Beläget 25 km från stranden, 9 km från Elche och cirka 20 km från Alicante flygplats.
