Exklusiva nybyggda villor i Santa Rosalia Lake och Life Resort – Lyxigt boende i hjärtat av Murcia
Där modern design möter medelhavsparadis
Upptäck en ny standard av lyx i det mycket eftertraktade Santa Rosalia Lake and Life Resort – ett exklusivt, gated community inbäddat i den soldränkta regionen Murcia. Bara 4 km från Mar Menors varma, grunda vatten, är detta prestigefyllda komplex idealiskt beläget nära golfbanor i världsklass, den pulserande kuststaden Los Alcázares och bara en kort bilresa från den historiska staden Cartagena. Med Murcias internationella flygplats bara 22 km bort garanteras enkel resa från Storbritannien och över hela Europa.
Eleganta villor utformade för modernt medelhavsliv
Dessa fantastiska nybyggda villor har noggrant utformats med ljus, rymd och funktionalitet i åtanke. Varje hem erbjuder 3 generösa sovrum, 2 eleganta badrum och en extra gästtoalett. Den öppna planlösningen förbinder sömlöst det högklassiga köket, matplatsen och vardagsrummet, som alla öppnar upp mot en vackert anlagd trädgård komplett med din egen privata pool – den perfekta platsen att njuta av det spanska solskenet.
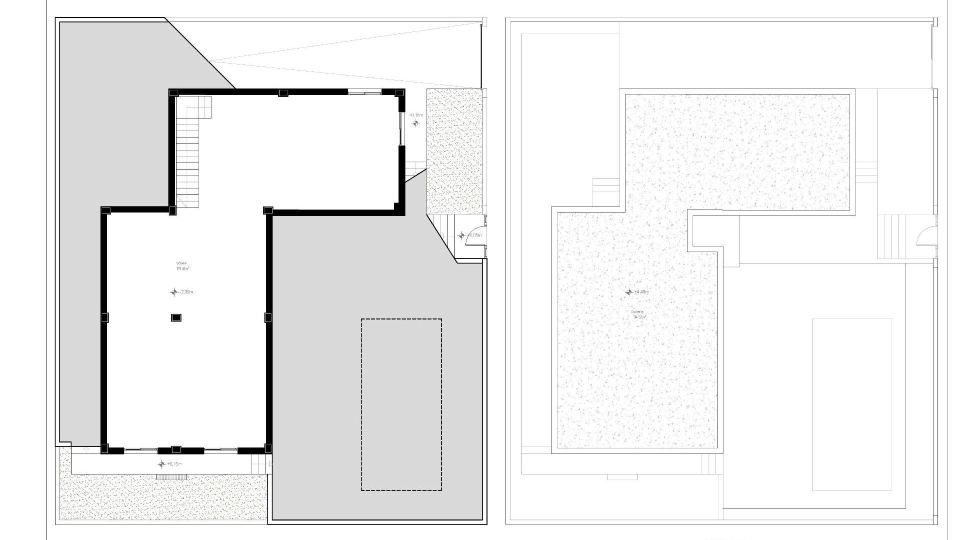
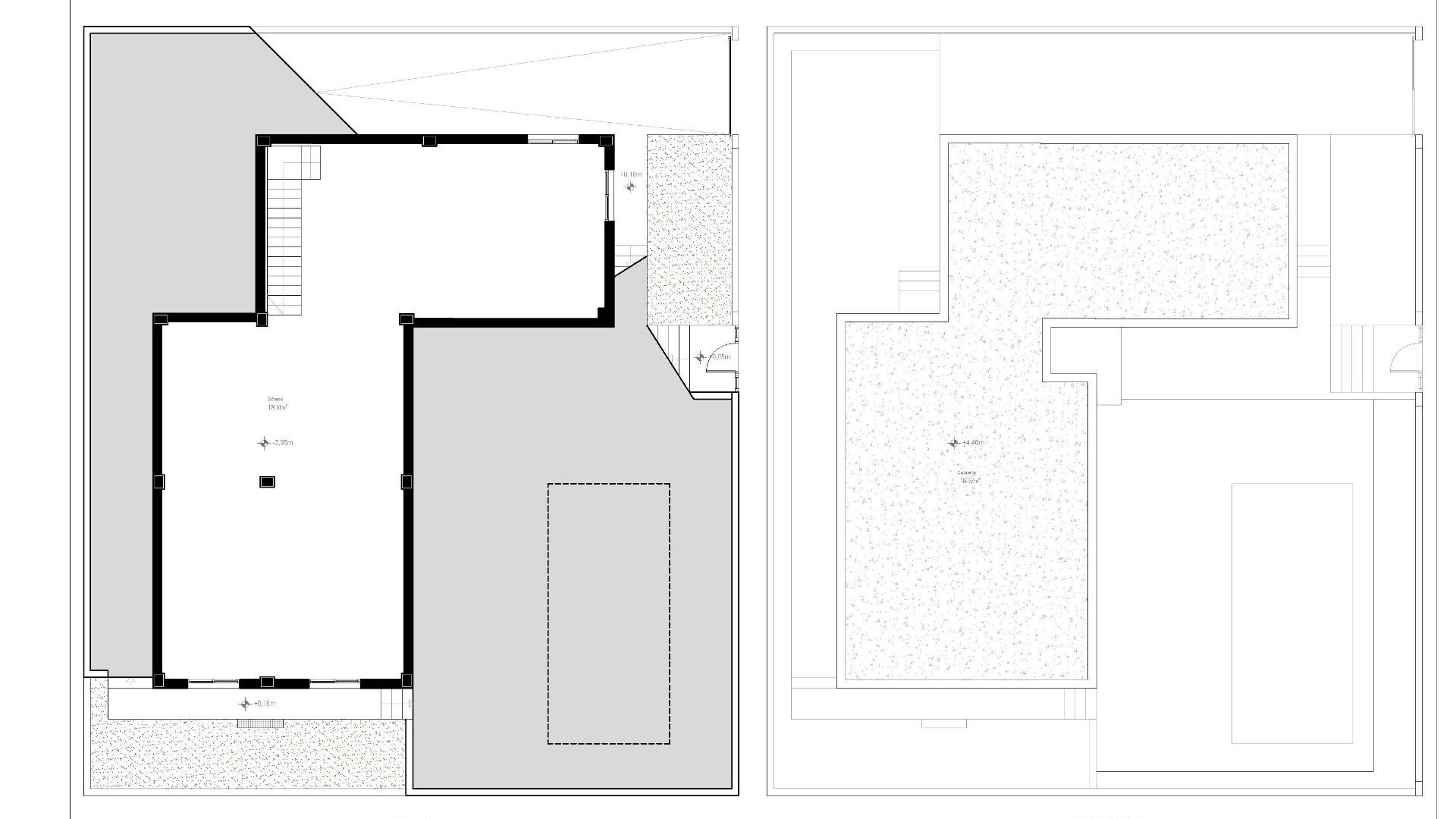
För ökad flexibilitet erbjuder en stor färdig källare på 136 m² oändliga möjligheter – tänk ytterligare sovrum, ett hemmagym, privat bio, kontor eller till och med ett elegant spelrum för barnen.
Lyxiga ytbehandlingar och hållbara detaljer
Dessa villor är byggda enligt högsta standard och har motoriserade jalusier, inbyggda garderober, kanaliserad luftkonditionering och en förstärkt säkerhetsdörr. Det fullt utrustade köket är komplett med högkvalitativa apparater, medan konstgräs, palmer och ett bevattningssystem skapar en inbjudande utomhusoas. För att stödja hållbart boende har varje villa sex solpaneler som standard – en kombination av lyx och energieffektivitet.
Santa Rosalia – En semesterort som ingen annan
I hjärtat av semesteranläggningen ligger en imponerande 17 000 m² stor kristallklar lagun, kantad av vita sandstränder, vajande palmer och lugna öar med barer och strandklubbar. De boende kan njuta av över 126 000 m² anlagda grönområden, sportbanor, träningsspår, minigolf, lekplatser och ett livligt klubbhus – som erbjuder den ultimata balansen mellan fritid, välbefinnande och natur.
En utmärkt möjlighet – för boende eller investering
Oavsett om du letar efter ditt drömsemesterhus, ett boende året runt eller en stark hyresinvestering, erbjuder Santa Rosalia allt. Läget, livsstilen och den framtida uthyrningspotentialen gör detta till en verkligt sällsynt möjlighet på den spanska fastighetsmarknaden.
✨ Fråga idag
Säkra din bit av paradiset i Santa Rosalia Lake and Life Resort. Kontakta oss nu för att boka en visningsresa eller en personlig konsultation om fastigheter i Storbritannien med en av våra nybyggnationsspecialister.
