Moderna nybyggda bostäder i Calpe, bara 450 meter från Playa del Cantal Roig
Ett modernt bostadskomplex nära havet
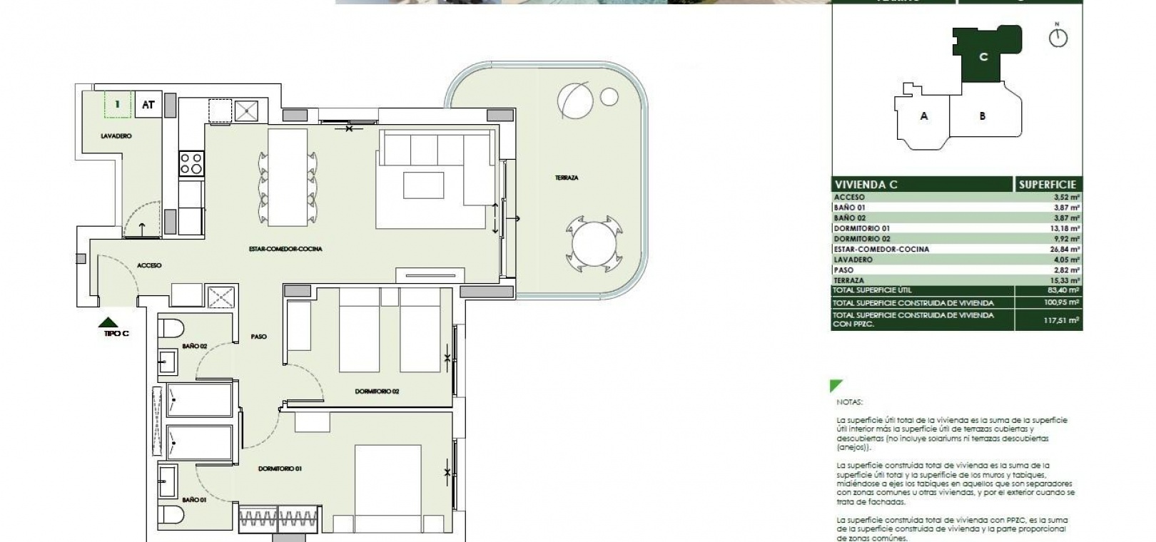
Detta exklusiva bostadskomplex består av 120 nybyggda lägenheter med 2 och 3 sovrum, fördelade på tre moderna torn. Komplexet ligger bara 450 meter från Playa del Cantal Roig i det lugna området El Saladar och erbjuder en perfekt blandning av kustliv och urbana bekvämligheter. Calpes centrum ligger bara några minuter bort, medan den fantastiska Salinas de Calpe och den ikoniska naturparken Peñón de Ifach skapar en unik naturlig bakgrund. Havsutsikt finns från tredje våningen och uppåt.
Förstklassiga bekvämligheter för en exceptionell livsstil
Det gated community som är utformat för att maximera komforten erbjuder ett brett utbud av bekvämligheter, inklusive en pool för vuxna, barnpool, simbana, paddelbana, gym, socialklubb, anlagda trädgårdar med lekplatser, cykelparkering och digitala paketskåp. Säkerhet och kontrollerad åtkomst tillhandahålls genom en concierge. Parkering och förråd ingår i priset.
Eleganta bostäder med högkvalitativa detaljer
Varje lägenhet kombinerar modern design med funktionella planlösningar och utmärkt läge. Rymliga terrasser står i centrum och erbjuder den perfekta miljön för att njuta av det medelhavsklimatet. Bostäderna har ytterfönster med termisk brytning, motoriserade fönsterluckor, pansrad entrédörr, fullt utrustade kök med vitvaror, luftkonditionering och aerotermiska varmvattensystem.
Upptäck Calpe och dess fantastiska omgivningar
Calpe är en av Costa Blancas mest symboliska kuststäder, känd för sina stränder, sitt nautiska livsstil och sitt rika valencianska arv. Läget erbjuder oslagbar tillgänglighet: cirka 80 km till Alicante flygplats, 12 km till Altea, 25 km till Benidorm och smidiga förbindelser via motorväg A7 och väg N332. Golfentusiaster hittar flera golfbanor inom 25 km, medan Real Club Náutico de Calpe och Puerto Blanco Marina ligger mindre än 3 km bort.
Ditt idealiska hem vid Medelhavet
Upplev ett nytt sätt att leva i Calpe med moderna hem designade för komfort, natur och avkoppling. Kontakta oss idag för att boka ett besök.
