Modern nybyggd villa med lyxiga detaljer i Javea
Modernt medelhavsliv på Costa Blanca
Denna fantastiska fristående nybyggda villa i Javea kombinerar högkvalitativa ytbehandlingar, elegant design och optimal funktionalitet på tre rymliga våningar. Fastigheten ligger i en av de mest eftertraktade kuststäderna på norra Costa Blanca och erbjuder en lugn bostadsmiljö omgiven av gröna berg, naturparker och vackra stränder. Javea är känt för sitt kristallklara vatten, traditionella gastronomi och medelhavslivsstil, vilket gör det till en idealisk plats för både permanent boende och investering.
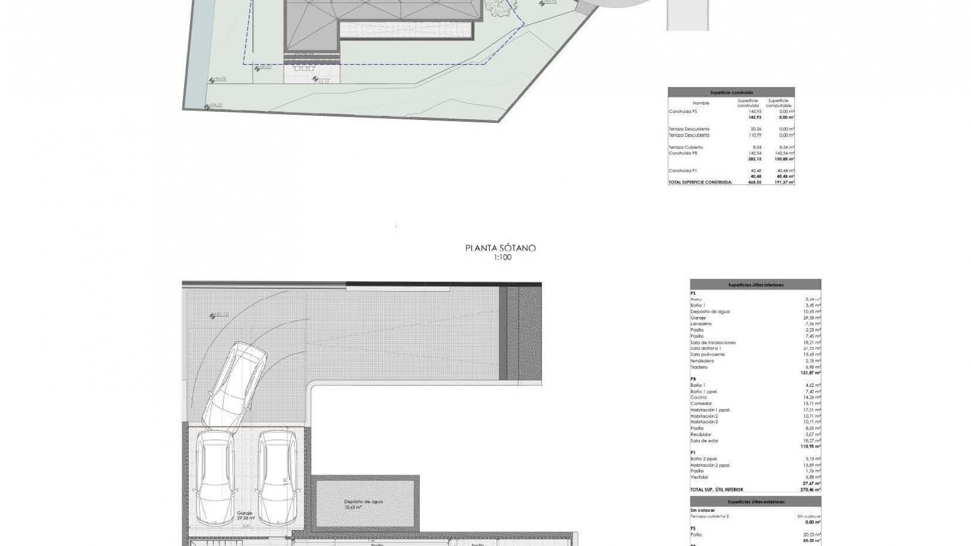
Rymlig källare utformad för mångsidighet
Källarvåningen är genomtänkt utformad för att möta moderna livsstilsbehov. Den inkluderar ett öppet garage för två bilar, ett badrum, en gästtoalett, ett öppet konceptrum, ett multifunktionellt rum och en uteplats som släpper in naturligt ljus i utrymmet. Denna våning erbjuder oändliga möjligheter, oavsett om du tänker dig ett gym, ett underhållningsrum, ett kontor eller en gästsvit.
Elegant bottenvåning med sammanhängande vardagsrum
Bottenvåningen har ett ljust vardagsrum med matplats som smälter in perfekt med det fullt utrustade köket, vilket skapar en perfekt plats för familjesammankomster. En entréhall, gästtoalett och korridorer ger praktisk funktionalitet och flöde. Denna våning har två bekväma sovrum som delar ett modernt badrum och ett generöst master bedroom med eget badrum, vilket erbjuder avskildhet och komfort.
Lyxig mastersvit på övervåningen
Övervåningen är tillägnad ett andra master bedroom, som erbjuder en exklusiv tillflyktsort med eget badrum, klädkammare och hall. Detta privata utrymme garanterar komfort och lugn med vacker utsikt över det omgivande gröna landskapet.
Utomhusliv utformat för medelhavsklimatet
Fastighetens utomhusområden är skapade för att njuta av utomhuslivet året runt. Den har två täckta terrasser och två otäckta terrasser på bottenvåningen. En av de täckta terrasserna omger poolen, perfekt för sommarens avkoppling, medan den otäckta terrassen bredvid köket är idealisk för utomhusmåltider och sammankomster.
Utrustad med golvvärme och luftkonditionering garanterar villan komfort under alla årstider.
Utmärkt läge i Javea
El Arenal-stranden 3 km
Javeas hamn och marina 7 km
Javea Golf Club 3 km
Alicante flygplats 100 km
Valencia flygplats 125 km
Ditt medelhavshem väntar
Oavsett om du letar efter en lyxig bostad, ett semesterhus eller en säker långsiktig investering, erbjuder denna villa en exceptionell livsstil i Javea. Kontakta oss idag för att boka en visning och upptäck ditt framtida hem på Costa Blanca.
