Moderna nybyggda radhus med privat pool i El Alba Resort Torre Pacheco
Moderna bostäder i en växande medelhavsresort
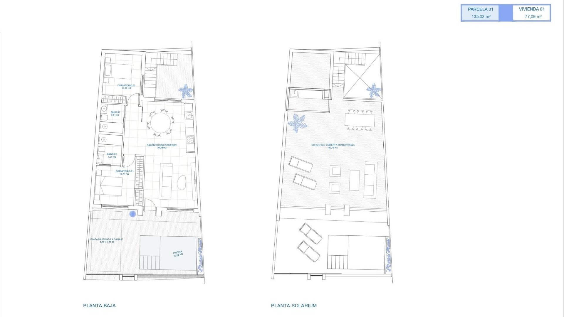
Denna nybyggnation består av endast 4 exklusiva radhus i den första fasen, belägna i El Alba Mediterranean Resort i Torre Pacheco. Dessa moderna bostäder är utformade på en enda våning och erbjuder en perfekt kombination av komfort, funktionalitet och medelhavsliv utomhus.
El Alba Resort är ett framväxande bostadsområde omgivet av öppna landskap och golfbanor, bara en kort bit från staden Roldan där du hittar stormarknader, restauranger, banker och dagliga tjänster. Anläggningen har redan en social klubb med pool och restaurang, och ett kommersiellt område håller på att utvecklas, vilket ger ytterligare bekvämlighet och värde till platsen.
Enplanshus med privat trädgård och solarium
Varje fastighet har 2 sovrum och 2 badrum, varav ett är en-suite, med ett öppet kök som ansluter till ett ljust vardagsrum. Layouten är noggrant utformad för att maximera det naturliga ljuset och skapa en sömlös övergång mellan inomhus- och utomhusutrymmen.
Alla bostäder inkluderar:
Fullt utrustat kök med vitvaror
Badrum med möbler, spegel, belysning och duschväggar
Inbyggda garderober med lådor i sovrummen
Förinstallation av kanaliserad luftkonditionering
LED-belysning inomhus och utomhus
Tre solcellspaneler med en kapacitet på 1,5 kW per bostad
Utomhusområdena är utformade för att kunna njutas året runt, med en privat trädgård med pool, en terrass och ett stort privat solarium med sommarkök, perfekt för att äta utomhus och koppla av i solen.
Kvalitetsdetaljer utformade för komfort och effektivitet
Dessa bostäder är byggda med eleganta och funktionella interiörer, med fokus på energieffektivitet och modernt boende. En privat parkeringsplats finns på tomten, vilket garanterar bekvämlighet och säkerhet.
Kombinationen av solpaneler, högkvalitativ isolering och smart design ger ett energieffektivt hem som är idealiskt för permanent boende, semesteranvändning eller uthyrningsinvestering.
Utmärkt läge nära golfbanor, stränder och flygplatser
Roldans centrum 2 km
Mar Menors stränder 15 km
Medelhavets stränder 20 km
La Torre Golf Resort 5 km
Terrazas de la Torre Golf 6 km
Murcia Corvera flygplats 18 km
Cartagena 30 km
Det strategiska läget ger enkel tillgång till golf, stränder, service och transportförbindelser samtidigt som man kan njuta av en lugn bostadsmiljö.
En smart investering i Costa Calida
Dessa radhus i El Alba Mediterranean Resort erbjuder en utmärkt möjlighet att äga en modern fastighet med privat pool i ett snabbt växande område i Torre Pacheco.
Kontakta oss idag för mer information eller för att boka en visning av dessa exklusiva nybyggda bostäder.
