NEW BUILD RESIDENTIAL IN LOS ALCAZARES
New Build residential complex in Los Alcazares.
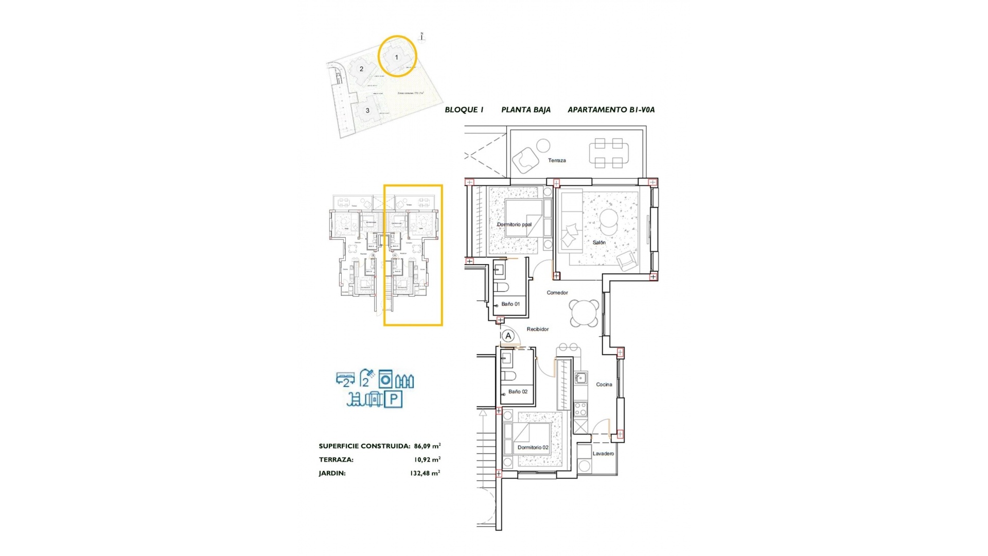
Complex consist of 3 blocks apartments, all has 2 bedrooms, open plan kitchen and the lounge area, fitted wardrobes, parking space.
Ground floor apartments with private gardens, middle floor apartments with terraces and penthouses has private solarium
Residential located in a frontline of the prestigious golf course “La Serena Golf”. This golf course is well renowned for its lakes and vegetation that interweave with the golf course. The water and lakes are present in 16 of the 18 holes, but all the course is designed to offer the golfer different strategies in each hole. Another aspect that makes this golf course unique is that it’s connected by walking to the city centre, something impossible to find in other golf locations that allow us to enjoy the calm and the beauty of the area without refusing the access to the services that Los Alcázares offers.
Residential located in Los Alcázares an exceptional area on the Costa Cálida at only
25 minutes from Murcia airport and 55 min from Alicante airport. The area is connected through highway with the cities of Cartagena, Murcia and Alicante and the rest of the beaches of the Costa Cálida and the Costa Blanca.
