Step into the world of contemporary elegance with Villa Gante, a luxurious new build villa located in the prestigious La Finca Golf Resort. This stunning property is designed to provide the perfect balance of modern sophistication and serene Mediterranean living. Surrounded by breathtaking mountain views, an 18-hole championship golf course, and just a short walk from vibrant bars, shops, and restaurants, Villa Gante offers a lifestyle of unmatched tranquility and convenience.
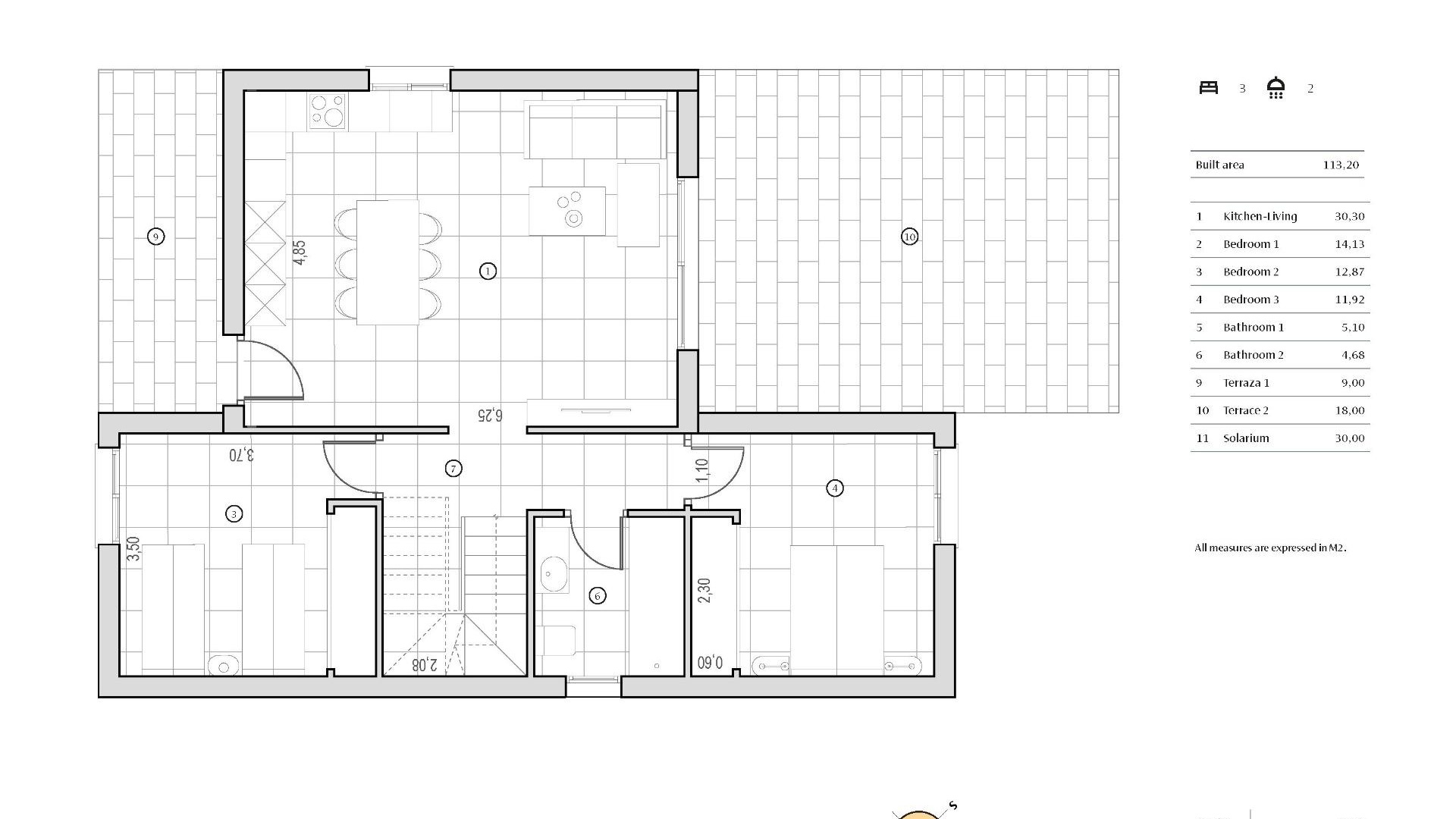
Built to the highest standards, this villa features a seamless open-plan design. The spacious lounge, bathed in natural light from floor-to-ceiling patio doors, opens directly to a private garden and terrace with a swimming pool, ideal for outdoor entertaining and relaxation. The modern kitchen is fully equipped with premium appliances, including an oven, hob, extractor, dishwasher, fridge/freezer, and microwave, creating a space that blends style and functionality.
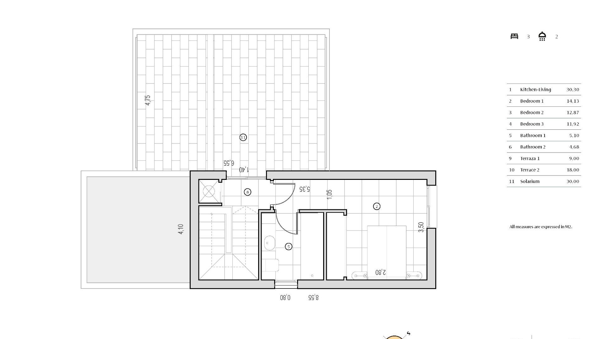
On the ground floor, the villa boasts two beautifully designed double bedrooms with fitted wardrobes and a sleek, fully fitted bathroom. Each room reflects attention to detail, combining elegance and comfort.
The first floor of Villa Gante is dedicated to the luxurious master suite, complete with fitted wardrobes, an en-suite bathroom, and a private sun terrace that offers stunning views of the surrounding landscape. A separate laundry and storage room add convenience, ensuring every detail of the villa is designed for practical living.
Situated within La Finca Golf Resort, this property benefits from a prime location close to the traditional Spanish village of Algorfa. Just a 15-minute drive brings you to the pristine blue flag beaches of Guardamar, where golden sands and the Mediterranean Sea await. The bustling towns of Los Montesinos and San Miguel de Salinas are also nearby, offering an array of amenities including bars, shops, and restaurants.
La Finca Golf Resort is more than just a destination—it’s a lifestyle. Renowned for its picturesque setting, exceptional golf course, and luxury spa hotel, it’s the ideal retreat for those seeking a harmonious blend of leisure and luxury. Villa Gante is not only a home but also an opportunity to embrace the very best of Costa Blanca living.
Indulge in the elegance of Villa Gante and experience the pinnacle of modern Mediterranean luxury. Contact us today to arrange a private viewing and take the first step toward owning this extraordinary property.
