NEW BUILD RESIDENTIAL COMPLEX IN ESTEPONA
New Build Luxury residential complex in Estepona.
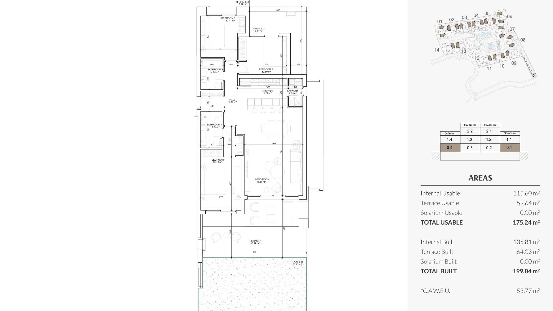
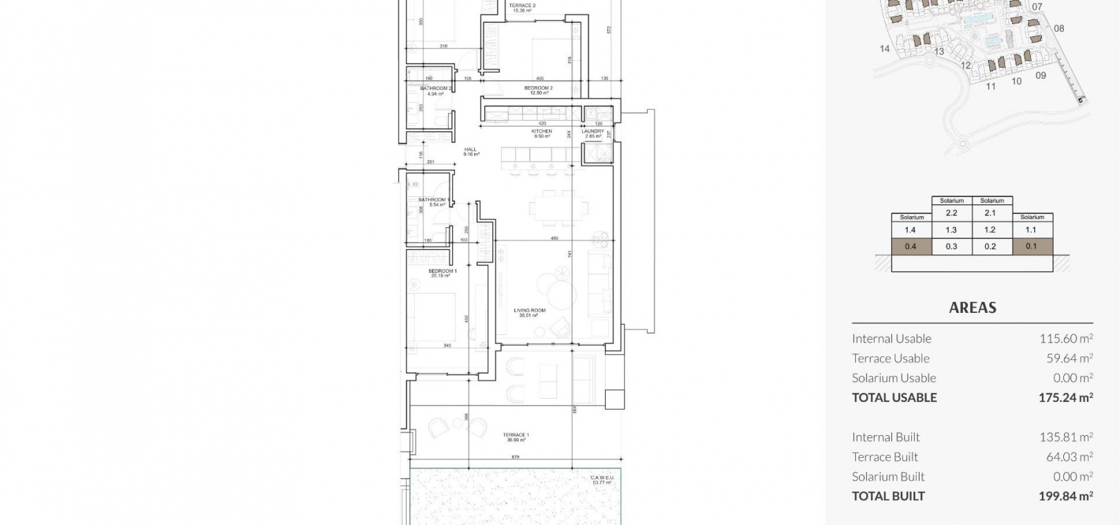
Residential complex consist of 140 exclusive bungalow apartments with 2 - 3 bedrooms and penthouses with 3 - 4 bedrooms set in a tropical, gated community.
Properties with spacious interiors, private terraces. Top floor properties with rooftop solariums. Full Wireless home automation in every apartment. Energy efficient A/C & underfloor heating by Daikin
RESORT COMMUNITY:
• Clubhouse with co-working lounge, cafeteria, spa, gym and indoor pool
• 24hr security
• Two resort style swimming pools, one of them heated, with poolside “chiringuito” & children’s pool
• 27,000m2 tropical landscaped gardens
LOCATION:
• Located on Estepona’s “New Golden Mile”
• Just 5 Minutes to Estepona’s vibrant town centre
• 500m walk to the beach
• Excellent transport connections by road, rail and air.
Gibraltar Airport can be reached within 30 minutes and Malaga Airport just a 45 minute drive.
