Contemporary 4-Bedroom Villa with Private Pool in Central Ciudad Quesada
This exceptional south-facing villa, built in 2020, offers a perfect blend of modern design, comfort, and prime location. Situated in a peaceful cul-de-sac just 300 metres from the very centre of Ciudad Quesada, the property provides convenient access to shops, cafés, restaurants, and local services—ideal for families, full-time residents, or those seeking a high-end holiday home.
Key Features
Contemporary detached villa (built 2020)
4 bedrooms & 3 modern bathrooms
153 m² build on a 533 m² private plot
Private saltwater swimming pool
Open-plan kitchen with quality appliances
South orientation for all-day sun
Solarium with panoramic views
Laundry/utility room & storage
Air conditioning & heating
Energy rating: B
Off-road parking & private garage
300 m from shops, cafés & amenities
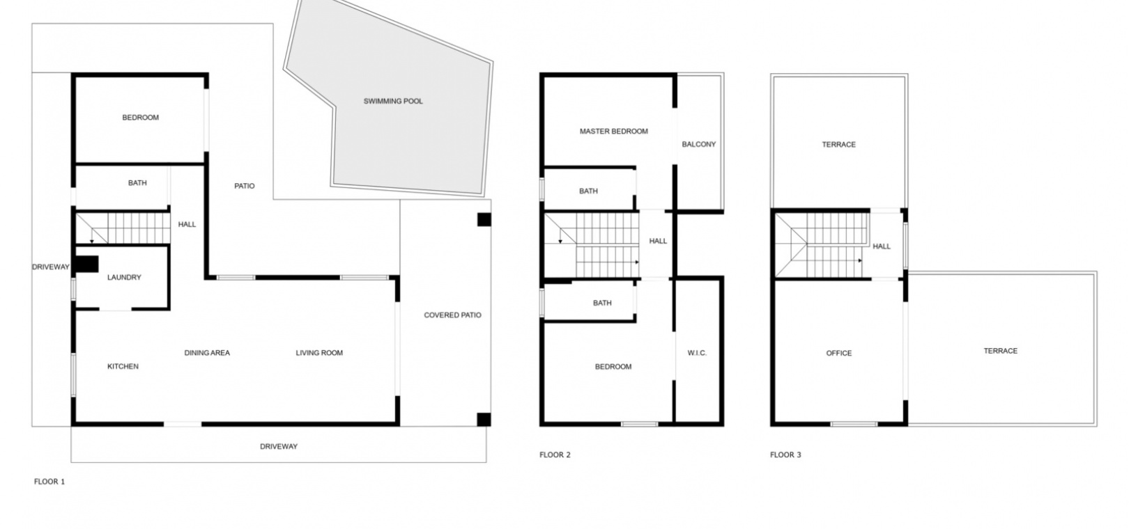
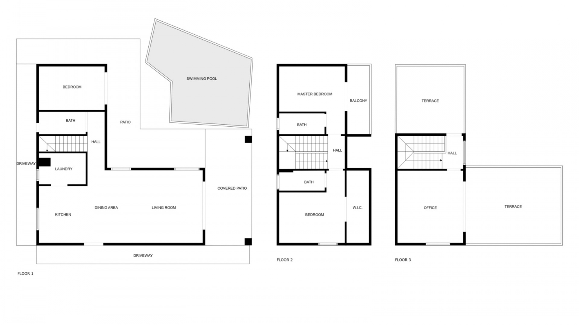
Property Overview
Elegantly designed across three levels, this bright and contemporary villa offers generous living spaces, high-quality finishes, and superb outdoor areas for year-round enjoyment.
Main Floor
The spacious open-plan living and dining area flows seamlessly into the modern kitchen, creating an inviting and practical family space. Floor-to-ceiling windows overlook the private pool and garden, enhancing the natural light throughout. This level also includes a stylish guest bedroom, a full bathroom, and a convenient utility room.
First Floor
Here you will find two large en-suite bedrooms, each offering excellent storage and privacy. One bedroom features a walk-in wardrobe, while the other benefits from a private balcony with charming views of the pool and gardens.
Top Level
The upper floor hosts a versatile fourth room—ideal as a guest bedroom, office, or studio—along with two spacious terraces. These areas provide sweeping views of Ciudad Quesada, the surrounding landscape, salt lakes, and even the distant Mediterranean Sea.
Outdoor Living
Designed for low maintenance and maximum comfort, the exterior features multiple terraces, a sunbathing area, and a luxurious saltwater pool. The secure plot includes gated entry, off-road parking, and a private garage, ensuring both convenience and peace of mind.
Location & Lifestyle
Located in one of Ciudad Quesada’s most desirable central areas, the villa offers walkable access to daily services and leisure activities. The vibrant international community and local attractions add to its appeal for families and investors alike.
Distances:
Guardamar Beach: 9 km (10 min)
Alicante Airport: 38 km (35 min)
La Marquesa Golf: 4 km
Shops & amenities: 300 m
Additional Highlights
Double-glazed windows
Built-in wardrobes in all bedrooms
High-quality flooring and finishes
Year-round comfort with AC & heating
South-facing orientation for natural light
Energy-efficient design (Rating B)
Book Your Viewing
This beautifully maintained villa offers the ideal combination of style, comfort, and premier location.
Contact us today to arrange your private viewing and discover everything this stunning home has to offer.
